Al Waleed WS 1

Al Waleed W.S 1, Dubai Land Residence Complex

About this Project

Al Waleed WS 1 is an impressive addition to Dubai’s evolving residential skyline, bringing a modern and well-connected lifestyle to the heart of DLRC (Dubai Land Residence Complex). This premium apartment development offers a refined collection of studio, 1, and 2-bedroom units tailored for urban professionals, small families, and savvy investors alike. Designed with functionality, comfort, and elegant aesthetics in mind, the project combines a perfect mix of modern design and smart layouts to maximize space and convenience. From first glance, the architecture reflects contemporary finesse with clean lines and thoughtful finishes. Residents can expect spacious interiors, floor-to-ceiling windows, and an abundance of natural light flowing through each unit. Whether you’re looking for a cozy studio or a more expansive two-bedroom layout, the residences are crafted to offer a seamless blend of privacy and sociability within a vibrant community setting. With a prime location in DLRC, residents will enjoy easy access to major city landmarks, top-tier schools, retail outlets, and essential lifestyle amenities. The area is known for its balanced urban living, offering both tranquility and connectivity. For those seeking a high-quality yet affordable property in Dubai, this development presents an excellent opportunity to experience modern living within a thoughtfully planned environment. Key Points Freehold ownership in DLRC Studio, 1 & 2-bedroom apartment options Smart layouts and modern interiors Completion scheduled for Q1 2027 Developed by Al Waleed Real Estate Easy access to key highways and landmarks Ideal for end-users and investors alike Located in a rapidly growing residential hub Family-friendly environment Competitive pricing structure

Construction Status

Phase
Under construction
Progress
0%

Project Details

  • Type: apartment
  • Launch Date: 2025-05-01
  • Completion Date: 2027-02-28

Amenities

Landscaped Gardens
Indoor Swimming Pool
Gymnasium
CCTV Security
Children's Play Area
Restaurants

Project Timeline

  • Booking Started : 01/05/2025
  • Construction Started: 02/05/2025
  • Expected Completion : 28/02/2027

Available unit types from developer

APARTMENT

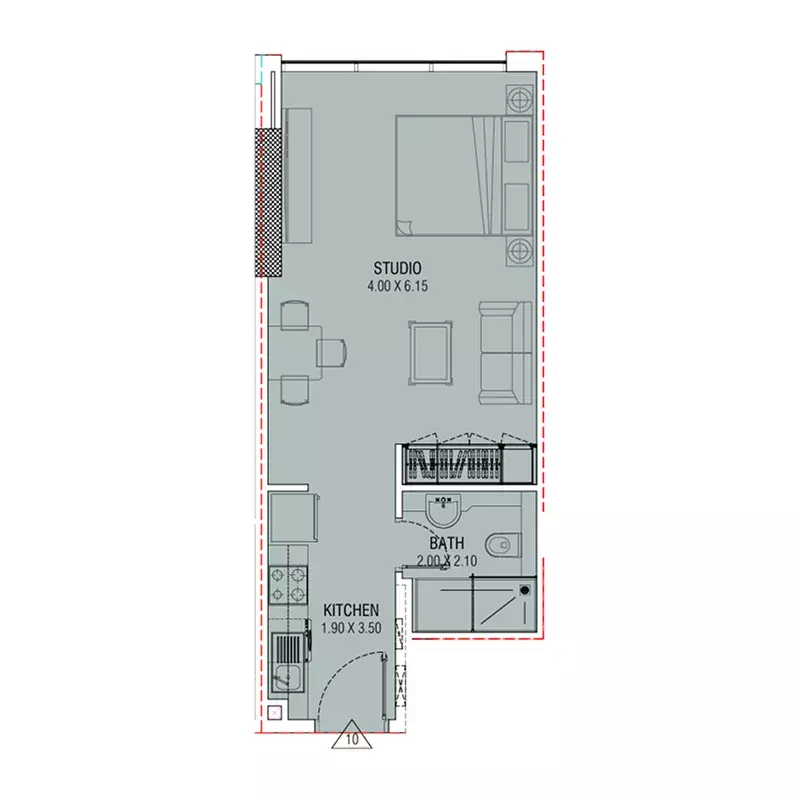
Studio

Size: 409 sq ft
Starting from AED 577,300
Available Layouts
Layout Type Size (sqft) Floor Plan
Type A 409.00 View

APARTMENT

1 Bedroom

Size: 699 sq ft
Starting from AED 577,300
Available Layouts
Layout Type Size (sqft) Floor Plan
Type A 699.00 View

APARTMENT

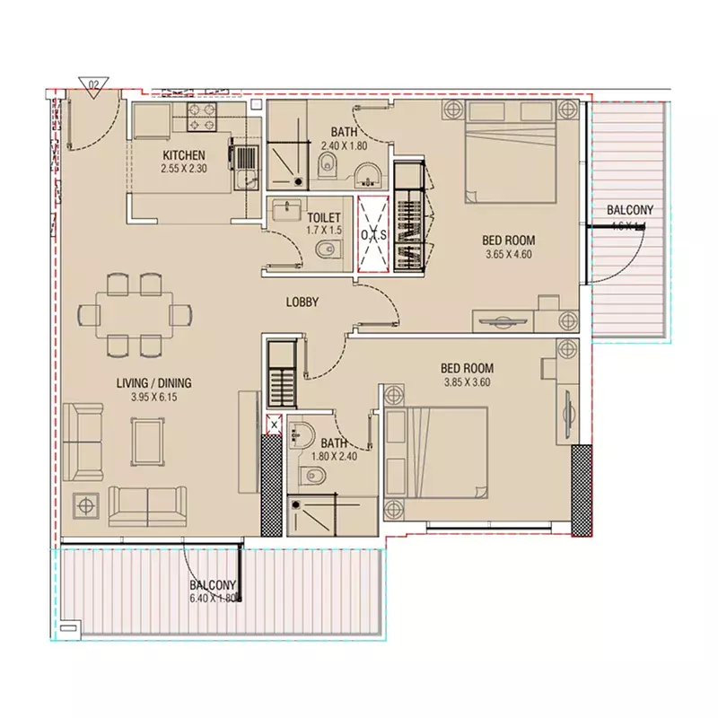
2 Bedrooms

Size: 1162 sq ft
Starting from AED 577,300
Available Layouts
Layout Type Size (sqft) Floor Plan
Type A 1,162.00 View

Standard

down payment
20%
20%
during construction
40%
40%
handover
40%
40%

Monthly Payment Calculator

5% 15% 25% 35% 50%
20% AED 0
Current UAE average: 3.5% - 6.5%
Monthly Payment
AED 0
Principal + Interest
Loan Amount
AED 0
Total Interest
AED 0
Total Payment
AED 0

📋 Note:

This is an estimate only. Actual rates and terms may vary based on your credit profile, bank policies, and current market conditions. Additional costs like insurance, registration fees, and bank charges are not included.

Al Waleed WS 1 by Al Waleed Real Estate is a modern residential development designed as a part of the prestigious Dubai Land Residence Complex masterplan. Crafted with smart layouts and contemporary finishes, this project brings an elegant living environment tailored for professionals, families, and investors. The architecture emphasizes functionality, natural light, and open interiors, creating a community that balances privacy and vibrant urban life. As a part of the larger project masterplan, Al Waleed WS 1 masterplan ensures residents benefit from seamless connectivity to retail hubs, lifestyle destinations, and key Dubai landmarks. Its strategic setting within DLRC makes it an excellent choice for those seeking a future-ready property that combines affordability with modern design. Key Features Location & Nearby Attractions: • Circle Mall – 08 minutes • Mall of the Emirates – 15 minutes • Dubai Marina – 18 minutes • Downtown Dubai – 20 minutes • DXB International Airport – 25 minutes Amenities: • Parking • Yoga • Sauna • Japanese garden • Basketball court • Indoor and outdoor gym • Looped jogging track • Jacuzzi

Location

Al Waleed W.S 1 , Dubai Land Residence Complex

Where is Al Waleed WS 1 Located?

Al Waleed WS 1 is located in Dubai Land Residence Complex, Dubai, offering direct access to key roads and city landmarks.

Is this Al Waleed WS 1 Freehold or leasehold?

Yes, Al Waleed WS 1 is a freehold property, allowing full ownership for both UAE nationals and foreign investors.

Is Al Waleed WS 1a good investment?

Al Waleed WS 1 is a strong investment opportunity in Dubai, especially for buyers seeking modern, affordable housing with long-term potential. Located in the thriving Dubai Land Residence Complex (DLRC), this project features freehold ownership and a well-balanced mix of studio, one-, and two-bedroom apartments. The development offers smart layouts, floor-to-ceiling windows, and modern finishes that appeal to both end-users and investors. Its prime location ensures easy access to major highways, schools, and shopping destinations. With completion scheduled for Q1 2027, competitive pricing, and high rental appeal, Al Waleed WS 1 stands out as a valuable residential asset in a growing community.

When is Al Waleed WS 1s Delivery date?

Al Waleed WS 1 is scheduled for delivery in February 2027. This confirmed timeline allows buyers and investors to plan with confidence. The project’s completion date reflects the developer’s structured execution plan and commitment to timely handover. With the handover set for early 2027, future residents can expect to occupy modern, well-designed apartments in one of Dubai’s growing residential hubs. The February 2027 delivery date also aligns with market demand for ready-to-move properties, offering a clear timeframe for investment returns or personal occupancy. This delivery schedule enhances the project’s appeal to both end-users and property investors.

Who is the owner of Al Waleed WS 1 ?

Al Waleed WS 1 is developed and owned by Al Waleed Real Estate, a reputable company known for delivering quality residential and commercial projects across Dubai. With a strong track record in property development, Al Waleed Real Estate focuses on creating well-designed, functional living spaces that meet the needs of modern residents. The company emphasizes high construction standards, timely project delivery, and customer satisfaction. Their involvement in Al Waleed WS 1 ensures the project is backed by experience, reliability, and a commitment to quality, making it a trusted investment choice for both homeowners and real estate investors in the region.

What is the Payment Plan of Al Waleed WS 1 ?

The payment plan for Al Waleed WS 1 is straightforward. Buyers make a 20% down payment at the sales launch. During construction, 40% of the payment is due, spread across the building period. The remaining 40% is payable at handover when the property is completed and ready for ownership transfer. This structure gives buyers a clear schedule with defined milestones, aligning the largest payments with the project’s progress and final delivery.

What is Al Waleed WS 1's starting price?

The starting price of Al Waleed WS 1 is AED 577,000, providing access to residential units in a central Dubai location.

What are the housing options of Al Waleed WS 1?

Al Waleed WS 1 offers a range of housing options tailored to meet the needs of different buyers, from individuals to small families. The development features modern apartments with practical layouts and efficient use of space. Studios are available with sizes of 409 square feet, making them an excellent choice for singles or investors looking for compact units that are easy to maintain and attractive for rentals. The 1-bedroom apartments measure 699 square feet, offering a balance of privacy and functionality. These units are well-suited for professionals or couples who require more space than a studio while still maintaining efficiency in design. For families or residents seeking larger homes, the 2-bedroom apartments measure 1,162 square feet. These residences provide ample living space with layouts designed to support comfort and daily convenience. With these varied apartment options, Al Waleed WS 1 presents opportunities for both end-users and investors to secure a property in Dubai at competitive sizes and pricing.

Launch Price

AED 577,300

*Prices may vary

Key Information

Handover 2027-02-28
Property Types apartment
Status Under construction

Interested in this project?

Contact the developer for more details, pricing, and availability.