Burj Binghatti Jacob & Co

Burj Binghatti Jacob & Co, Business Bay

About this Project

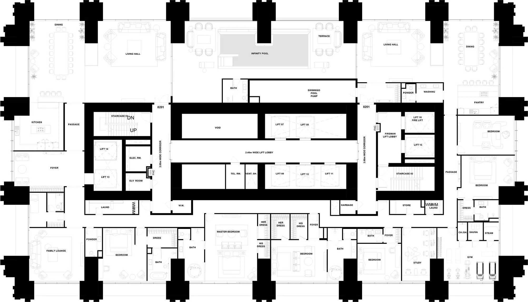
With the Burj Binghatti Jacob & Co. Residences, prepare to enter an exclusive world of luxury and elegance. This spectacular tower, designed by the famous Binghatti Developers, aspires to smash global records and redefine high-end living standards. Burj Binghatti Jacob & Co's Prime Location The construction is conveniently positioned in Business Bay, next to the SLS Dubai Hotel & Residences. The strategic position allows for quick access to the emirate's important locations, such as: • 15 minutes to Dubai Airport • 10 minutes to Downtown Dubai • 15 minutes to Dubai Marina • 35 minutes to DWC Airport Key Highlights • Luxurious Residences: These houses are designed to accommodate a range of lifestyles, with options ranging from 2 to 7 bedrooms. There's a great match for you, whether you're a developing family or a high-flying professional. • High Returns on Investment: The prestigious location and the project's prominence offer strong ROIs and capital appreciation. • Premium Amenities: Residents will have access to first-rate amenities such as concierge and training services. • Prime Location: The development is less than 10 minutes away from Burj Khalifa and Dubai Mall, bringing the best of Dubai to your doorstep. • Exceptional Design: The houses are beautifully decorated and provide amazing views of the city. Amenities • Concierge services • Chauffeur services • Bodyguard services • Butler services • Titanium access card • Parking access card • Lobby lounge • Private chef service • Infinity pool • Food and beverage • Spa service • Daycare service • Housekeeping services • Gym The Iconic Skyscraper The Burj Binghatti Jacob & Co. Residences aspires to be one of the world's most imposing towers. These mansions are the pinnacle of luxury, designed by the world-renowned Jacob & Co. Variety of Housing Options The residences cater to a range of lifestyle preferences with a variety of options: • 2 Bedroom Villa (3337 sq ft) • 2 Bedroom Villa (3335 sq ft) • 3 Bedroom Villa (3299 sq ft) • 4 Bedroom Villa (6976 sq ft) • 6 Bedroom Villa (6976 sq ft) • 5 Bedroom Penthouse (11807 sq ft) • 7+ Bedroom Penthouse (22469 sq ft) Deliver Date and Starting Price • Delivery Date: Q4-2026 • Starting Price: 9200000 AED Being a resident of the Burj Binghatti Jacob & Co Residences means being a part of a dynamic and fascinating community. The expertly planned community provides an exciting lifestyle with a wide range of entertainment and recreational options.

Construction Status

Phase
Under construction
Progress
23.04%

Project Details

  • Type: apartment, penthouse, villa
  • Launch Date: 2022-10-01
  • Completion Date: 2026-06-30

Amenities

Shared Pool
Restaurants
Infinity Pool
Health Club
Security
Shared Spa
Well-being and Fitness
Gymnasium
Children's Play Area
Concierge

Project Timeline

  • Booking Started: 01/10/2022
  • Construction Started: 02/10/2022
  • Expected Completion: 30/06/2026

Project Videos

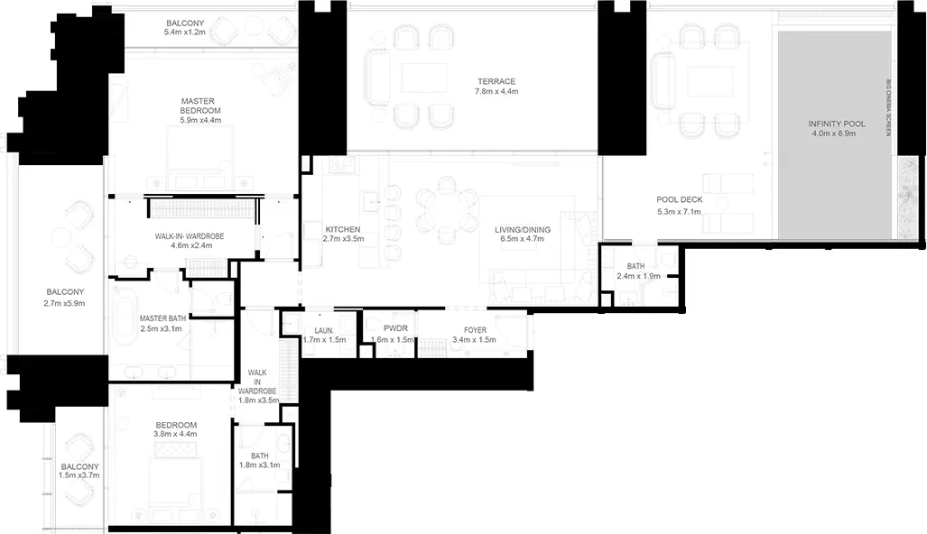
Available unit types from developer

APARTMENT

2 Bedrooms

Size: 3286 sq ft
Starting from AED 10,090,000
Available Layouts
Layout Type Size (sqft) Floor Plan
Type A 3,286.00 View

APARTMENT

3 Bedrooms

Size: 3263 sq ft
Starting from AED 16,739,999
Available Layouts
Layout Type Size (sqft) Floor Plan
Type A 3,263.00 View

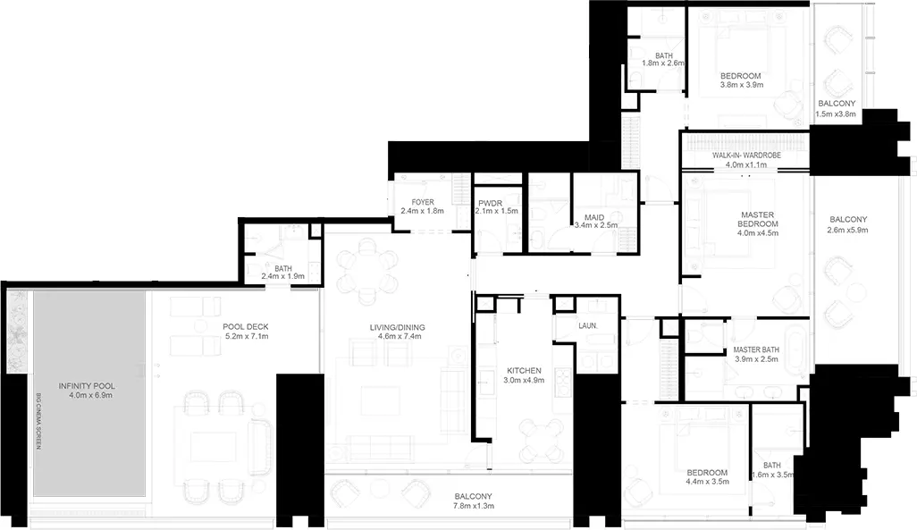
APARTMENT

5 Bedrooms

Size: 11796 sq ft
Starting from AED 175,000,000
Available Layouts
Layout Type Size (sqft) Floor Plan
Type A 11,796.00 View

APARTMENT

6 Bedrooms

Size: 6899 - 6914 sq ft
Starting from AED 35,700,000
Available Layouts
Layout Type Size (sqft) Floor Plan
Type A 6,899.00 View
Type B 6,914.00 View

PENTHOUSE

5 Bedrooms

Size: 11807 sq ft
Starting from AED 175,000,000
Available Layouts
Layout Type Size (sqft) Floor Plan
Type Astronomia Sky 11,807.00 View

PENTHOUSE

8 Bedrooms

Size: 22469 sq ft
Starting from AED 750,000,000
Available Layouts
Layout Type Size (sqft) Floor Plan
Type The Billionaire Sky 22,469.00 View

VILLA

2 Bedrooms

Size: 3335 - 3337 sq ft
Starting from AED 8,480,000
Available Layouts
Layout Type Size (sqft) Floor Plan
Type Sapphire 3,335.00 View
Type Emerald 3,337.00 View

VILLA

3 Bedrooms

Size: 3299 sq ft
Starting from AED 13,999,999
Available Layouts
Layout Type Size (sqft) Floor Plan
Type Ruby 3,299.00 View

VILLA

4 Bedrooms

Size: 6976 sq ft
Starting from AED 36,100,000
Available Layouts
Layout Type Size (sqft) Floor Plan
Type Sky Mansion 6,976.00 View

VILLA

6 Bedrooms

Size: 6976 sq ft
Starting from AED 36,100,000
Available Layouts
Layout Type Size (sqft) Floor Plan
Type Fleur De Jardin Sky Mansion 6,976.00 View

Standard

during construction
70%
70%
handover
30%
30%

Monthly Payment Calculator

5% 15% 25% 35% 50%
20% AED 0
Current UAE average: 3.5% - 6.5%
Monthly Payment
AED 0
Principal + Interest
Loan Amount
AED 0
Total Interest
AED 0
Total Payment
AED 0

📋 Note:

This is an estimate only. Actual rates and terms may vary based on your credit profile, bank policies, and current market conditions. Additional costs like insurance, registration fees, and bank charges are not included.

Burj Binghatti Jacob & Co. Residences is a groundbreaking luxury development located in Business Baymasterplan. Burj Binghatti Jacob & Co. Residences is the epitome of elite living. Its prime location provides residents with seamless connectivity to key destinations like Burj Khalifa, Dubai Mall, and Dubai International Airport. This residence caters to the highest standards, perfect for those seeking both elegance and comfort in one of the world's most exclusive settings. Key Features Location & Nearby Attractions: • 8 Minutes to Burj Khalifa • 9 Minutes to Dubai Mall • 15 Minutes to Dubai International Airport Amenities • Concierge, butler & private chef services • Infinity pool, spa & gym • Chauffeur & bodyguard services

Location

Burj Binghatti Jacob & Co , Business Bay

Is Burj Binghatti Jacob & Co a good investment?

This is a strong investment, positioned in the prestigious Business Bay area. Its exclusive design and strategic location near Dubai’s top attractions promise high returns and capital appreciation. The combination of luxury features, proximity to landmarks like Burj Khalifa and Dubai Mall, and a world-renowned developer ensures its value will continue to rise.

What is the Payment Plan of Burj Binghatti Jacob & Co?

70% during construction 30% on handover

Who is the owner of Burj Binghatti Jacob & Co?

The developer is Binghatti Developers FZE, known for delivering exceptional luxury properties with innovative designs and quality.

When is Burj Binghatti Jacob & Co's delivery date?

June 2026

What is Burj Binghatti Jacob & Co's starting price?

The starting price for Burj Binghatti Jacob & Co is 9,200,000 AED.

Launch Price

AED 9,200,000

*Prices may vary

Key Information

Handover 2026-06-30
Property Types apartment, penthouse, villa
Status Under construction

Interested in this project?

Contact the developer for more details, pricing, and availability.