Malibu Villas

Malibu, Mina Al Arab

About this Project

RAK Properties' newest project, Malibu Villas. With the reputation and dependability of its developer behind it, this private community provides a distinctive living environment. We'll go into the specifics of the development, including its excellent location, special features, and the opulent lifestyle it offers to its occupants, in this guide. Malibu Villas's Prime Location Situated in a prime area, Malibu Villas is encircled by an abundance of facilities and amenities. With well-known retail establishments, supermarkets, and the Al Hamra Mall all within ten minutes' stroll, convenience is a big lure. In just fifteen minutes, you can drive to the RAK Mall and the My City Centre Al Dhait, if that's more your speed. Unparalleled Living Experience The stunning three-bedroom villas that make up the residences at Malibu Villas combine luxury, comfort, and style. With their exquisite details and fine craftsmanship, the villas provide the ideal blend of indoor and outdoor living. Amenities Malibu Villas has been carefully planned to provide its residents with an all-inclusive lifestyle. Here's a brief synopsis: • Shopping • Dining • Education • Healthcare • Leisure Entertainment Offerings Malibu Villas makes sure that you have fun and relaxation every day. There's always something to do, from an enjoyable day at the beach to a stroll through the nearby mangrove forest. The community has everything you could want for a fun-filled night out or a peaceful evening. Delivery Date • Delivery Date: Q3 of 2023. Convenience is right outside your door thanks to the abundance of amenities surrounding the residences. A variety of entertainment options are available to you, guaranteeing that life is never boring. The villas are expertly designed to provide the highest level of luxury and comfort. Live the lifestyle of Malibu Villas and turn your dream house into a reality right now!

Construction Status

Phase
Completed

Project Details

  • Type: villa
  • Completion Date: 2023-09-01

Amenities

Restaurants
Gymnasium
Cafe and Restaurants
Tennis Courts
Beach Access
Shared Spa
Mosque
CCTV Security

Project Timeline

  • Construction Started: 01/06/2023
  • Expected Completion: 01/09/2023

Project Videos

Available unit types from developer

VILLA

3 Bedrooms

Starting from AED 1,750,000
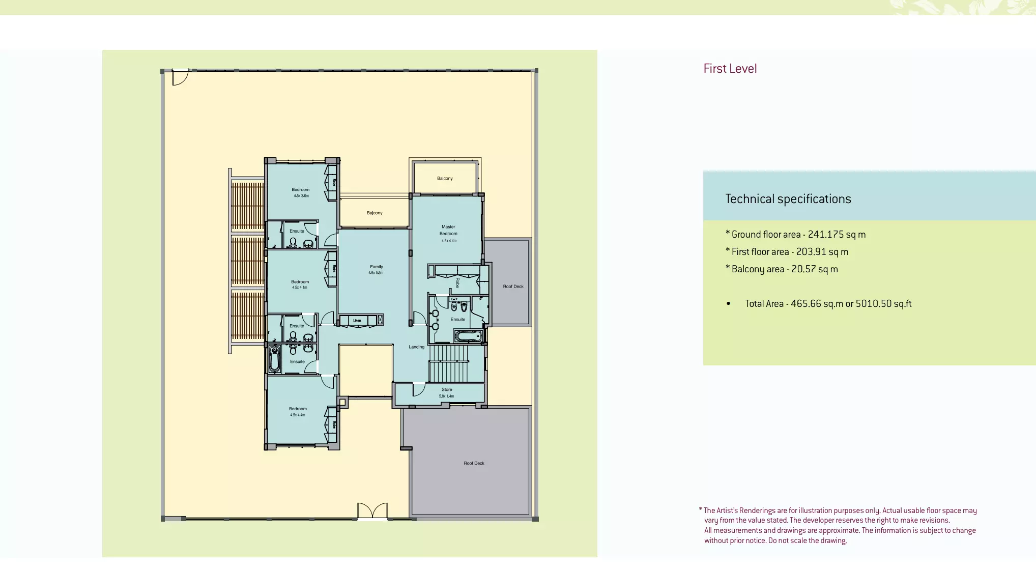
Available Layouts
Layout Type Size (sqft) Floor Plan
Type A - View
Type B - View

Option 1

down payment
5%
On Booking 5%
during construction
90%
In 3 Months 5%
In 6 Months 5%
In 12 Months 10%
In 18 Months 10%
In 24 Months 10%
In 30 Months 10%
In 36 Months 10%
In 42 Months 10%
In 48 Months 10%
In 54 Months 10%
handover
5%
In 60 Months 5%

Monthly Payment Calculator

5% 15% 25% 35% 50%
20% AED 0
Current UAE average: 3.5% - 6.5%
Monthly Payment
AED 0
Principal + Interest
Loan Amount
AED 0
Total Interest
AED 0
Total Payment
AED 0

📋 Note:

This is an estimate only. Actual rates and terms may vary based on your credit profile, bank policies, and current market conditions. Additional costs like insurance, registration fees, and bank charges are not included.

Malibu Villas,Mina Al Arab MasterPlan Malibu Villas by RAK Properties offers a luxurious and private living experience in the tranquil Mina Al Arab community of Ras Al Khaimah. This development features stunning villas that embody a perfect blend of luxury, comfort, and style. Residents enjoy spacious, open-plan interiors that seamlessly connect to lush outdoor spaces, creating the ideal environment for relaxation and entertainment. The villas are situated in a prime location, with convenient access to shopping malls, dining options, and recreational facilities. The community offers a variety of leisure amenities, including swimming pools, fitness centers, and walking tracks, along with access to serene beaches and a nearby mangrove forest. With its tranquil surroundings and upscale lifestyle, Malibu Villas provides an ideal retreat for those seeking a peaceful yet connected environment in Ras Al Khaimah. Key Features Location • 45 minutes to Dubai International Airport • 15 minutes to Ras Al Khaimah International Airport Amenities • Swimming Pool • Fitness Area • Kids Play Area • Barbecue Areas

Location

Malibu , Mina Al Arab

Who is the owner of Malibu Villas?

Malibu Villas is developed by RAK Properties, a well-established real estate developer in Ras Al Khaimah known for creating quality residential communities. Their commitment to excellence ensures that every project is built to the highest standards, making their developments attractive to investors.

Is Malibu Villas a good investment?

Malibu Villas is a strong investment, offering a unique lifestyle in Ras Al Khaimah with easy access to amenities and attractions. The luxury villas provide excellent potential for capital appreciation, making them a desirable option for investors seeking long-term value

What is Malibu Villas's starting price?

The starting price of Malibu Villas is 2,600,000 AED.

When is Malibu Villas's Delivery Date?

Malibu Villas is expected to be delivered in September 2023, giving buyers a timely opportunity to settle in or start investing in the property.

What is the Payment Plan of Malibu Villas?

Payment Plan: 5% down payment at sales launch 90% during construction in 10 installments 5% on handover

Launch Price

AED 1,750,000

*Prices may vary

Key Information

Handover 2023-09-01
Property Types villa
Status Completed

Interested in this project?

Contact the developer for more details, pricing, and availability.