Sequoia

Sequoia, Masaar

About this Project

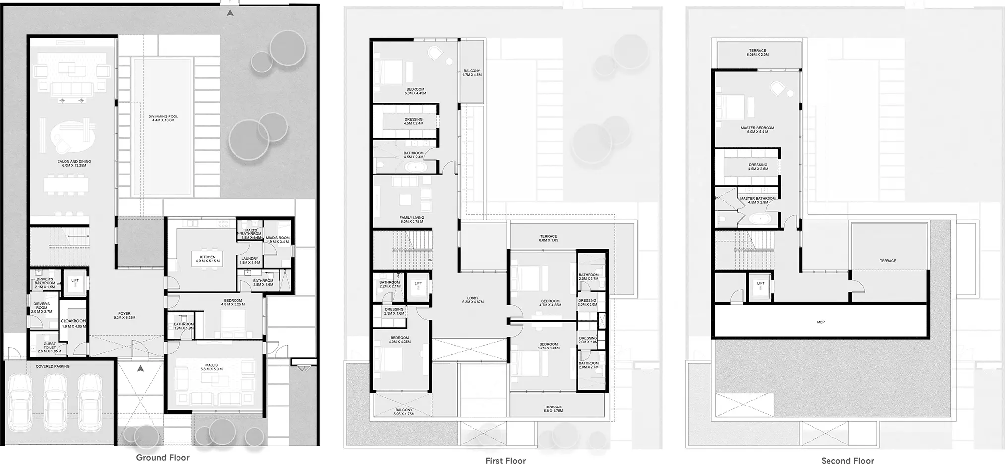
Sequoia is a development project by ARADA that will provide a new fusion of nature and contemporary into your life. The goal of this project is to create a way of life that reflects the peace of a wooded paradise, not just to build structures. Immerse in the Serenity of Woodland Paradise Sequoia offers a traditional style of elegance and beauty that improves and inspires your life. Here, life moves at a quicker speed, allowing you to refocus on and redefine the peaceful moments with your family that truly matter. Experience Nature Intertwined with Luxury Sequoia is tucked away in the middle of Masaar and was designed to provide a special setting where trees outnumber people, providing a really active and luxurious living. Inviting you to spend quality time with your loved ones, the development offers a variety of outdoor amenities and places, green spaces, and a green spine that flows through the neighborhood. A Variety of Housing Options Sequoia provides a variety of townhomes with 2 to 4 bedrooms to accommodate different living preferences. Sequoia has something for everyone, whether you are a small family seeking a comfortable room or a bigger family seeking a spacious home. Serviced Living with a Difference Living in Sequoia assures you not only of a beautiful home but also access to outstanding services and natural spaces for fun and entertainment. Embrace the healing power of nature's best elements as you enjoy the convenience of top-tier amenities. Under Construction! Be a Part of Sequoia’s Journey The Sequoia project is still under development, but its outstanding features and desirable location are already making ripples. with delivery anticipated for Q4-2025. Pick Your Dream Residence from a Range of Units Sequoia offers a range of unit types to fit every lifestyle: • 2 Bedroom Townhouse: 1965 sqft • 3 Bedroom Townhouse: 2348 sqft and 2349 sqft • 4 Bedroom Townhouse: 2661 sqft and 3156 sqft • 4 Bedroom Villa: 3540 sqft and 4145 sqft • 5 Bedroom Villa: 6474 sqft • 6 Bedroom Villa: 8829 sqft Despite being only a few minutes from the major city, Sequoia offers a house that feels miles away. Picnics, dining, strolling, motorcycling, yoga, and meditation are regular activities in this paradise. Experience the pleasure of a laid-back living amidst the best that nature and modernity have to offer with Sequoia at Masaar.

Construction Status

Phase
Under construction

Project Details

  • Type: townhouse, villa
  • Completion Date: 2025-12-01

Amenities

Gymnasium
Landscaped Parks
Yoga room
Security
Private Pool
Well-being and Fitness

Project Timeline

  • Construction Started: 23/04/2024
  • Expected Completion: 01/12/2025

Project Videos

Available unit types from developer

TOWNHOUSE

2 Bedrooms

Size: 1965 sq ft
Starting from AED 1,696,000
Available Layouts
Layout Type Size (sqft) Floor Plan
Type A 1,965.00 View
Type B 1,965.00 View

TOWNHOUSE

3 Bedrooms

Size: 2348 - 2349 sq ft
Starting from AED 1,696,000
Available Layouts
Layout Type Size (sqft) Floor Plan
Type B 2,348.00 View
Corner/End Type A 2,349.00 View
Corner/End Type B 2,349.00 View
Type A 2,348.00 View

TOWNHOUSE

4 Bedrooms

Size: 2661 - 3156 sq ft
Starting from AED 2,802,000
Available Layouts
Layout Type Size (sqft) Floor Plan
Corner/End Type B 3,156.00 View
Corner/End Type A 3,156.00 View
Type B 2,661.00 View
Type A 2,661.00 View

VILLA

4 Bedrooms

Size: 3540 - 4540 sq ft
Starting from AED 5,282,000
Available Layouts
Layout Type Size (sqft) Floor Plan
Type 2B 4,154.00 View
Type 2A 4,145.00 View
Type 1A 4,540.00 View
Type 1B 3,540.00 View

VILLA

5 Bedrooms

Size: 6474 sq ft
Starting from AED 7,120,000
Available Layouts
Layout Type Size (sqft) Floor Plan
Forest Signature Type A 6,474.00 View
Forest Signature Type B 6,474.00 View

VILLA

6 Bedrooms

Size: 8829 - 9235 sq ft
Starting from AED 9,014,000
Available Layouts
Layout Type Size (sqft) Floor Plan
Forest Signature Type B 8,829.00 View
Forest Signature Type A 8,829.00 View
Type A 9,235.00 View

Standard

down payment
5%
5%
during construction
40%
40%
handover
55%
55%

Monthly Payment Calculator

5% 15% 25% 35% 50%
20% AED 0
Current UAE average: 3.5% - 6.5%
Monthly Payment
AED 0
Principal + Interest
Loan Amount
AED 0
Total Interest
AED 0
Total Payment
AED 0

📋 Note:

This is an estimate only. Actual rates and terms may vary based on your credit profile, bank policies, and current market conditions. Additional costs like insurance, registration fees, and bank charges are not included.

Sequoia,Masaar, Tilal City MasterPlan Sequoia by ARADA offers an exceptional living experience surrounded by nature in the heart of Masaar, Sharjah. Designed as a sanctuary where trees outnumber people, Sequoia combines modern living with natural serenity, providing residents with a peaceful woodland retreat. The development offers a variety of townhouses and villas that promote an active and balanced lifestyle. Green spaces, cycling tracks, and tree-lined walkways create an atmosphere of tranquility, perfect for spending time with loved ones. The development also includes wellness amenities such as yoga zones and outdoor sports courts, encouraging residents to embrace an active, healthy lifestyle. Despite being a short distance from urban centers, Sequoia allows you to reconnect with nature while enjoying a host of premium amenities. Key Features Location • 2 minutes to Nasma Central Park • 2 minutes to Tilal Mall • 20 minutes to Dubai International Airport Amenities • Forest Landscape • Running & Cycling Tracks • Kids' Play Areas • Outdoor Tennis Courts

Location

Sequoia , Masaar

What is the Payment Plan of Sequoia?

The payment plan for Sequoia is structured as follows: 5% down payment at the sales launch, 40% during construction, and 55% upon handover.

Is Sequoia a good investment?

Sequoia offers a unique living experience that combines the tranquility of nature with the comforts of modern luxury. Located within Masaar, it provides an escape from the city while remaining close to key areas. The project's design focuses on creating green spaces, promoting a peaceful and sustainable lifestyle. With its emphasis on outdoor activities and natural surroundings, Sequoia is an attractive investment for those seeking long-term growth potential in a thriving community. Its serene setting, along with excellent connectivity and future development, makes it a solid choice for both personal living and investment.

What is Sequoia's starting price?

The starting price of Sequoia is 1.7M AED.

Who is the owner of Sequoia?

Sequoia is owned by ARADA, a prominent real estate developer known for creating high-quality residential communities. ARADA focuses on designing sustainable and luxurious living environments.

When is Sequoia's Delivery date?

Sequoia is scheduled for delivery in December 2025. This timeline ensures that prospective buyers can anticipate moving into their homes in a timely manner while enjoying a high-quality development.

Launch Price

AED 1,696,000

*Prices may vary

Key Information

Handover 2025-12-01
Property Types townhouse, villa
Status Under construction

Developer

Interested in this project?

Contact the developer for more details, pricing, and availability.