Sokoon By Arada

Sokoon, Naseej District

About this Project

Sokoon by Arada Developer: A New Age of Luxury Living in Sharjah Thanks to ARADA, a renowned developer in the UAE, welcome to the start of a new chapter in residential living in the center of Sharjah. They are pleased to introduce Sokoon, a family-friendly complex with a variety of one, two, and three-bedroom apartments. The property has a prime location in the Naseej District, with easy access to both University City Road and Sheikh Mohammed bin Zayed Road. Sokoon - The Prime Location in Sharjah Sokoon, which connects inhabitants to the new cultural megaproject, is situated within a gated neighborhood. It's the ideal location for families looking to enjoy the finest of modern life because it provides quick access to well-known neighborhoods, commercial districts, entertainment centers, and imposing landmarks. Comfort and Luxury - Sokoon's Unique Offering The allure of Sokoon is that it provides a luxurious lifestyle with cutting-edge facilities. Modern apartments with high-end furnishings and fittings and breathtaking views of the garden and courtyard are what residents can anticipate. Sokoon redefines luxurious living with its avant-garde design and clever digital features. The development encourages an active and healthy lifestyle by providing parks, green areas, and a variety of health and fitness options right at the doorstep. It is a highly sought-after option for anyone seeking a balanced lifestyle because of its recreational areas and first-rate amenities. Sokoon's Varied Housing Options Sokoon offers a wide range of housing alternatives, from minimum 1-bedroom flats to maximum 3-bedroom apartments, to accommodate a variety of family sizes and lifestyle preferences. The following is a list of the apartment units together with their corresponding square footage: • 1 Bedroom Apartments: from 676 to 768 sqft • 2 Bedroom Apartments: from 975 to 1148 sqft • 3 Bedroom Apartments: from 1275 to 1774 sqft Amenities, Services, and Sub-Communities There is nothing like Sokoon's amenities and services to provide inhabitants with what they require for a fulfilling and comfortable life. The sub-communities inside the complex offer an abundance of amenities and are well-equipped to enable people to lead independent lives. Entertainment Offerings and Advantages Sokoon offers a multitude of lifestyle benefits and entertainment alternatives. Because of its ideal location, residents can easily move around and make the most of their time. Living in Sokoon has several benefits, including convenient access to well-known sites, recreational places, and first-rate amenities. Project Status and Expected Delivery The Sokoon project is currently being built, and Q4 of 2024 is the anticipated completion date. For those looking for a great lifestyle or a smart investment, it is an excellent option with an appealing and flexible payment plan. Sokoon by ARADA is a lifestyle option that offers a well-rounded, luxurious living experience, seductively tucked away in the center of Sharjah, rather than just a residential development.

Construction Status

Phase
Completed

Project Details

  • Type: apartment
  • Completion Date: 2023-01-01

Amenities

Health Club
Balcony
Restaurants
Private Garden
Built in Wardrobes
Central A/C
Kitchen Appliances
Children's Play Area
View of Water
Private Gym
Covered Parking
Shared Gym
Security
Gymnasium
Shared Pool

Project Timeline

  • Construction Started: 29/05/2022
  • Expected Completion: 01/01/2023

Project Videos

Available unit types from developer

APARTMENT

1 Bedroom

Size: 677 - 718 sq ft
Starting from AED 548,000
Available Layouts
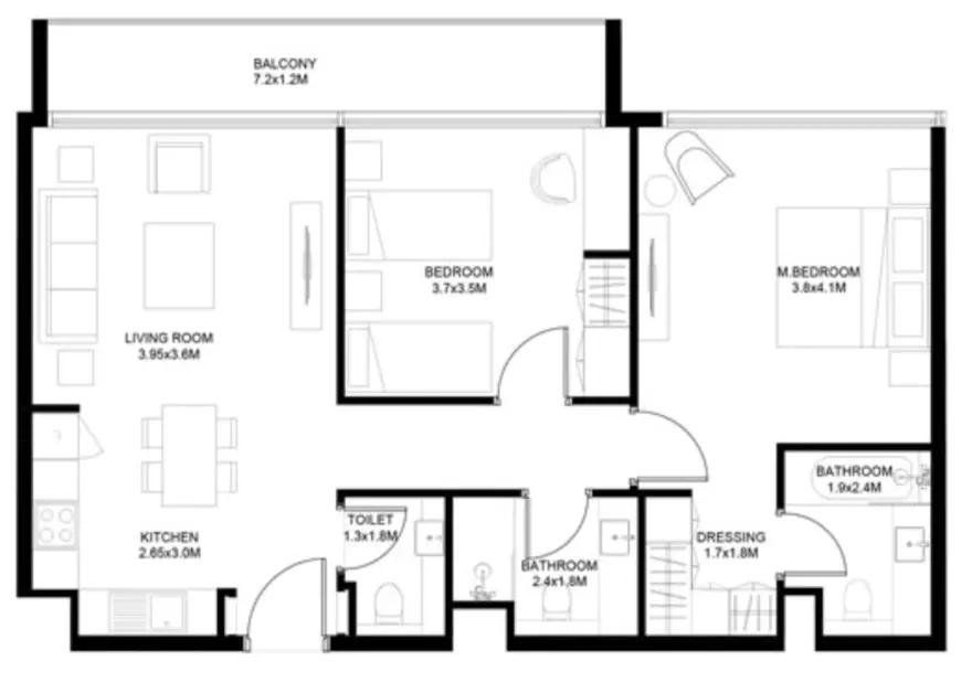
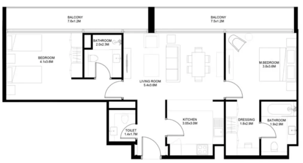
Layout Type Size (sqft) Floor Plan
Type A1 680.00 View
Type A2 679.00 View
Type A3 677.00 View
Type A4 685.00 View
Type A5 687.00 View
Type B1 718.00 View
Type B2 677.00 View

APARTMENT

2 Bedrooms

Size: 977 - 1210 sq ft
Starting from AED 548,000
Available Layouts
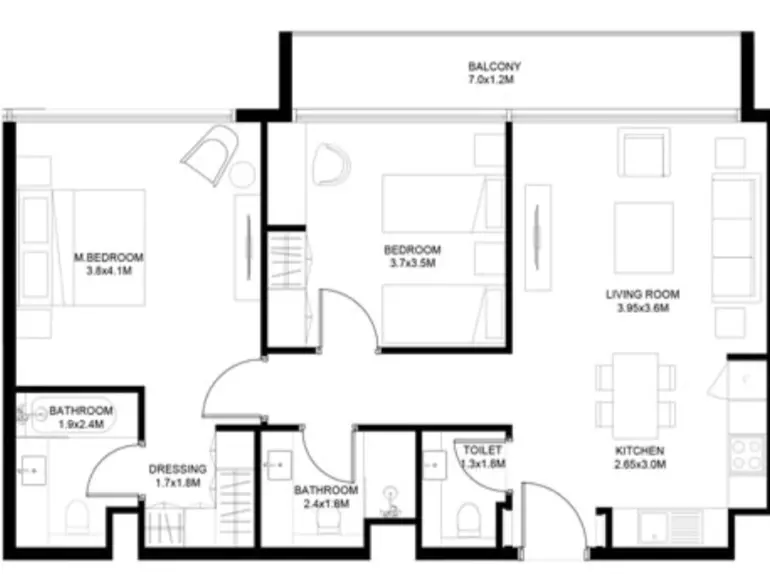
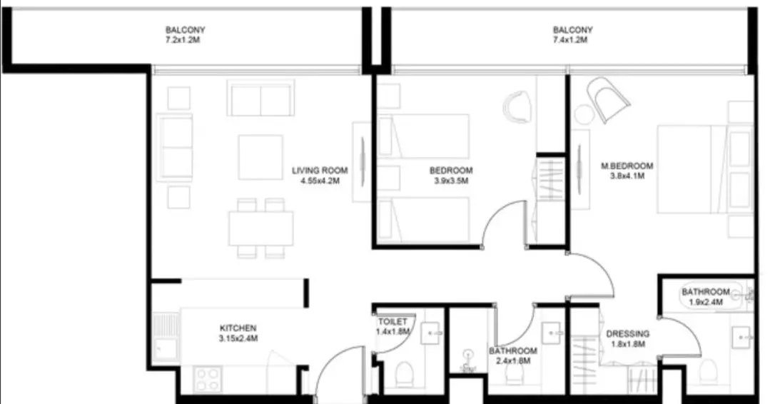
Layout Type Size (sqft) Floor Plan
Type A1 1,210.00 View
Type B1 977.00 View
Type B2 980.00 View
Type C1 1,187.00 View
Type D1 1,141.00 View

APARTMENT

3 Bedrooms

Size: 1839 sq ft
Starting from AED 548,000
Available Layouts
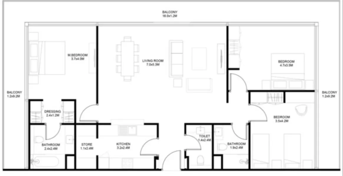
Layout Type Size (sqft) Floor Plan
Type A1 1,839.00 View

Standard

down payment
5%
5%
during construction
40%
40%
handover
55%
55%

Monthly Payment Calculator

5% 15% 25% 35% 50%
20% AED 0
Current UAE average: 3.5% - 6.5%
Monthly Payment
AED 0
Principal + Interest
Loan Amount
AED 0
Total Interest
AED 0
Total Payment
AED 0

📋 Note:

This is an estimate only. Actual rates and terms may vary based on your credit profile, bank policies, and current market conditions. Additional costs like insurance, registration fees, and bank charges are not included.

Sokoon, Aljada MasterPlan Sokoon by Arada Developer offers an extraordinary living experience in Aljada, Sharjah. This family-friendly development features a range of luxurious one, two, and three-bedroom apartments. The modern design incorporates high-end finishes, creating bright, spacious interiors. Residents enjoy tranquil views of lush gardens and landscaped courtyards, offering a serene escape from the city. With proximity to the cultural district, Sokoon allows easy access to key landmarks, shopping, and dining areas. It promotes an active lifestyle with green spaces, parks, and fitness options right at your doorstep. The development emphasizes a harmonious balance between urban convenience and nature, making it the perfect choice for those seeking a peaceful yet connected lifestyle. Sokoon offers a blend of comfort, modernity, and luxury, making it an ideal destination for those seeking a vibrant, sustainable community in Sharjah. Key Features Location • 5 minutes to Madar • 5 minutes to Sharjah International Airport • 15 minutes to Dubai International Airport Amenities • Kids Play Area • Courtyard • Garden & Parks • Cafes & Restaurants

Location

Sokoon , Naseej District

What is Sokoon's starting price?

The starting price of Sokoon is 548K AED.

Is Sokoon a good investment?

Sokoon, developed by ARADA, is a strong investment opportunity due to its prime location in Sharjah’s Naseej District, offering easy access to key roads and commercial areas. The development's focus on a family-friendly, luxurious lifestyle with modern design and smart features enhances its appeal. Residents can enjoy green spaces, parks, and health-focused amenities, promoting an active lifestyle. The community's accessibility to cultural projects and entertainment venues, along with its well-planned infrastructure, ensures that Sokoon is not just a place to live, but a vibrant investment in a growing area.

When is Sokoon's Delivery date?

Sokoon is scheduled for delivery in January 2023. This timeline ensures that residents will be able to move into their new homes and enjoy the luxury amenities and prime location as planned

What is the Payment Plan of Sokoon?

The payment plan for Sokoon is as follows: • 5% down payment at sales launch • 40% during construction • 55% on handover.

Who is the owner of Sokoon?

Sokoon is owned by ARADA, a prominent real estate developer in the UAE. ARADA is known for creating modern, family-friendly communities with a focus on luxury and comfort.

Launch Price

AED 548,000

*Prices may vary

Key Information

Handover 2023-01-01
Property Types apartment
Status Completed

Developer

Interested in this project?

Contact the developer for more details, pricing, and availability.