Tetris Tower

Tetris Tower, Jumeirah Village Circle

About this Project

Tetris Tower is a groundbreaking residential development in Dubai's Jumeirah Village Circle (JVC). Inspired by the iconic Tetris game, it showcases a bold geometric design that redefines luxury living. Developed by Object 1 CONTEMPORARY DEVELOPMENT, it offers modern amenities, prime location advantages, and sustainable living features. Prime Location Strategically located in JVC, Tetris Tower ensures seamless connectivity: • Highways: Minutes from Sheikh Mohammed Bin Zayed Road and Al Khail Road. • Nearby Destinations: • Circle Mall (5 mins) • Mall of the Emirates (15 mins) • Downtown Dubai (25 mins) • Education and Healthcare: Close to schools, nurseries, clinics, and hospitals. • Green Spaces: Parks and landscaped areas for active lifestyles. Amenities Tetris Tower boasts state-of-the-art facilities, including a fitness center, infinity pool, rooftop terrace, children's play areas, and co-working spaces. Additional highlights: landscaped gardens, cinema room, and smart home technology. Unit Type Tetris Tower offers stylish apartments with flexible options: • Studios: 400-500 sq. ft, starting from AED 737,000. • 1-Bedroom: 650-800 sq. ft, AED 950,000 - 1,200,000. • 2-Bedroom: 1,000-1,200 sq. ft, AED 1,500,000 - 1,800,000. • 3-Bedroom: 1,400-1,600 sq. ft, AED 2,000,000 - 2,500,000. Delivery Date Expected completion: June 1, 2027. This ambitious project aligns with Dubai's vision of delivering innovative and high-quality developments. Starting Price Prices begin at AED 737,000 for studio apartments. Tetris Tower offers unparalleled living in a vibrant community. Combining cutting-edge design, luxurious amenities, and prime location, it is ideal for discerning homeowners and investors looking for modern, sustainable urban living.

Construction Status

Phase
Under construction

Project Details

  • Type: apartment
  • Completion Date: 2027-06-01

Amenities

Cinema
CCTV Security
Indoor Swimming Pool
Gymnasium
Security
Shared Spa
Balcony
Children's Play Area
Barbecue Area

Project Timeline

  • Construction Started: 16/12/2024
  • Expected Completion : 01/06/2027

Project Videos

Available unit types from developer

APARTMENT

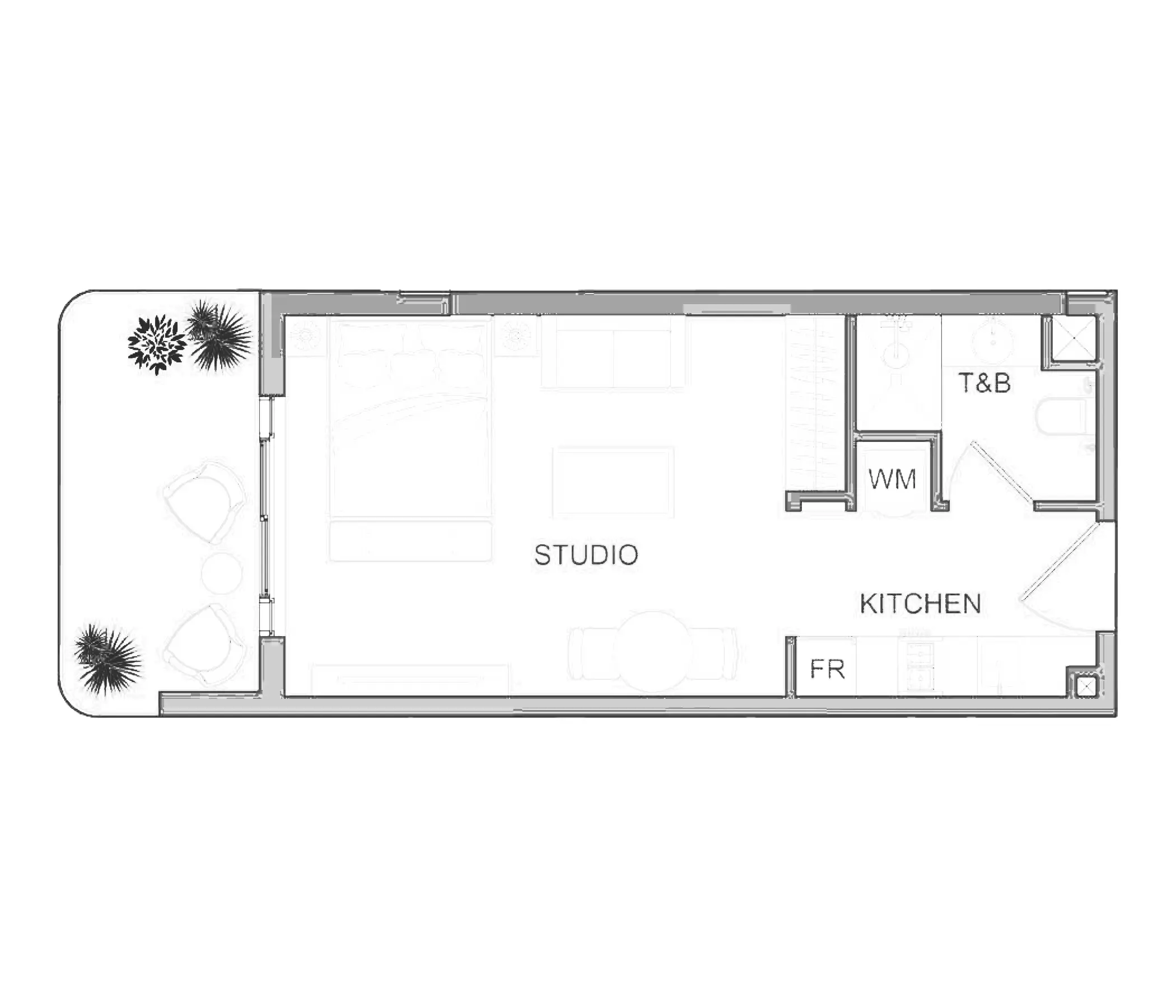
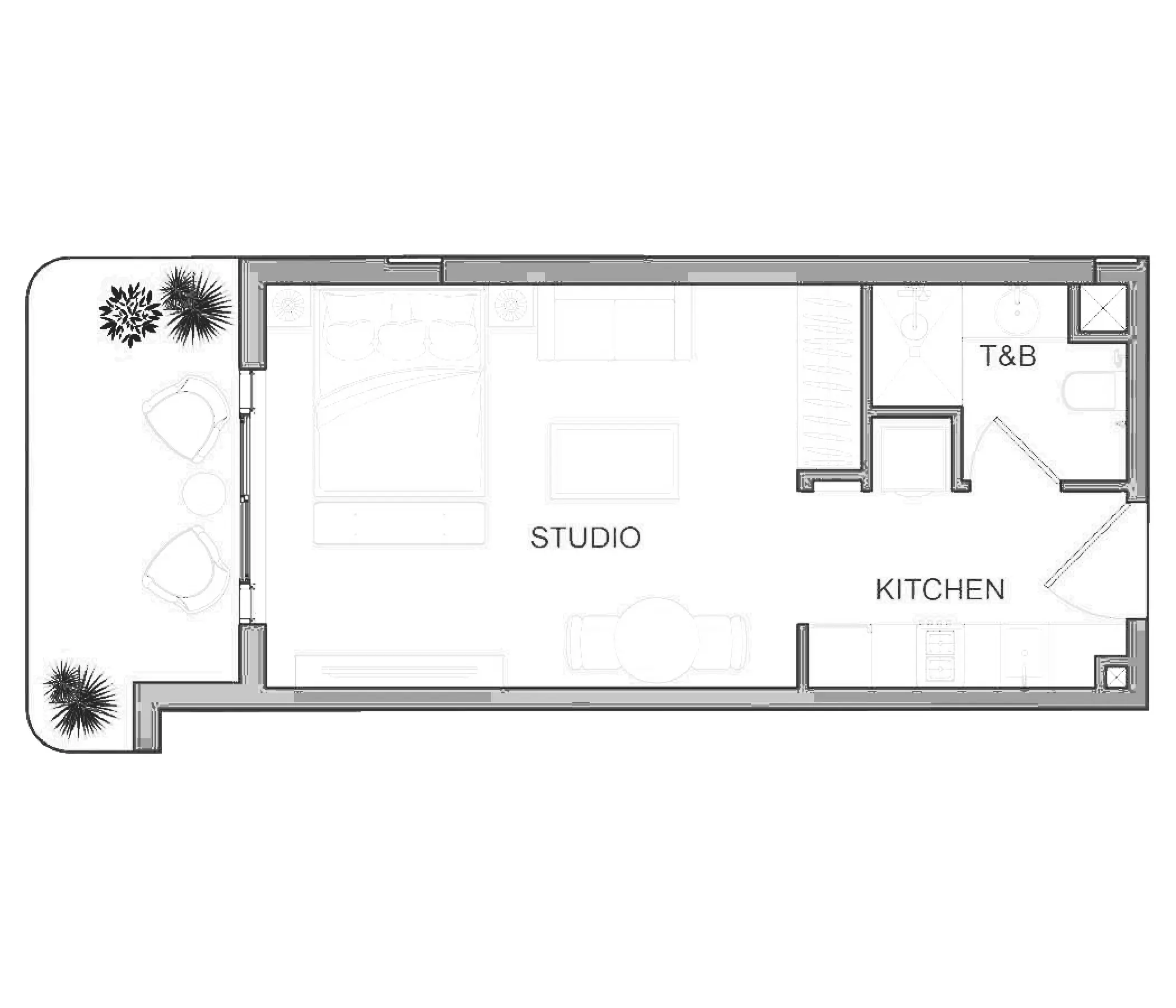
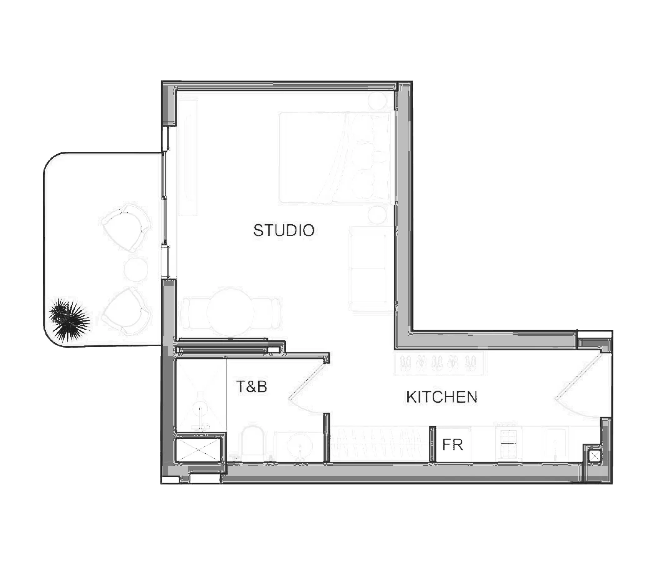
Studio

Size: 412 - 567 sq ft
Starting from AED 737,000
Available Layouts
Layout Type Size (sqft) Floor Plan
Studio Floor 3, 5, 7, 9, 11, 13, 15 428.00 View
Studio Floor 2 - 4 -10 - 14 423.00 View
Studio Floor 2, 3, 6, 7, 10, 11, 14, 15 428.00 View
Studio Floor 2 - 6 -10 - 14 418.00 View
Studio Floor 5, 9, 13 430.00 View
Studio Floor 3, 5, 7, 9, 11, 13, 15 412.00 View
Studio Floor 4, 8, 12, 16 423.00 View
Studio Floor 4, 8, 12, 16 428.00 View
Studio Floor 4, 8, 12, 16 418.00 View
Studio Floor 5 - 9 -13 430.00 View
Studio Floor 1 480.00 View
Type A 452.00 View
Type C 457.00 View
Type B 454.00 View
Type D 567.00 View

APARTMENT

1 Bedroom

Size: 701 - 994 sq ft
Starting from AED 1,100,000
Available Layouts
Layout Type Size (sqft) Floor Plan
One Bedroom Floor 4 ,8 ,12 ,16 759.00 View
One Bedroom Floor 5, 9, 13 766.00 View
One Bedroom Floor 1 994.00 View
One Bedroom Floor 2, 6, 10, 14 701.00 View
One Bedroom Floor 4 ,8 ,12 ,16 701.00 View
One Bedroom Floor 1 994.00 View
One Bedroom Floor 2, 6, 10, 14 759.00 View
One Bedroom Floor 3, 7, 11, 15 777.00 View
One Bedroom Floor 3, 7, 11, 15 763.00 View
One Bedroom Floor 5, 9, 13 724.00 View
One Bedroom Floor 1 852.00 View
One Bedroom Floor 5 - 9 -13 724.00 View

APARTMENT

2 Bedrooms

Size: 721 - 873 sq ft
Starting from AED 1,200,000
Available Layouts
Layout Type Size (sqft) Floor Plan
One Bedroom Pro Floor 1 737.00 View
One Bedroom Pro Floor 2, 3, 4, 5, 6, 7, 8, 9, 10, 11, 12, 13, 14, 15, 16 780.00 View
One Bedroom Pro Floor 2, 4, 6, 8, 10, 12, 14, 16 763.00 View
One Bedroom Pro Floor 2, 4, 6, 8, 10, 12, 14, 16 735.00 View
One Bedroom Pro Floor 2, 4, 6, 8, 10, 12, 14, 16 736.00 View
One Bedroom Pro Floor 2, 6, 10, 14 756.00 View
One Bedroom Pro Floor 3, 7, 11, 15 756.00 View
One Bedroom Pro Floor 3, 7, 11, 15 728.00 View
One Bedroom Pro Floor 3, 7, 11, 15 739.00 View
One Bedroom Pro Floor 3, 7, 11, 15 734.00 View
One Bedroom Pro Floor 3, 5, 7, 9, 11, 13, 15 724.00 View
One Bedroom Pro Floor 5, 9, 13 745.00 View
One Bedroom Pro Floor 3, 7, 11, 15 763.00 View
One Bedroom Pro Floor 5, 9, 13 752.00 View
One Bedroom Pro Floor 4, 8, 12, 16 737.00 View
One Bedroom Pro Floor 5, 9, 13 721.00 View
One Bedroom Pro Floor 4, 8, 12, 16 756.00 View
One Bedroom Pro Floor 1 873.00 View
One Bedroom Pro Floor 5 -9 -13 731.00 View
One Bedroom Pro Floor 2, 4, 5, 6, 8, 9, 10, 12, 13, 14, 16 771.00 View

APARTMENT

3 Bedrooms

Size: 1121 - 1155 sq ft
Starting from AED 1,631,000
Available Layouts
Layout Type Size (sqft) Floor Plan
Two Bedroom Pro Floor 3, 7, 11, 15 1,142.00 View
Two Bedroom Pro Floor 4, 8, 12, 16 1,154.00 View
Two Bedroom Pro Floor 2 - 6 -10 -14 1,155.00 View
Two Bedroom Pro Floor 5 -9 -13 1,121.00 View

Standard

down payment
20%
30 Days after Reservation date 10%
At The Time of the reservation Date 10%
during construction
40%
April 2025 5%
July 2025 5%
October 2025 5%
Jan 2026 5%
April 2026 5%
July 2026 5%
October 2026 5%
Jan 2027 5%
handover
40%
June 2027 ( Completion Date) 40%

Monthly Payment Calculator

5% 15% 25% 35% 50%
20% AED 0
Current UAE average: 3.5% - 6.5%
Monthly Payment
AED 0
Principal + Interest
Loan Amount
AED 0
Total Interest
AED 0
Total Payment
AED 0

📋 Note:

This is an estimate only. Actual rates and terms may vary based on your credit profile, bank policies, and current market conditions. Additional costs like insurance, registration fees, and bank charges are not included.

Tetris Tower, Jumeirah Village Circle Masterplan Tetris Tower by Object 1 CONTEMPORARY DEVELOPMENT offers a modern and sustainable living experience in Jumeirah Village Circle (JVC). Inspired by the iconic Tetris game, the tower features bold geometric designs, complemented by luxurious amenities. Located close to major highways, this development ensures easy access to Mall of the Emirates, Downtown Dubai, and key educational and healthcare facilities. The project offers state-of-the-art facilities, including a fitness center, infinity pool, and rooftop terrace, alongside smart home features and co-working spaces. With its innovative design and prime location, Tetris Tower sets the stage for luxury living in one of Dubai’s most connected neighborhoods. Key Features Location • 5 Minutes - Circle Mall • 19 Minutes - Mall of the Emirates • 19 Minutes - Business Bay • 21 Minutes - Burj Al Arab • 22 Minutes - Dubai Mall & Burj Khalifa Amenities • Adults Pool • Kid’s Pool • Pool Deck • Outdoor Yoga Area • Outdoor Fitness Area • Basketball Court • Kid’s Play Area

Location

Tetris Tower , Jumeirah Village Circle

What is the Payment Plan of Tetris Tower?

The payment plan for Tetris Tower is structured as follows: • 20% down payment at sales launch • 40% during construction in 8 installments • 40% on handover

Is Tetris Tower a good investment?

Tetris Tower in Jumeirah Village Circle offers a unique investment opportunity. Its prime location ensures seamless access to major highways and attractions, including Circle Mall and Downtown Dubai. The development’s bold geometric design and emphasis on sustainable living appeal to modern buyers. Tetris Tower is positioned in a growing community with easy access to schools, healthcare, and green spaces, making it an ideal choice for families and professionals. With smart home technology and a focus on luxury living, this project is a standout in Dubai’s real estate market, offering potential for high returns as the area continues to develop.

What is Tetris Tower's starting price?

The starting price of Tetris Tower is 737K AED.

Who is the owner of Tetris Tower?

Tetris Tower is owned and developed by Object 1 CONTEMPORARY DEVELOPMENT, a leading real estate developer known for innovative designs and sustainable living solutions in Dubai.

When is Tetris Tower's Delivery date?

Tetris Tower is set for delivery in June 2027. This timeline ensures that the project will be ready for occupancy, offering residents a cutting-edge living experience.

Where is Tetris Tower Located?

Tetris Tower is located in Dubai, within the Jumeirah Village Circle (JVC) district, offering easy access to key destinations.

Is this Tetris Tower Freehold or leasehold?

Tetris Tower is a freehold property, allowing full ownership rights to investors and residents without any leasehold restrictions.

What are the housing options of Tetris Tower?

Tetris Tower provides a variety of meticulously designed apartments to cater to different preferences: • Studio Apartments: Sizes range from 412 to 480 sqft, with prices starting at 737,000 AED. • 1-Bedroom Apartments: Sizes range from 701 to 994 sqft, with prices starting at 1,100,000 AED. • 2-Bedroom Apartments: Sizes range from 721 to 873 sqft, with prices starting at 1,200,000 AED.

Launch Price

AED 737,000

*Prices may vary

Key Information

Handover 2027-06-01
Property Types apartment
Status Under construction

Developer

Interested in this project?

Contact the developer for more details, pricing, and availability.