The Gate Phase 3 by Arada

The Gate 3, Aljada

About this Project

The Gate Phase 3 by Arada is a premier development nestled within Sharjah's visionary Aljada community, setting a new standard for urban living. This innovative project combines comfort, style, and sustainability, offering a lifestyle centered around modern design and world-class amenities. With its prime location and cutting-edge features, The Gate Phase 3 is expected to be one of the most coveted addresses in Sharjah. wPrime Location The Gate Phase 3 enjoys an exceptional location within the Aljada master development, offering residents a seamless blend of tranquility and urban convenience. Its strategic position ensures easy access to key destinations: • Sharjah City Centre – 10 minutes • Sharjah International Airport – 15 minutes • Dubai International Airport – 20 minutes • Downtown Dubai – 25 minutes Amenities The development offers a wide range of amenities to enhance the living experience, from wellness-focused spaces to recreational facilities. • Fitness and wellness centers, including a gym, swimming pools, and yoga spaces. • Extensive green spaces, children’s play areas, and community rooms for social gatherings. • Retail outlets and dining options, concierge services, secure underground parking, and 24/7 security. Unit Type The Gate Phase 3 features a variety of residential options, including: • One-Bedroom Apartments: Starting from 982,000 AED, ideal for professionals and couples. • Two-Bedroom Apartments: Perfect for small families, with spacious living areas and premium European kitchen appliances. • Three-Bedroom Apartments: Designed for larger families, with generous floor plans and multiple balconies. All apartments come with smart home technology, high-quality finishes, and built-in storage solutions. Delivery Date The development is expected to complete by June 2027, with construction progressing as scheduled. Regular updates will be provided to buyers to ensure timely delivery. Starting Price Prices start from 982,000 AED. The Gate Phase 3 offers a unique opportunity to invest in one of Sharjah’s most dynamic and promising communities. With its prime location, modern design, and extensive amenities, it is poised to become a landmark in the emirate’s real estate market.

Construction Status

Phase
Under construction

Project Details

  • Type: apartment
  • Completion Date: 2027-06-01

Amenities

Gymnasium
Health Club
Barbecue Area
Yoga room
Children's Play Area
CCTV Security
Landscaped Gardens
Indoor Swimming Pool

Project Timeline

  • Construction Started: 12/12/2024
  • Expected Completion : 01/06/2027

Available unit types from developer

APARTMENT

1 Bedroom

Size: 735 - 903 sq ft
Starting from AED 982,000
Available Layouts
Layout Type Size (sqft) Floor Plan
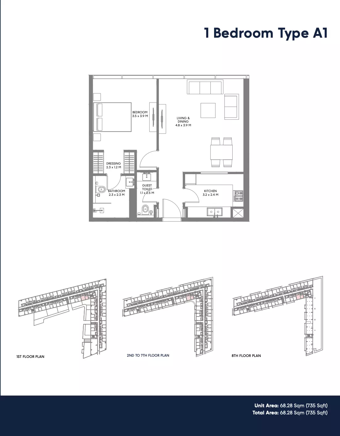
Type A1 735.00 View
Type B1 735.00 View
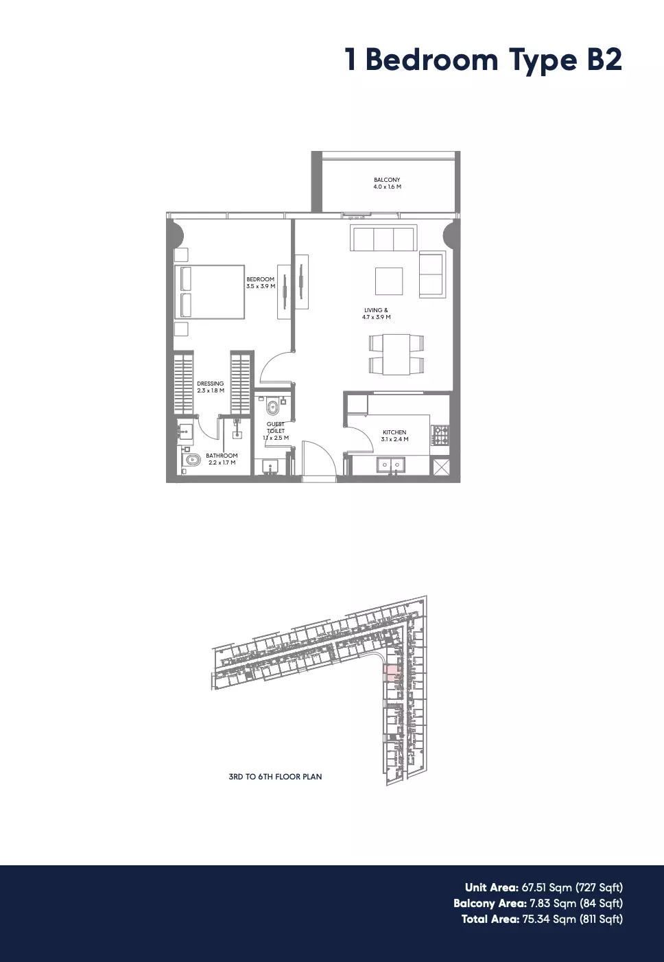
Type B2 811.00 View
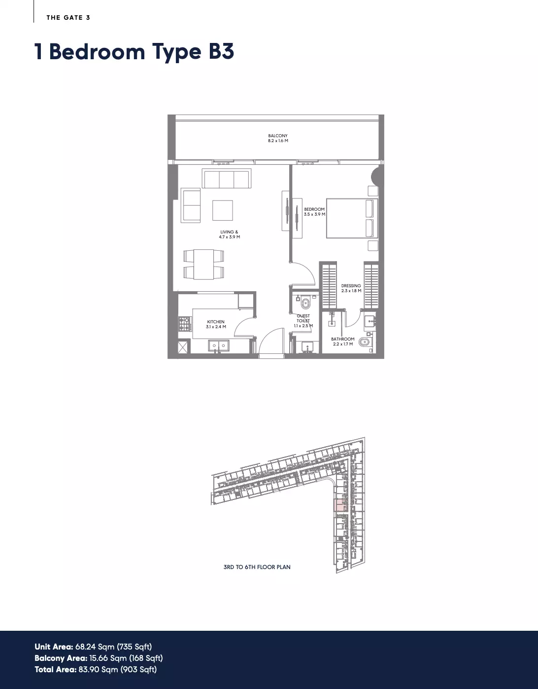
Type B3 903.00 View

APARTMENT

2 Bedrooms

Size: 1089 - 2502 sq ft
Starting from AED 1,400,000
Available Layouts
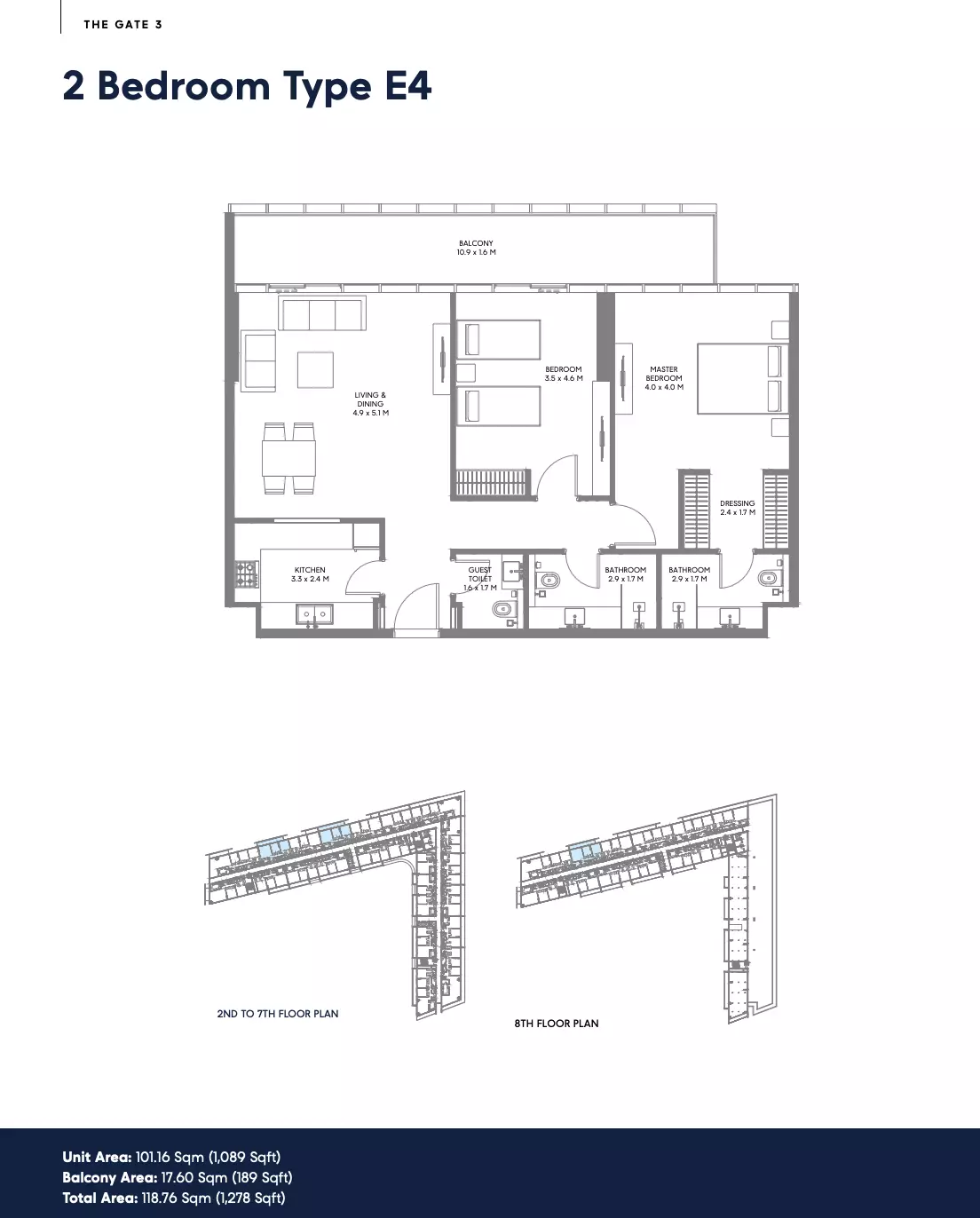
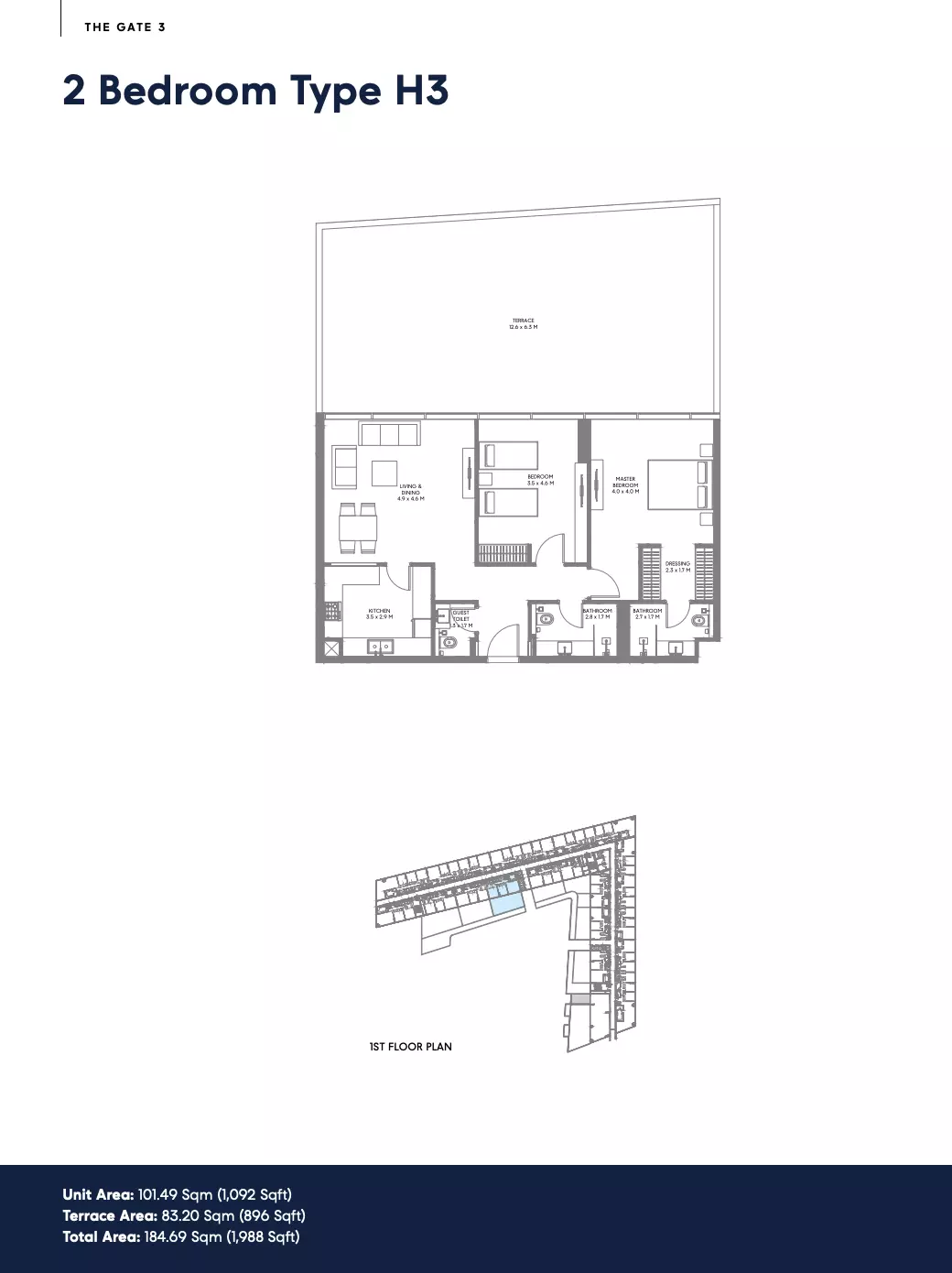
Layout Type Size (sqft) Floor Plan
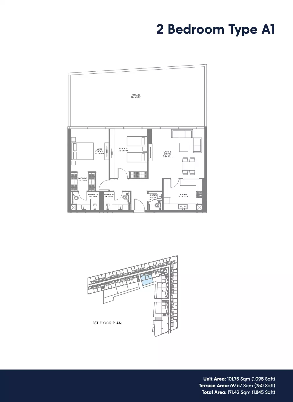
Type A1 1,845.00 View
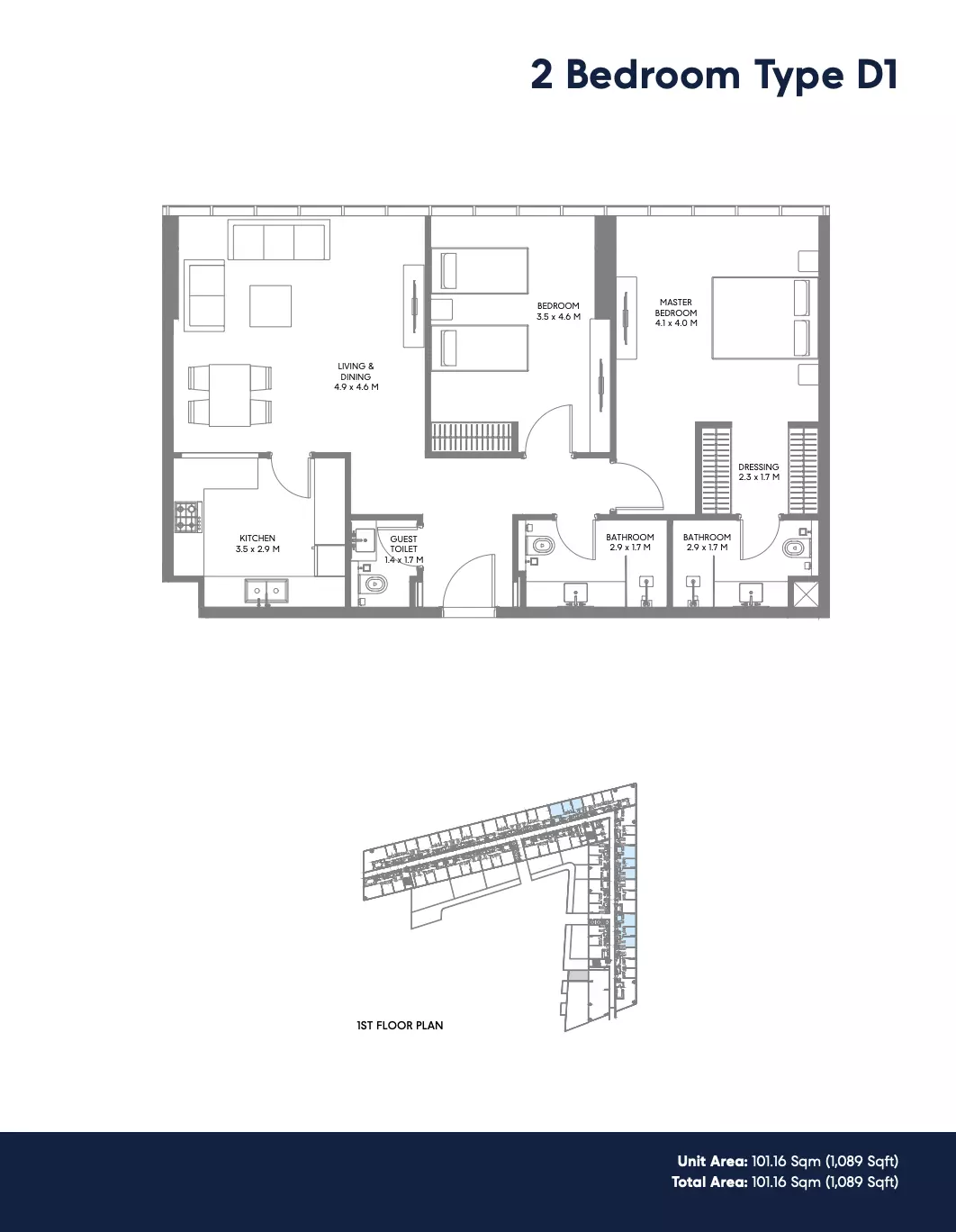
Type D1 1,089.00 View
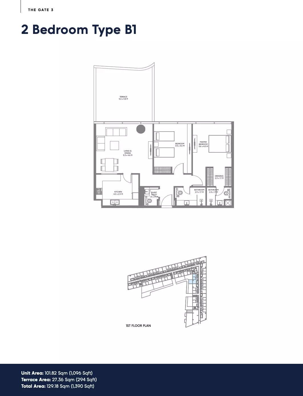
Type B1 1,390.00 View
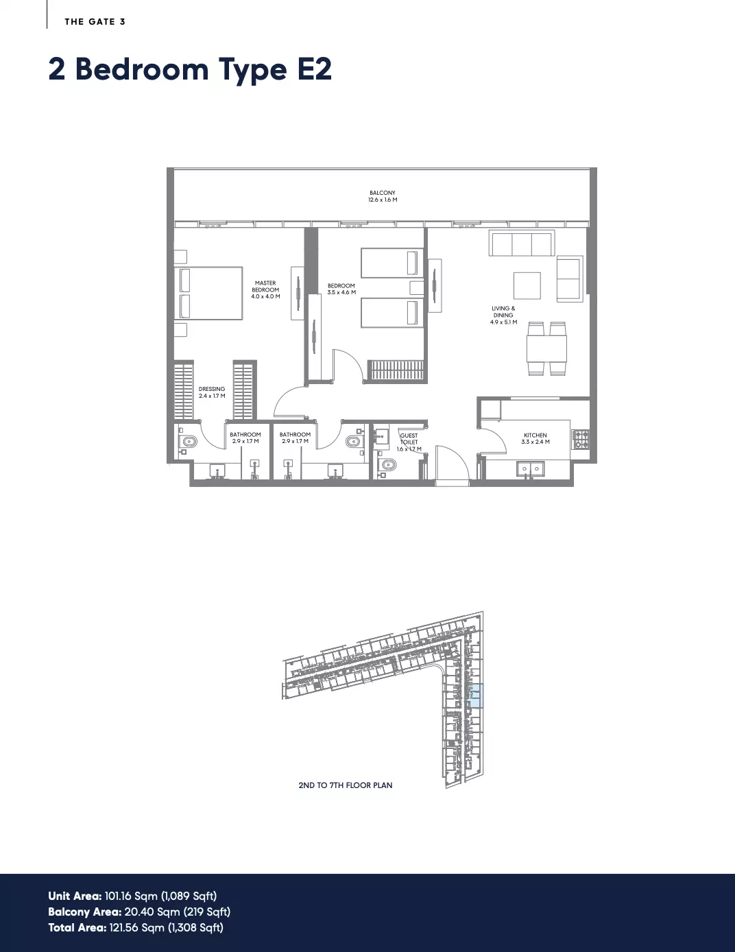
Type E4 1,278.00 View
Type G2 1,396.00 View
Type H3 1,988.00 View
Type A2 1,095.00 View
Type B3 1,171.00 View
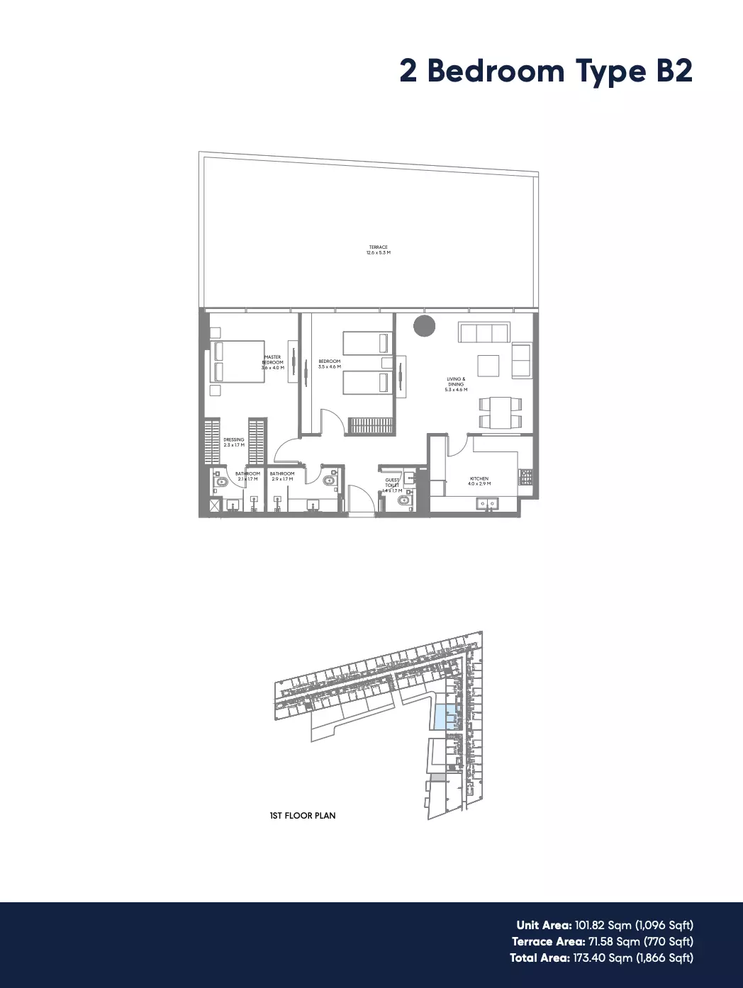
Type B2 1,866.00 View
Type B4 1,246.00 View
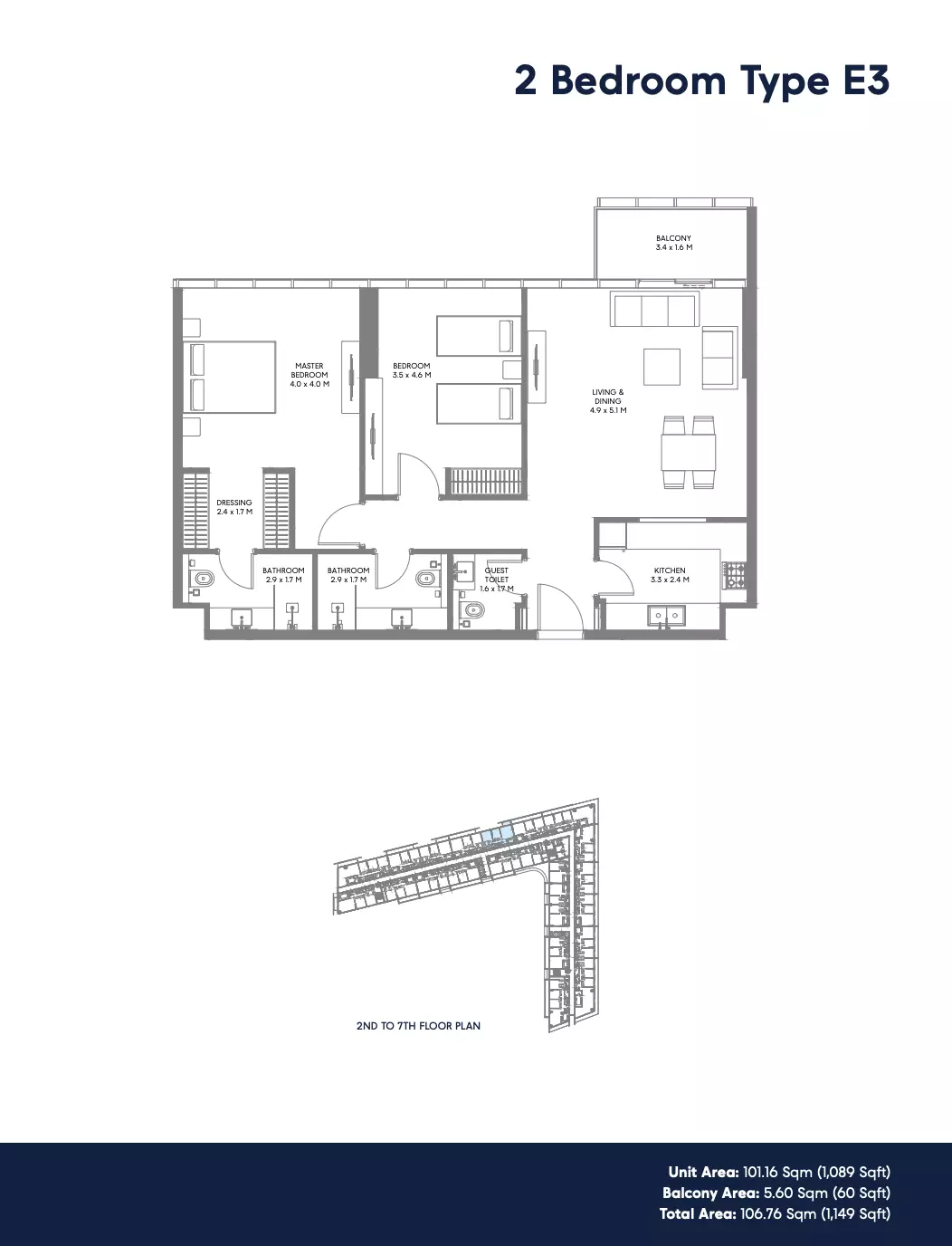
Type E3 1,149.00 View
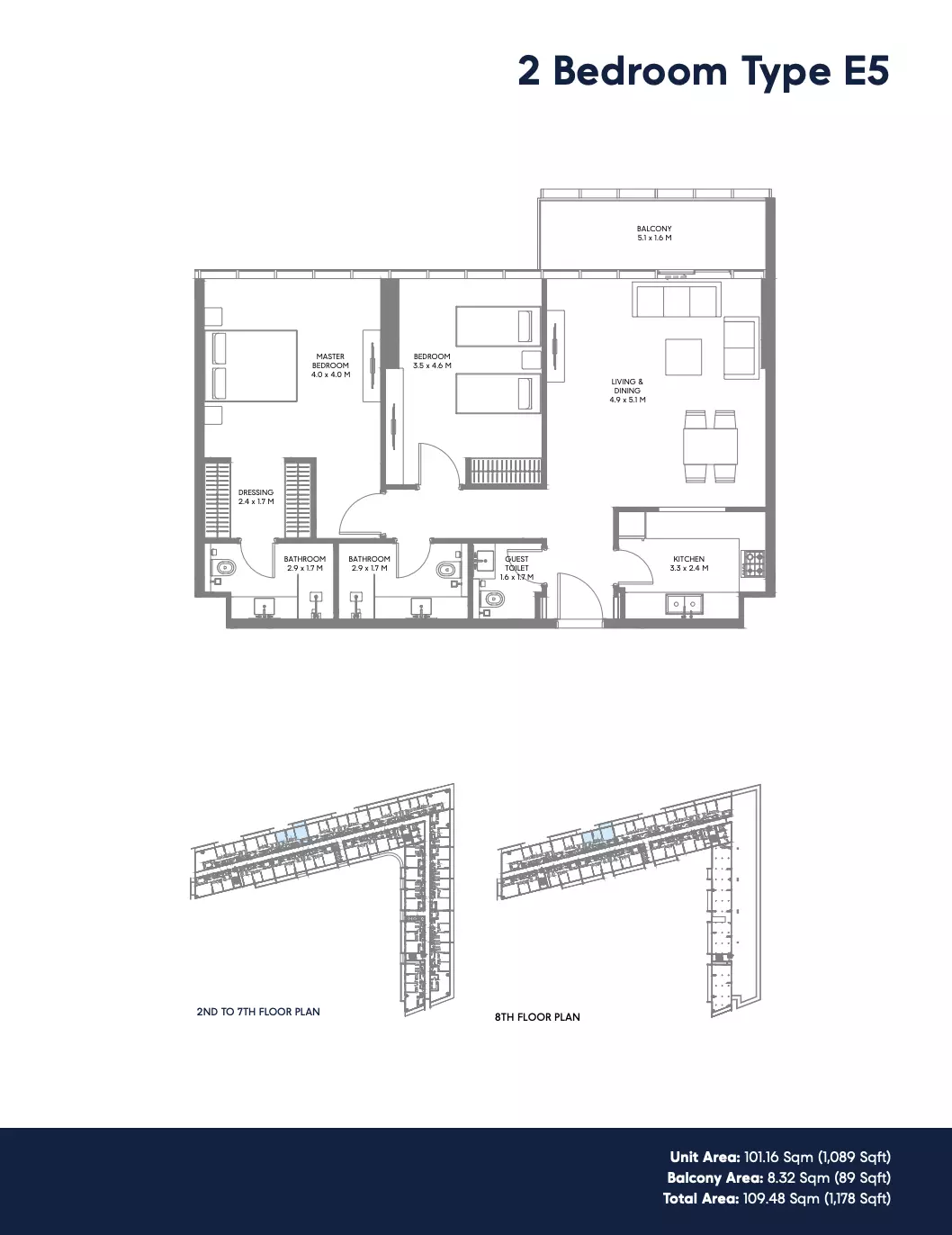
Type E5 1,178.00 View
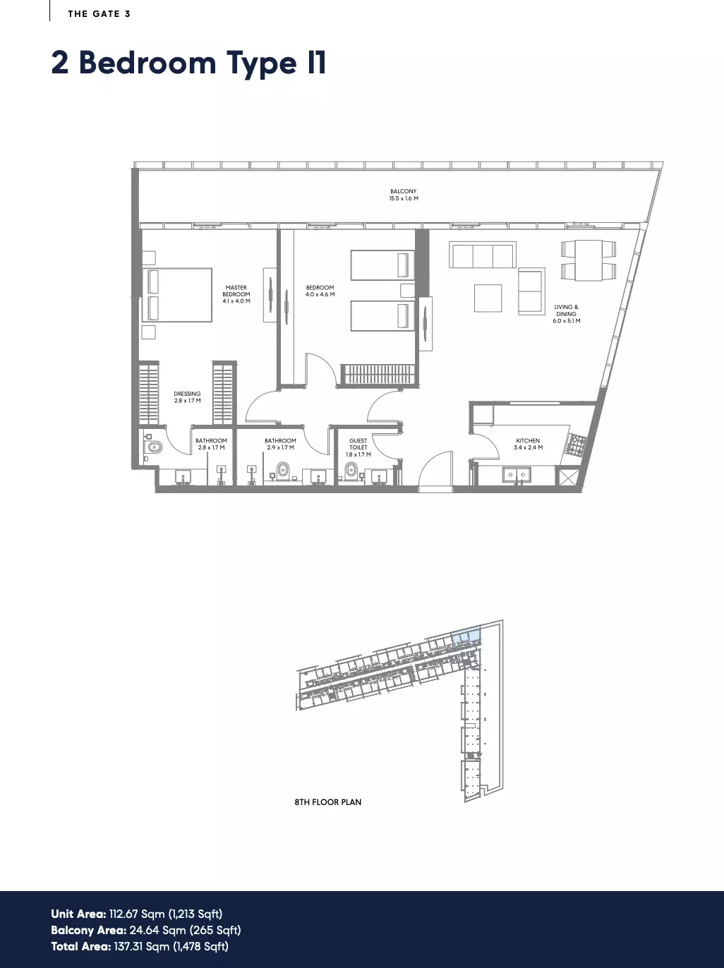
Type I1 1,478.00 View
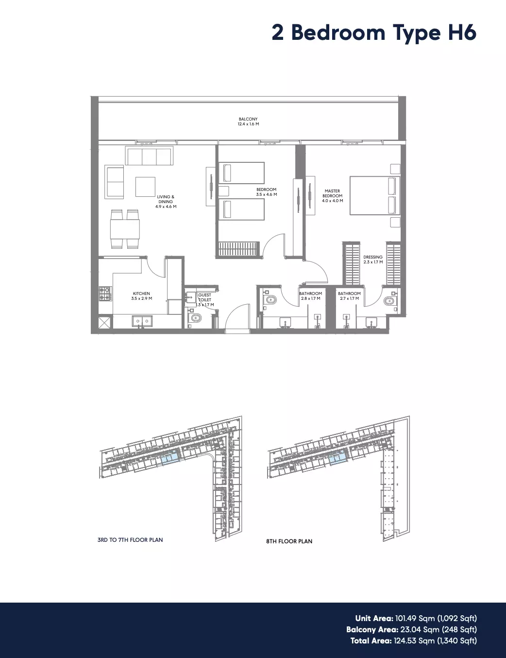
Type H6 1,340.00 View
Type A3 1,277.00 View
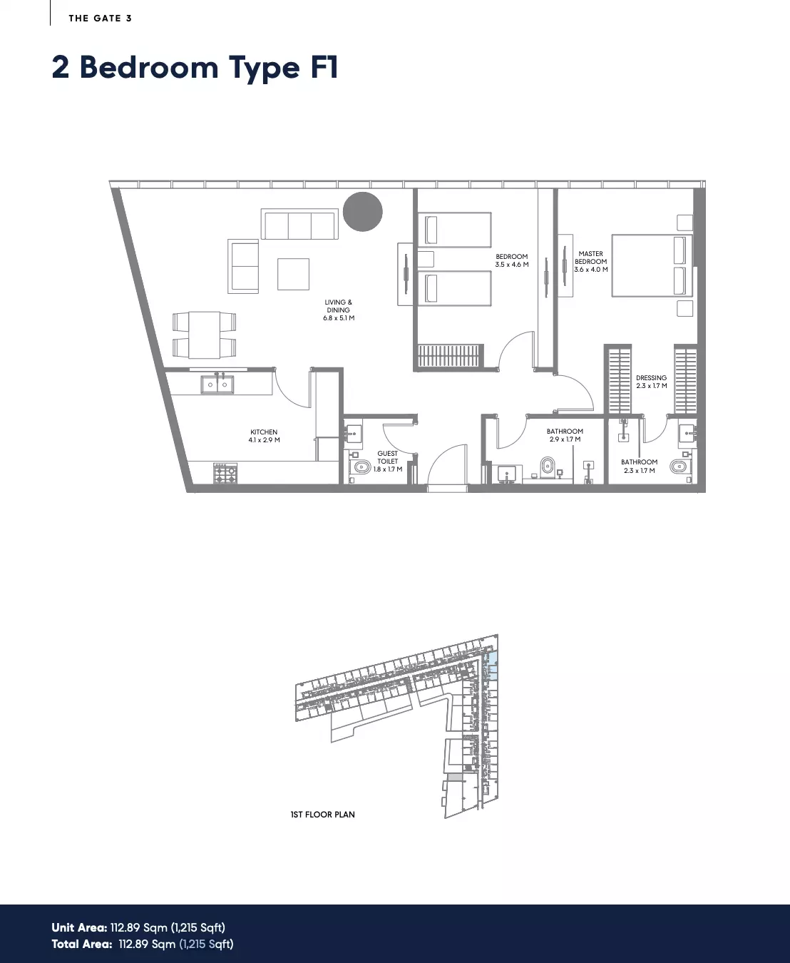
Type F1 1,215.00 View
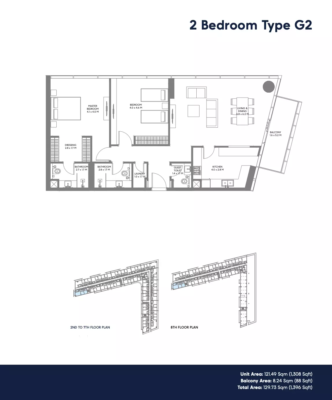
Type E2 1,308.00 View
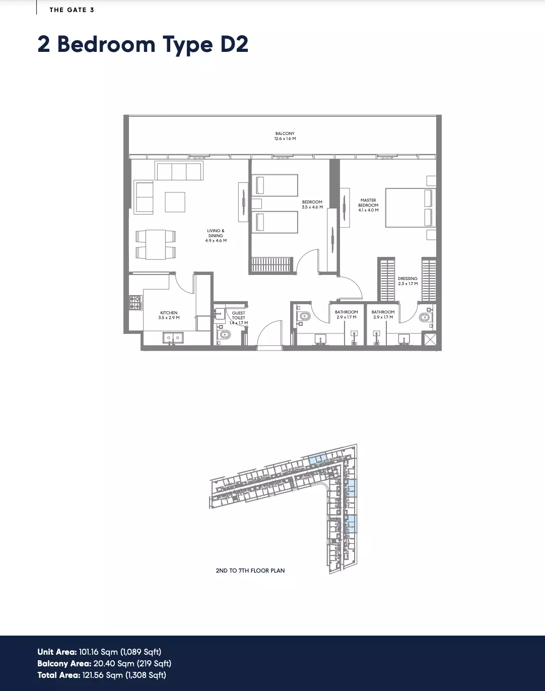
Type D2 1,308.00 View
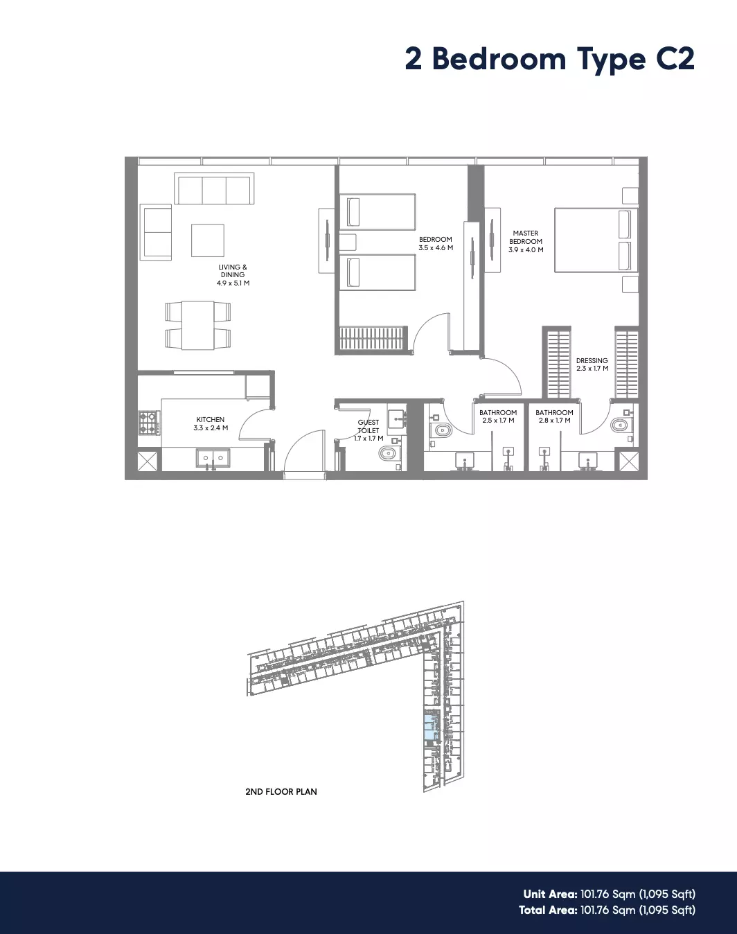
Type C2 1,095.00 View
Type F2 1,474.00 View
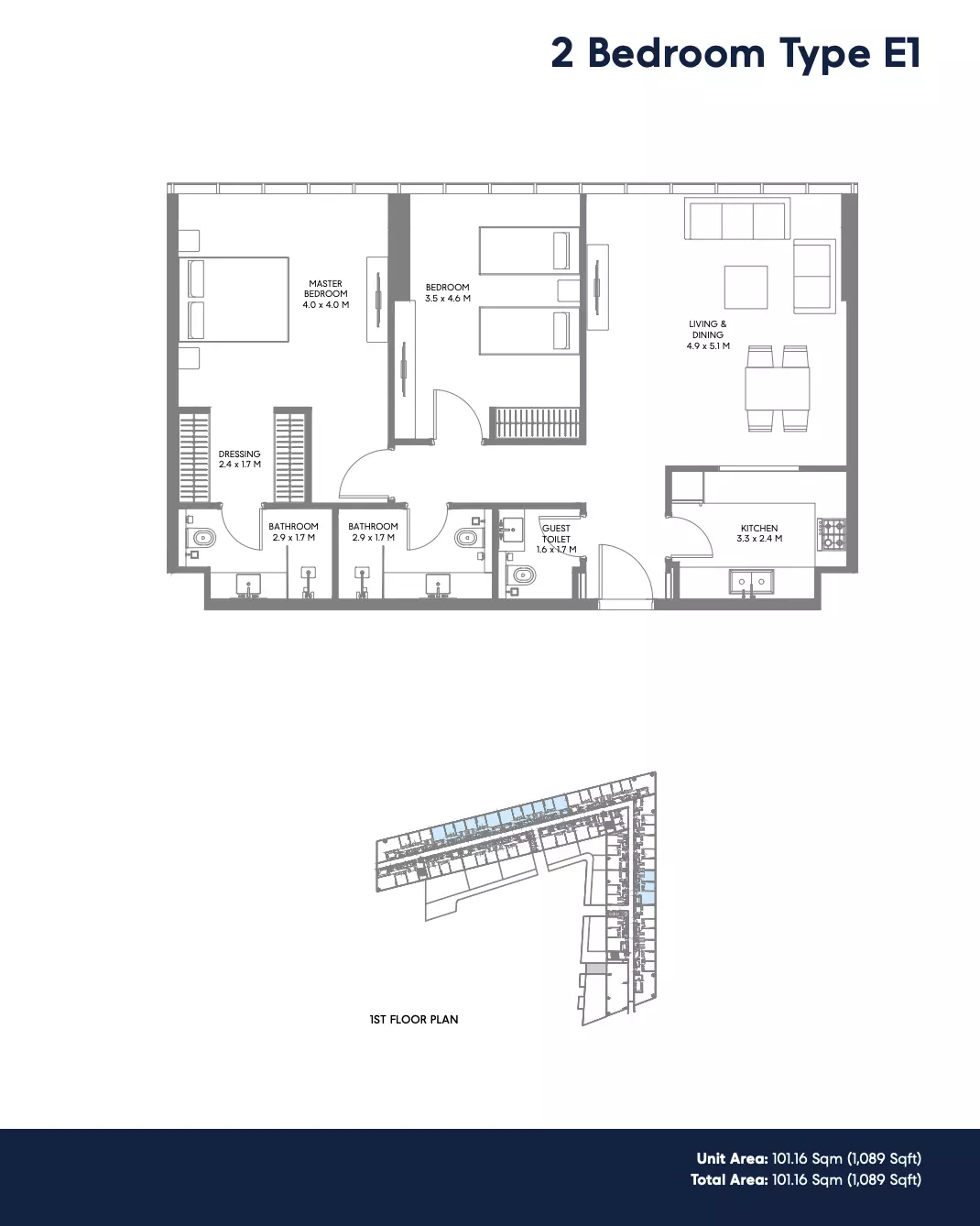
Type E1 1,089.00 View
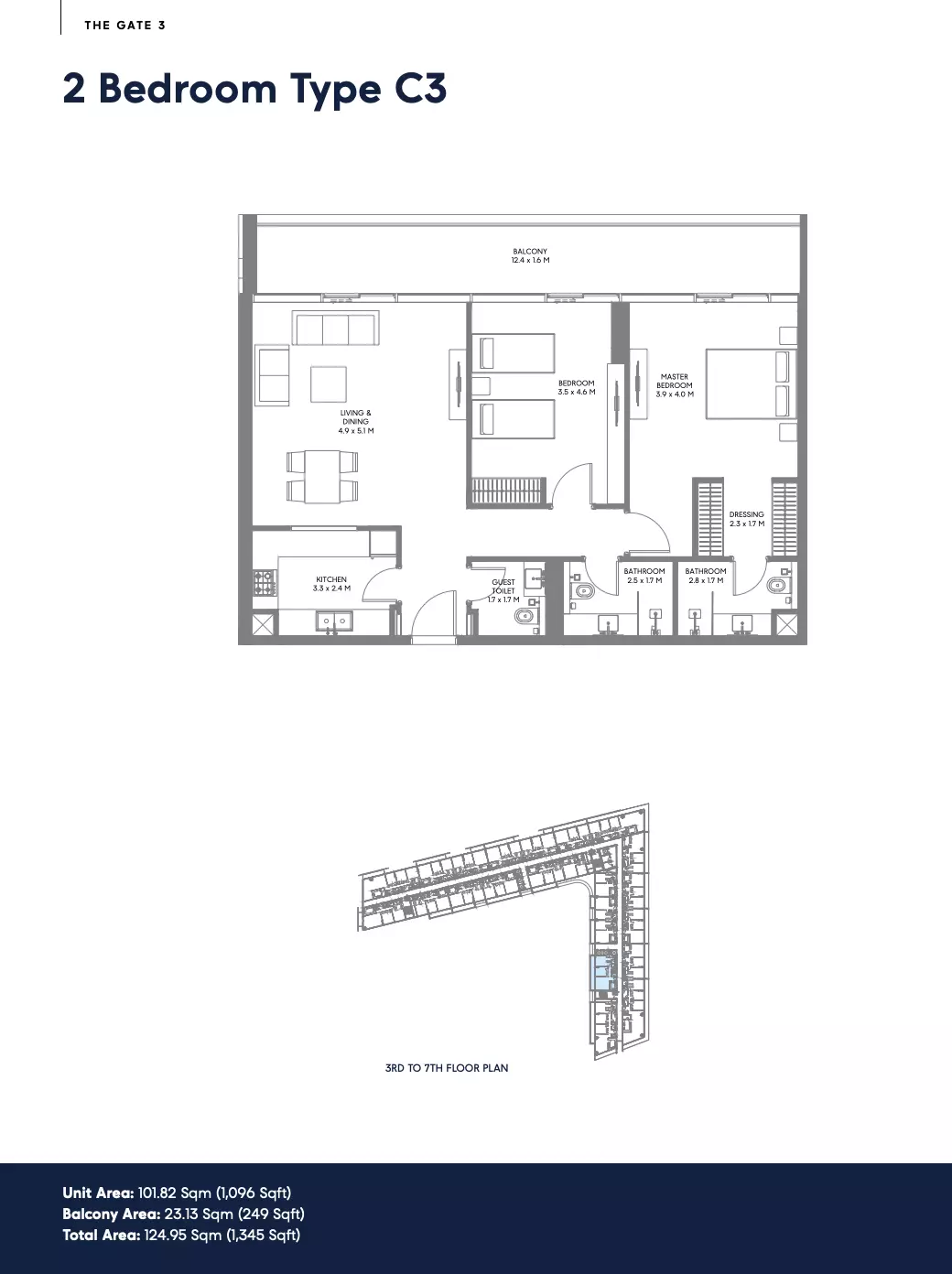
Type C3 1,345.00 View
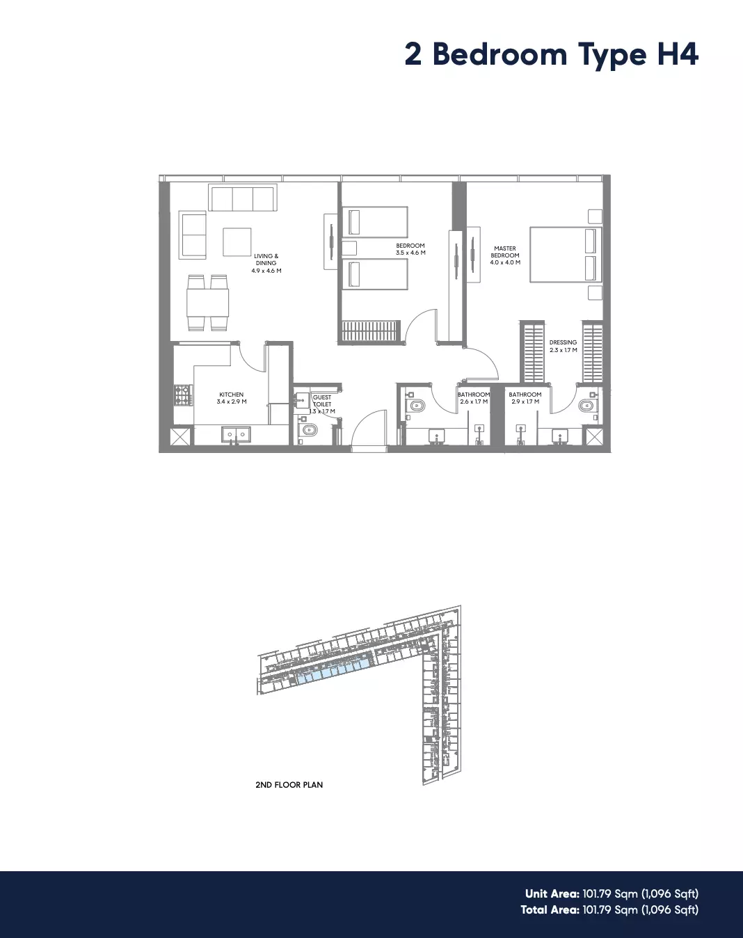
Type H4 1,096.00 View
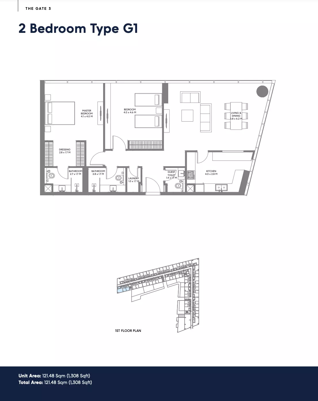
Type G1 1,308.00 View
Type H5 1,261.00 View
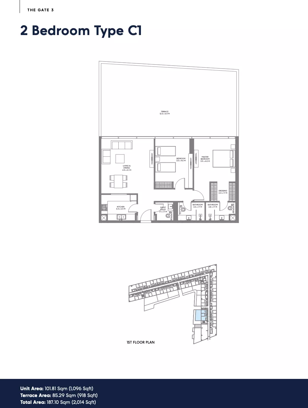
Type C1 2,014.00 View
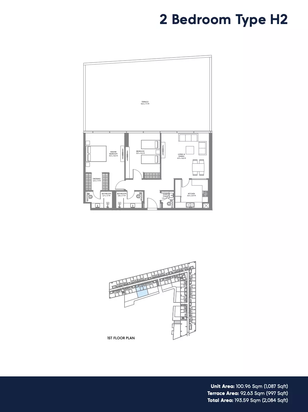
Type H2 2,084.00 View
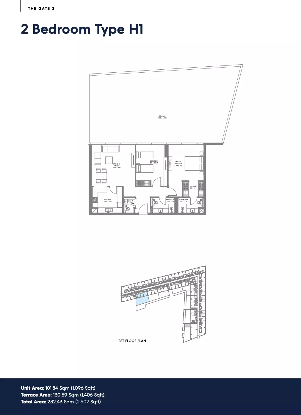
Type H1 2,502.00 View

APARTMENT

3 Bedrooms

Size: 1662 - 2479 sq ft
Starting from AED 2,100,000
Available Layouts
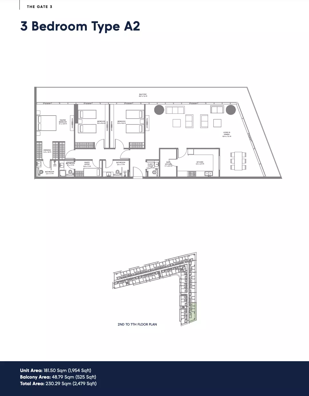
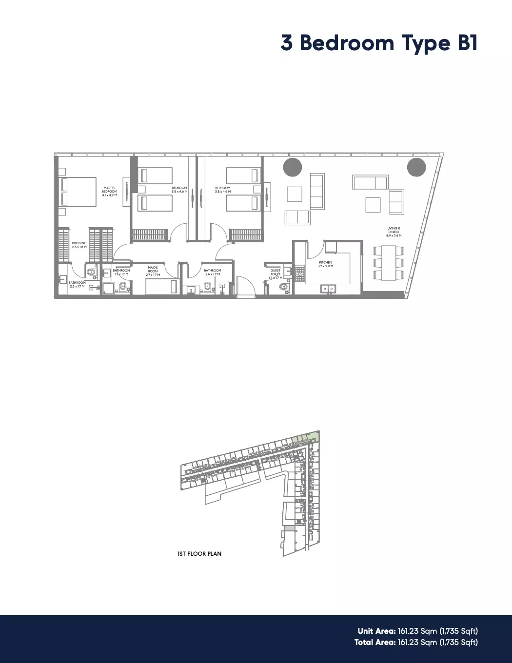
Layout Type Size (sqft) Floor Plan
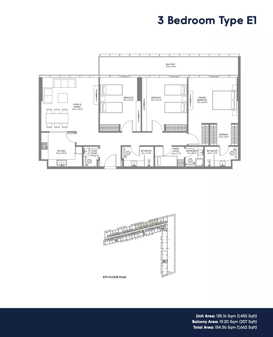
Type E1 1,662.00 View
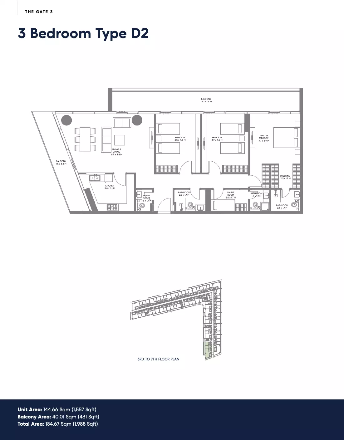
Type D2 1,988.00 View
Type B2 2,278.00 View
Type B1 1,735.00 View
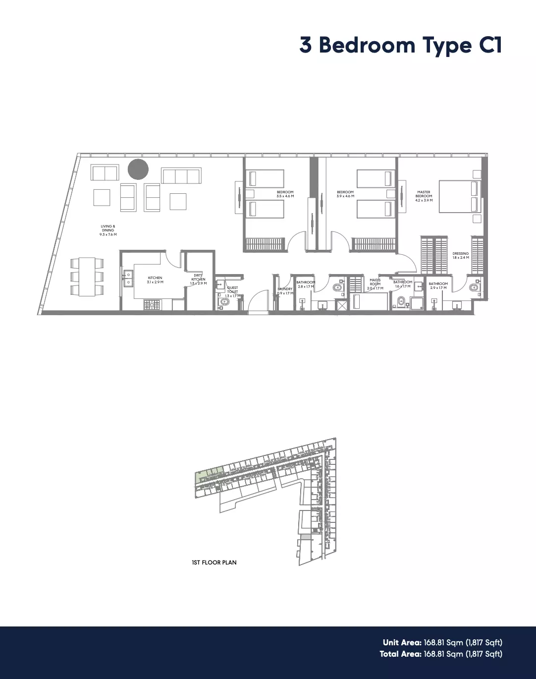
Type C1 1,817.00 View
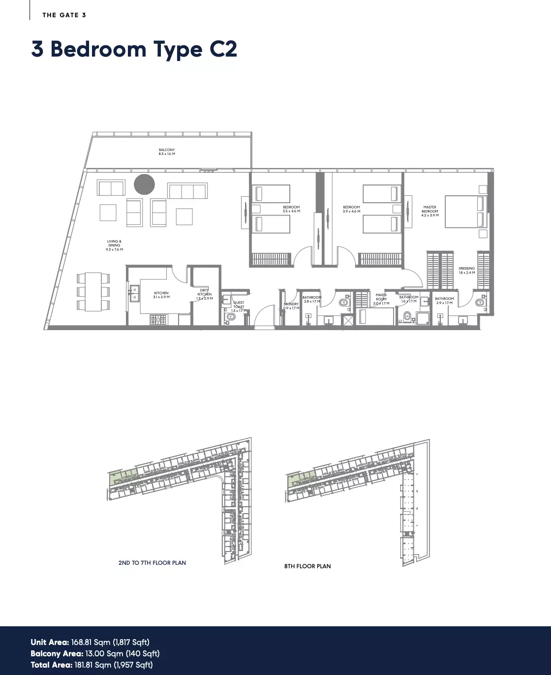
Type C2 1,957.00 View
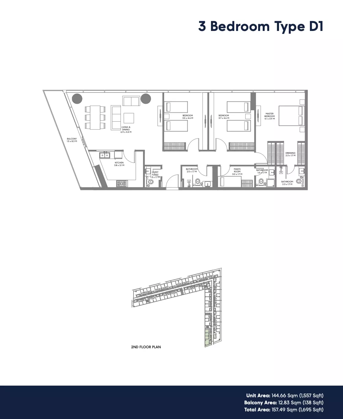
Type D1 1,695.00 View
Type A2 2,479.00 View
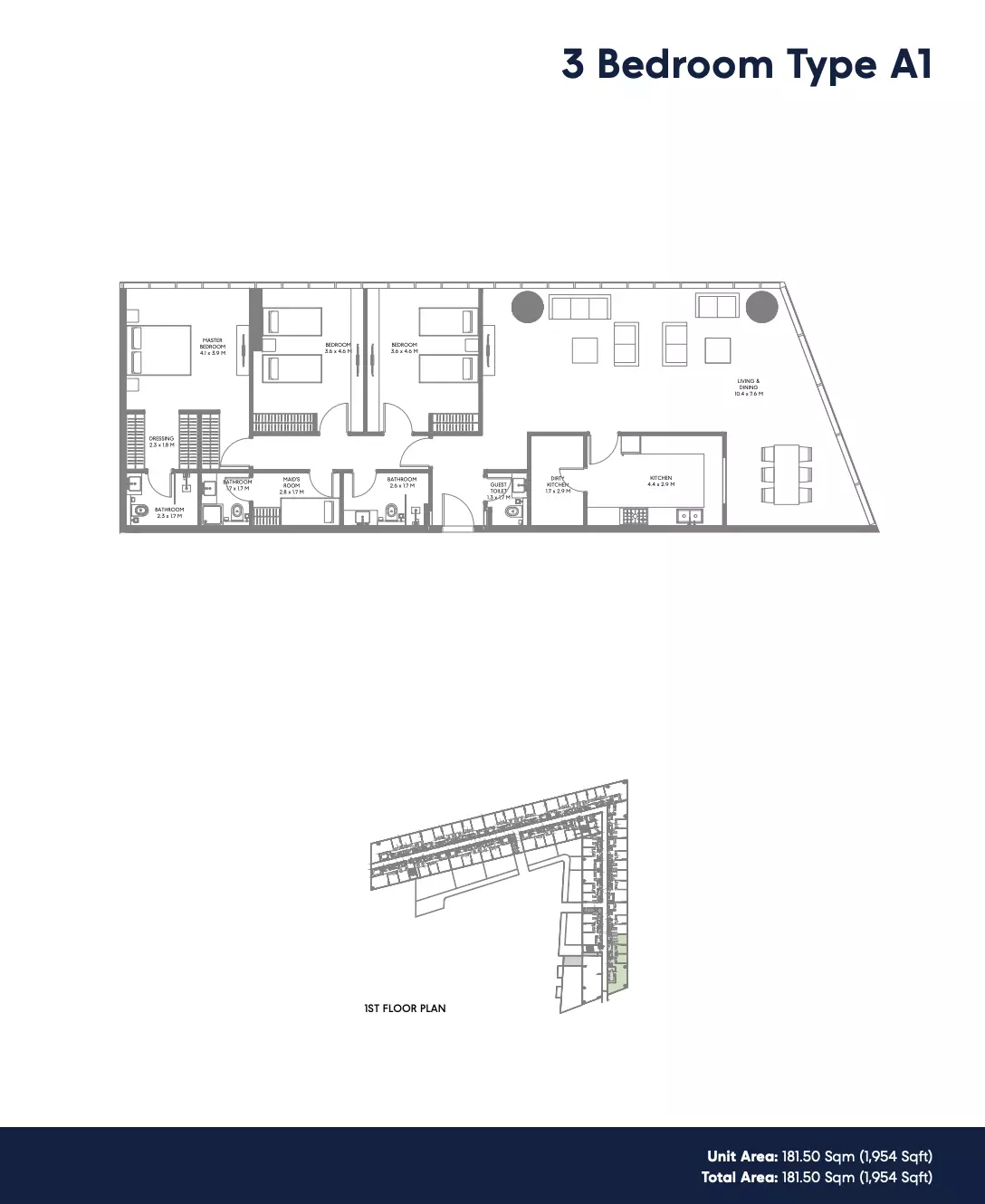
Type A1 1,954.00 View

Standard

down payment
5%
5%
during construction
30%
Within 2 months from booking 5%
Within 3 months from booking 5%
Within 4 months from booking 5%
Within 5 months from booking 5%
Within 6 months from booking 10%
handover
65%
65%

Monthly Payment Calculator

5% 15% 25% 35% 50%
20% AED 0
Current UAE average: 3.5% - 6.5%
Monthly Payment
AED 0
Principal + Interest
Loan Amount
AED 0
Total Interest
AED 0
Total Payment
AED 0

📋 Note:

This is an estimate only. Actual rates and terms may vary based on your credit profile, bank policies, and current market conditions. Additional costs like insurance, registration fees, and bank charges are not included.

The Gate Phase 3 by ARADA, Aljada MasterPlan The Gate Phase 3 by ARADA offers a luxurious and modern living experience within the thriving community of Aljada in Sharjah. As one of the most exciting developments in the region, The Gate is designed to provide residents with a combination of contemporary architecture, world-class amenities, and vibrant green spaces. The development benefits from its central location within Aljada, a master-planned urban community offering convenient access to key destinations in Sharjah and Dubai. With its proximity to cultural, recreational, and commercial hubs, The Gate is the perfect destination for families, professionals, and investors seeking a blend of tranquility and connectivity. The residential units are designed with modern layouts, high-quality finishes, and spacious interiors, making it an ideal home for those looking for elegance and comfort. Key Features Location • 10 Minutes to Sharjah International Airport • 15 Minutes to Dubai International Airport • 15 Minutes to Al Qasba • 20 Minutes to Sharjah Corniche • 25 Minutes to Dubai Marina Amenities • Swimming Pool • Fitness Centre • Retail and Dining Outlets • Landscaped Parks • Community Centre • Children’s Play Areas

Location

The Gate 3 , Aljada

What is the Payment Plan of The Gate Phase 3 by Arada?

The payment plan for The Gate Phase 3 by Arada is as follows: • 5%: Down payment at sales launch • 30%: During construction (5 installments) • 65%: On handover

Is The Gate Phase 3 by Arada a good investment?

The Gate Phase 3 by Arada offers a compelling investment opportunity due to its prime location within Sharjah's Aljada community. The development's strategic positioning provides easy access to key destinations like Sharjah City Centre, Dubai International Airport, and Downtown Dubai. Its integration of modern design with sustainability ensures long-term appeal, making it a desirable choice for both residents and investors. With world-class amenities, green spaces, and a focus on wellness, The Gate Phase 3 is set to become a highly sought-after address, promising solid returns in Sharjah's growing real estate market.

What is The Gate's Phase 3 by Arada starting price?

The starting price of The Gate Phase 3 by Arada is 982K AED.

Who is the owner of The Gate Phase 3 by Arada?

The Gate Phase 3 by Arada is developed and owned by ARADA, a leading real estate developer known for delivering high-quality, innovative communities in the UAE.

When is The Gate's Phase 3 by Arada Delivery date?

The Gate Phase 3 by Arada is scheduled for completion in June 2027. Buyers can expect timely delivery of their units, adhering to the project timeline.

Where is The Gate Phase 3 by Arada Located?

The Gate Phase 3 by Arada is located in Sharjah, Aljada, within the vibrant and well-connected Aljada community.

what are the housing options of The Gate Phase 3 by Arada?

The Gate Phase 3 by Arada offers a variety of apartments designed for different needs: • 1-Bedroom Apartments: Ranging from 735 to 903 sqft, with prices starting from 982K AED. • 2-Bedroom Apartments: Ranging from 1,089 to 2,502 sqft, with prices starting from 1.4M AED. • 3-Bedroom Apartments: Ranging from 1,662 to 2,479 sqft, with prices starting from 2.1M AED. Each unit features modern designs, spacious living areas, and high-quality finishes, providing comfort and luxury for residents.

Is this The Gate Phase 3 by Arada Freehold or leasehold?

The Gate Phase 3 by Arada is a freehold property, allowing full ownership for both local and international buyers.

Launch Price

AED 982,000

*Prices may vary

Key Information

Handover 2027-06-01
Property Types apartment
Status Under construction

Developer

Interested in this project?

Contact the developer for more details, pricing, and availability.