عزیزی نیلا

Azizi Neila, Al Furjan

درباره این پروژه

واقع در منطقه پر جنب و جوش الفرجان دبی. این مجموعه نمایانگر زندگی شهری مدرن است، با آپارتمان‌های استودیویی و یک خوابه با کیفیت بالا. نمای آرامش‌بخش آن، سبکی غنی از آسایش، راحتی و محیطی محله‌ای پرجنب‌وجوش را فراهم می‌کند که همه را با محیط آرام خود مجذوب می‌کند. موقعیت مکانی عالی عزیزی نیلا موقعیت مکانی استثنایی عزیزی نیلا در الفرجان دبی، دسترسی آسان را برای ساکنان آن فراهم می‌کند. الفرجان در نزدیکی خطوط مترو قرار گرفته است و دسترسی به مکان‌های کلیدی را آسان می‌کند. این موقعیت مکانی ایده‌آل نزدیک به مناطق مهم شرکتی مانند مدیا سیتی، اینترنت سیتی و اکسپو دبی است. مرکز خرید ابن بطوطه و مرکز خرید مارینا دبی نیز به راحتی قابل دسترسی هستند و طیف متنوعی از خرده‌فروشی‌ها، رستوران‌ها و فعالیت‌های تفریحی را ارائه می‌دهند. قیمت شروع و تاریخ تحویل • قیمت شروع: ۹۲۵۰۰۰ درهم. • تاریخ تحویل: سه ماهه دوم ۲۰۲۶. امکانات رفاهی • آپارتمان‌های مدرن: طیف گسترده‌ای از آپارتمان‌های استودیویی و یک خوابه با پرداخت‌های مدرن و چیدمان‌های جادار برای تناسب با سبک‌های مختلف زندگی را ارائه می‌دهد. • موقعیت مکانی استراتژیک: واقع در خط مترو در الفرجان با دسترسی آسان به مراکز شرکتی کلیدی و نقاط داغ خرید از جمله مدیا سیتی و مرکز خرید ابن بطوطه. • معماری و دکوراسیون داخلی شیک: طراحی معاصر با فضاهای نشیمن کاربردی، هم راحتی و هم جذابیت زیبایی‌شناختی را ارائه می‌دهد. • اتصال عالی: اتصال عالی از طریق بزرگراه‌های اصلی، رفت و آمد روان و دسترسی آسان به جاذبه‌های کلیدی دبی را امکان‌پذیر می‌سازد. • ترویج فضایی پر جنب و جوش جامعه: با پیاده‌روهای کاشته شده، امکانات تفریحی، استخر شنا، زمین بازی کودکان و مکان‌های نشستن در فضای باز. • ایمنی و امنیت: برای حفظ ایمنی ساکنان، امنیت ۲۴ ساعته و سیستم‌های نظارتی پیشرفته در سراسر مجموعه نصب شده است. انواع واحد عزیزی نیلا حداقل واحدهای یک خوابه را ارائه می‌دهد. این پروژه در حال حاضر در دست ساخت است و تاریخ تحویل هنوز اعلام نشده است. خانه برای پاسخگویی به طیف گسترده‌ای از نیازهای سبک زندگی با پرداخت‌های مدرن و چیدمان‌های جادار طراحی شده است. عزیزی نیلا در الفرجان توسط عزیزی دولوپمنتز، نمایانگر زندگی شهری مدرن است و آپارتمان‌های استودیویی و یک خوابه نفیس را در محیطی پویا و در عین حال آرام ارائه می‌دهد. موقعیت مکانی استراتژیک، ویژگی‌های فردی و طیف گسترده‌ای از امکانات رفاهی، آن را به انتخابی فوق‌العاده برای کسانی تبدیل کرده است که به دنبال سبک زندگی راحت و آسان در دبی هستند.

وضعیت ساخت

مرحله
در حال ساخت
پیشرفت
0%

جزئیات پروژه

  • نوع: apartment
  • تاریخ عرضه: 2024-07-23
  • تاریخ تکمیل: 2027-07-30

امکانات

Gymnasium
Restaurants
Barbecue Area
CCTV Security
Indoor Swimming Pool
Children's Play Area
Landscaped Gardens

جدول زمانی پروژه

  • Booking Started : 23/07/2024
  • Construction Started: 24/07/2024
  • Expected Completion: 30/07/2027

انواع واحد موجود از سازنده

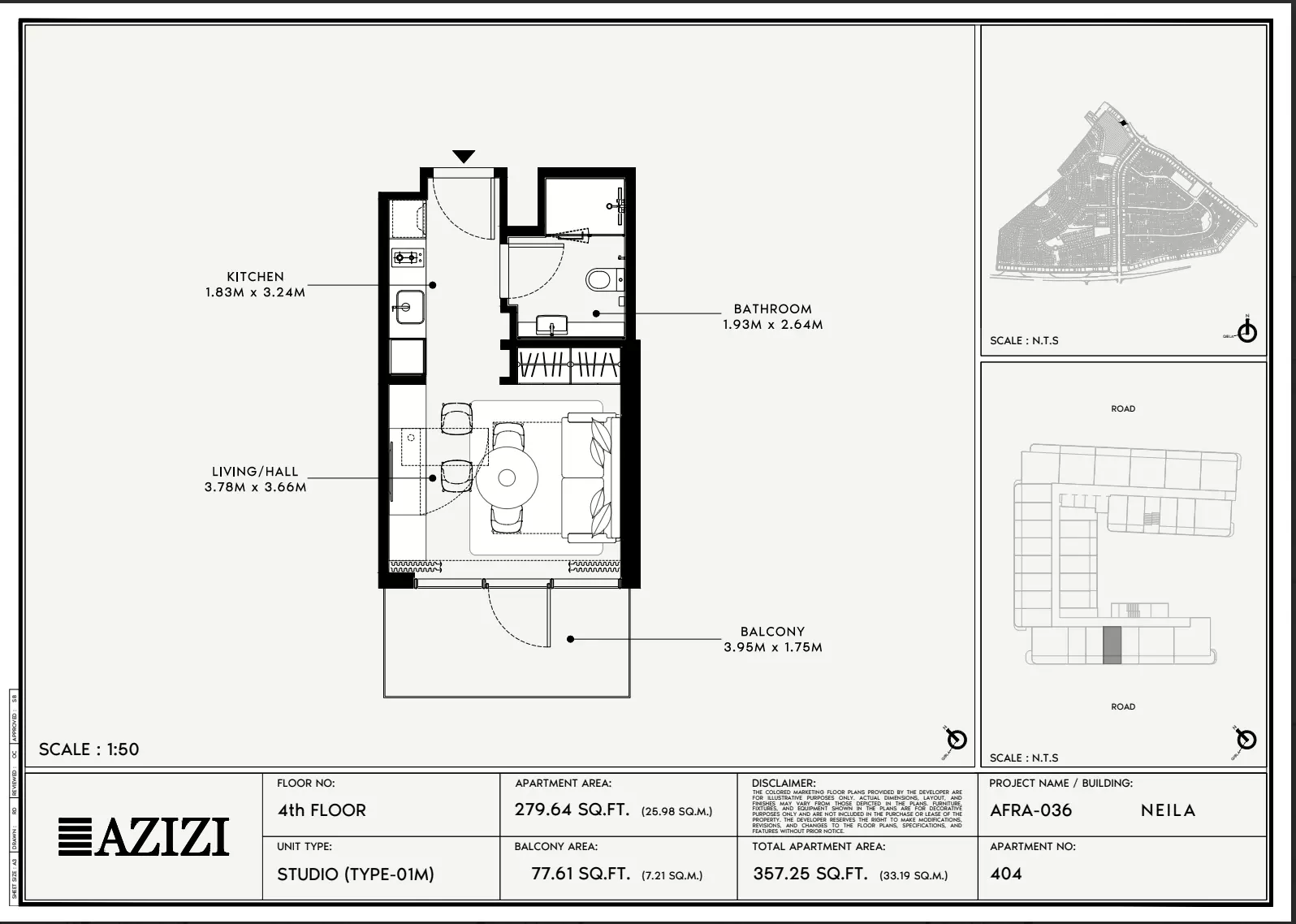
APARTMENT

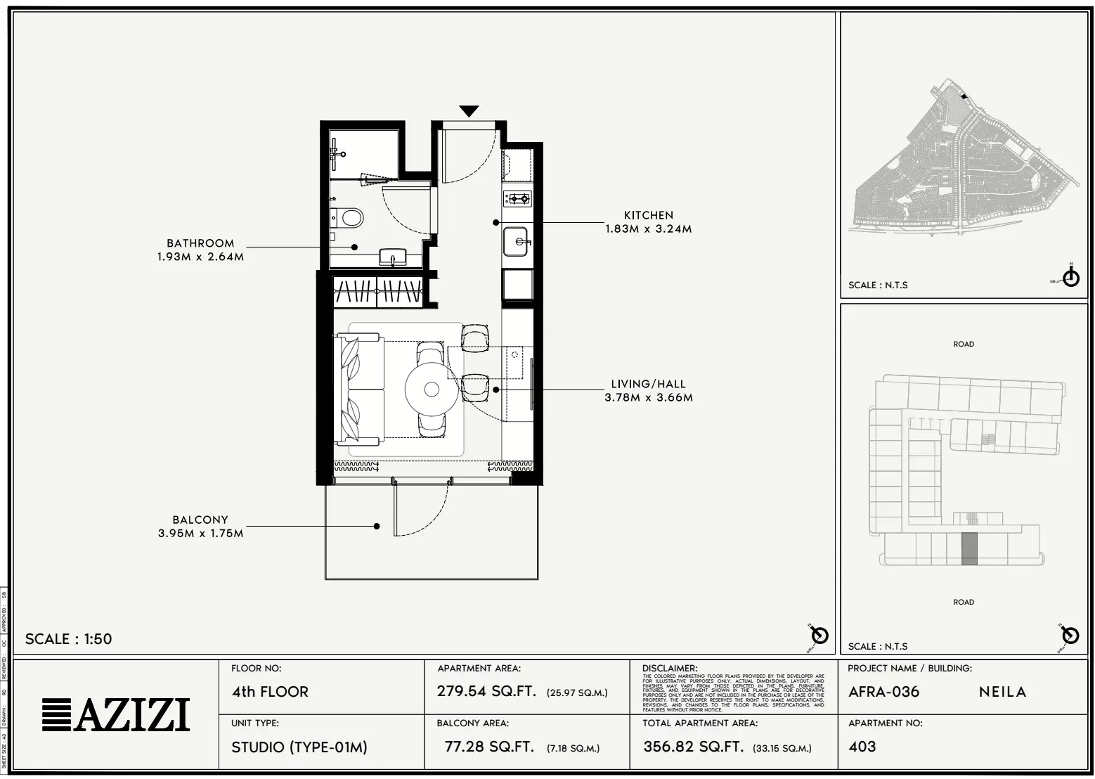
Studio

Size: 345 - 466 sq ft
شروع از ‎درهم ۹۲۵٬۰۰۰
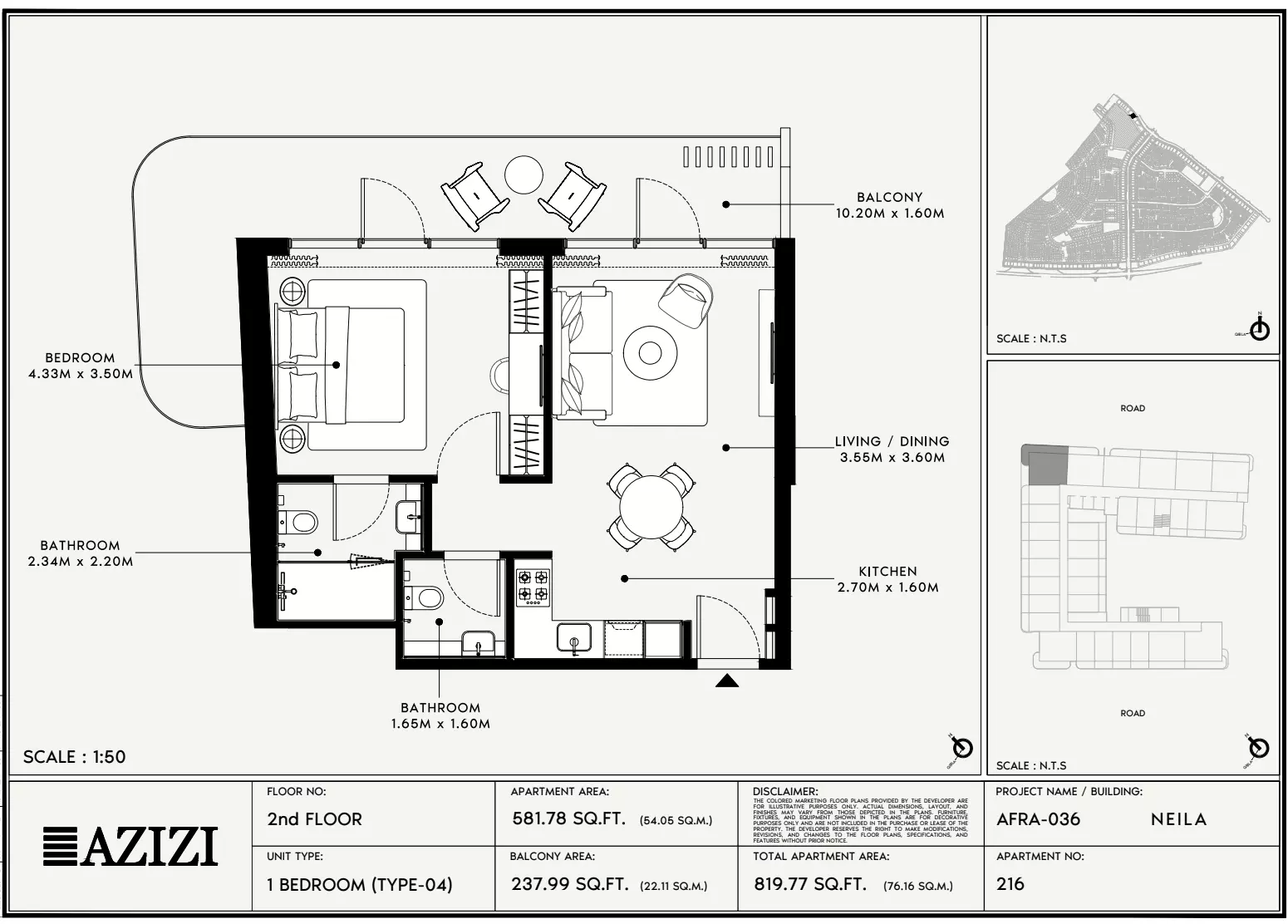
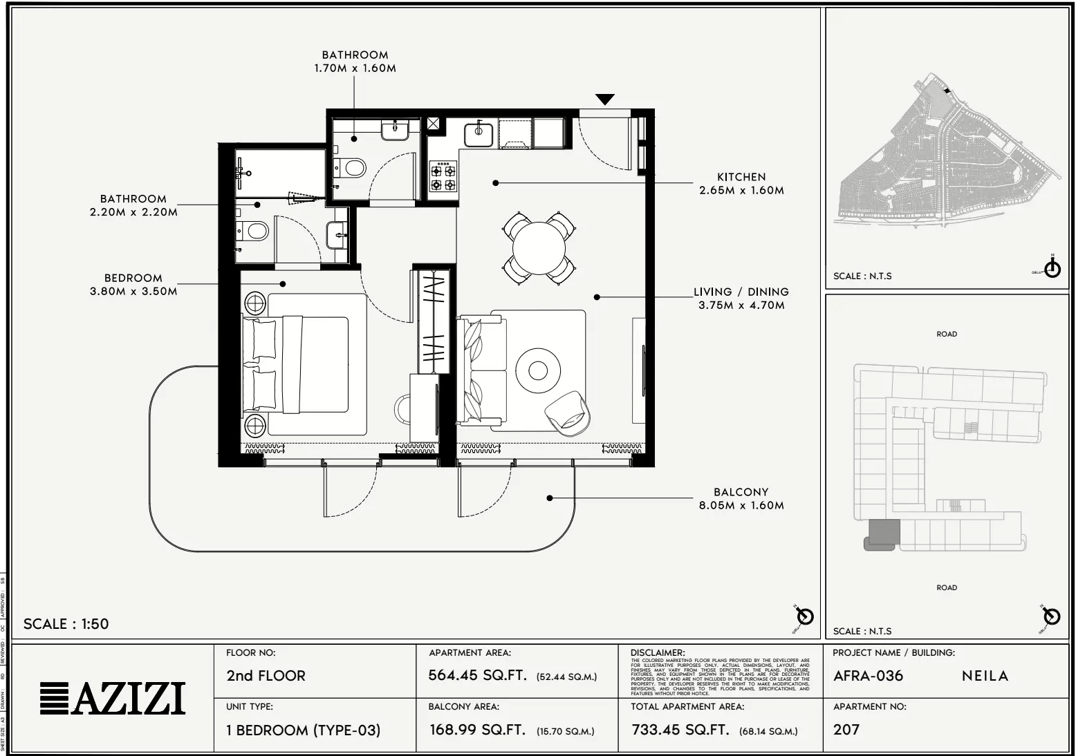
Available Layouts
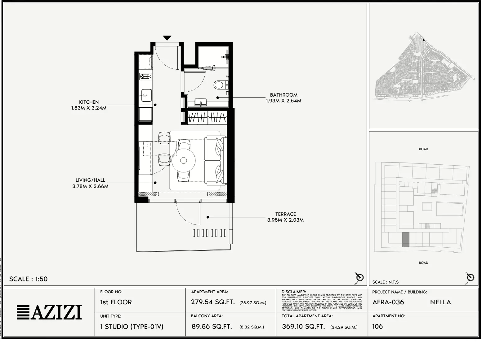
Layout Type Size (sqft) Floor Plan
Type 1 358.00 View
Type 2 361.00 View
Type 4 369.00 View
Type 5 359.00 View
Type 6 359.00 View
Type 12 353.00 View
Type 8 466.00 View
Type 9 350.00 View
Type 11 345.00 View
Type 10 348.00 View
Type 14 359.00 View
Type 16 348.00 View
Type 15 346.00 View
Type 7 351.00 View
Type 13 357.00 View
Type 3 365.00 View
Type 17 358.00 View
Type 22 357.00 View
Type 18 349.00 View
Type 27 356.00 View
Type 23 356.00 View
Type 16 349.00 View
Type 21 357.00 View
Type 19 356.00 View
Type 20 356.00 View
Type 26 351.00 View

APARTMENT

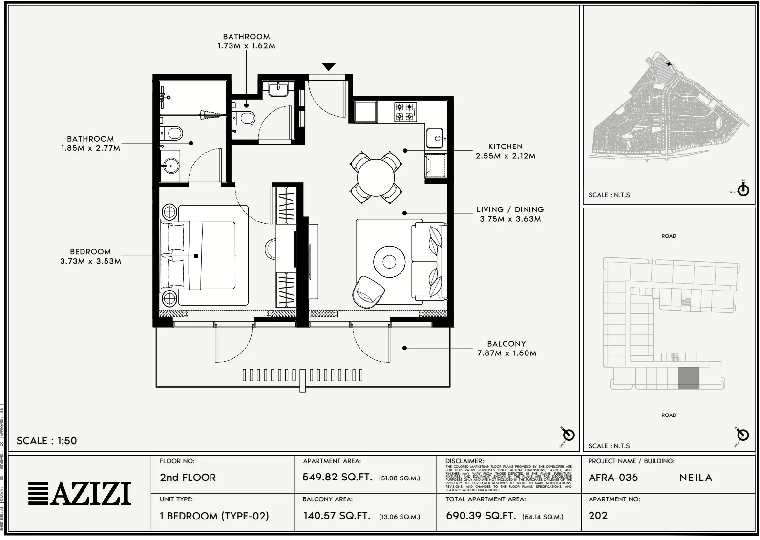
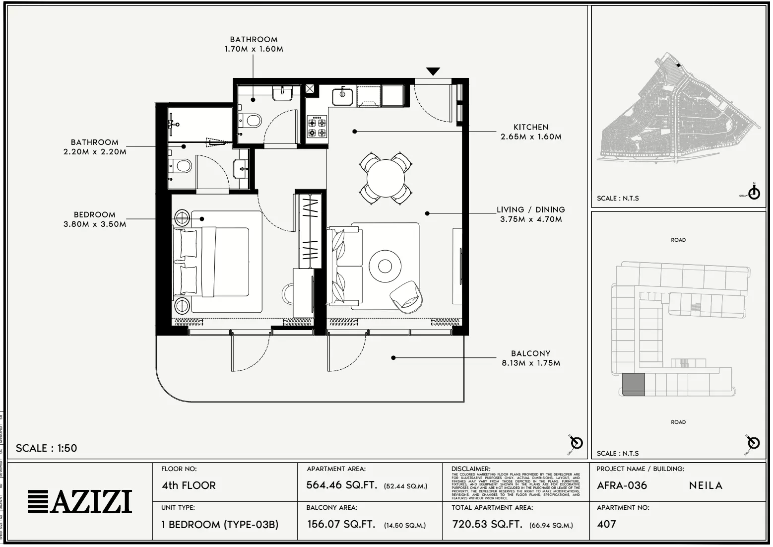
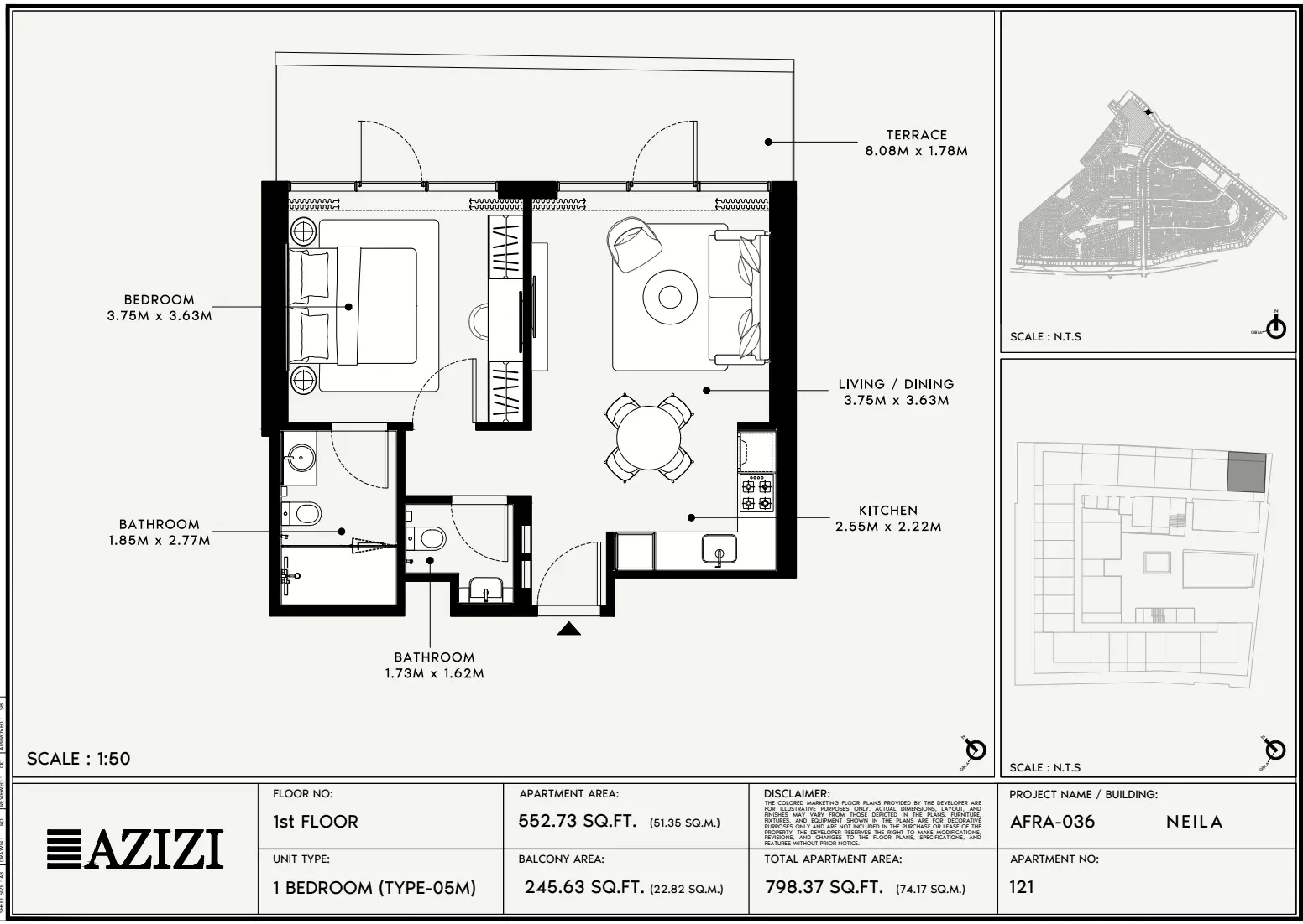
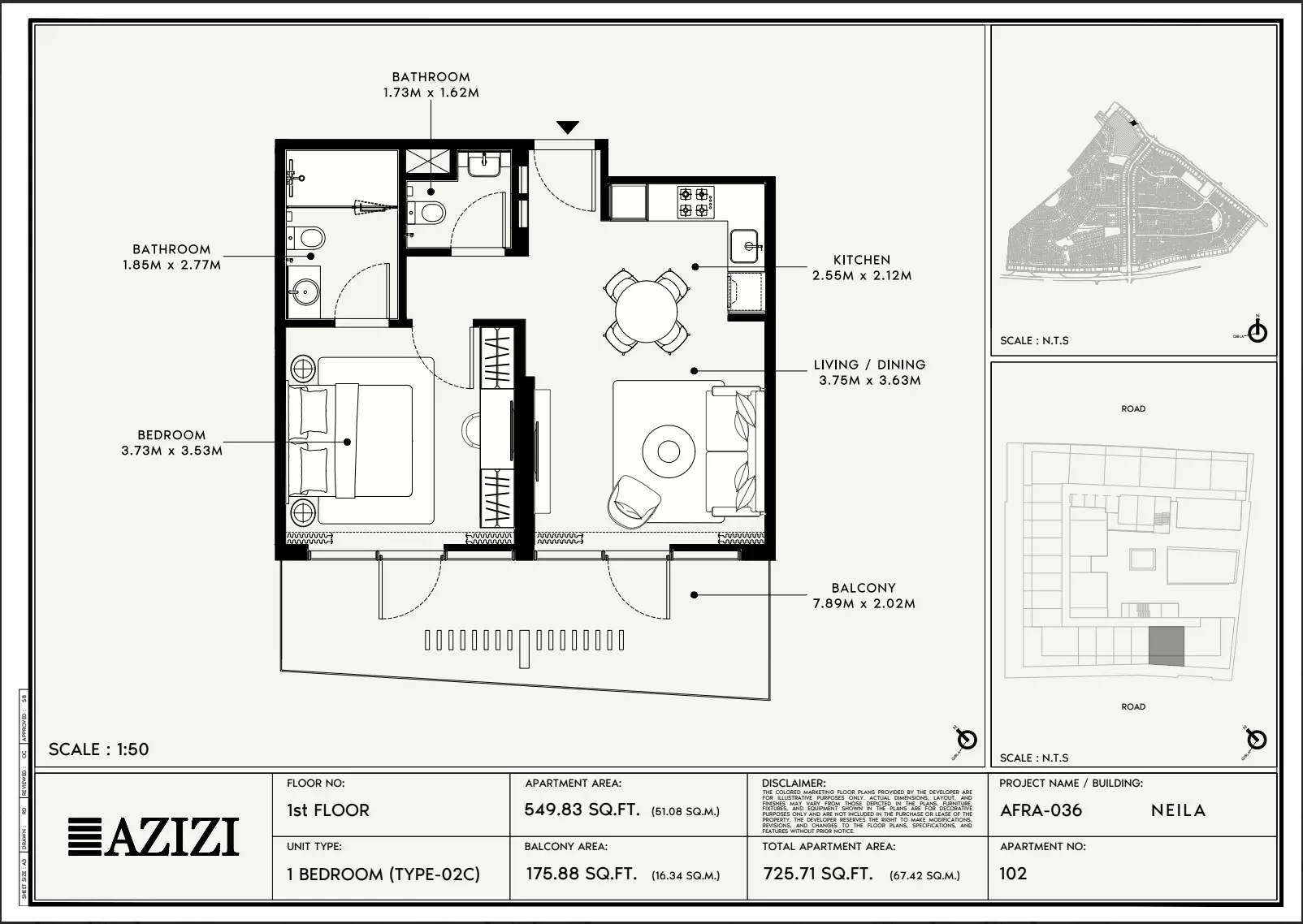
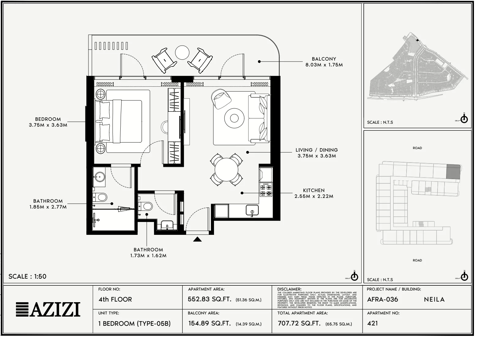
1 Bedroom

Size: 671 - 1198 sq ft
شروع از ‎درهم ۹۲۵٬۰۰۰
Available Layouts
Layout Type Size (sqft) Floor Plan
Type 2 725.00 View
Type 2 1,175.00 View
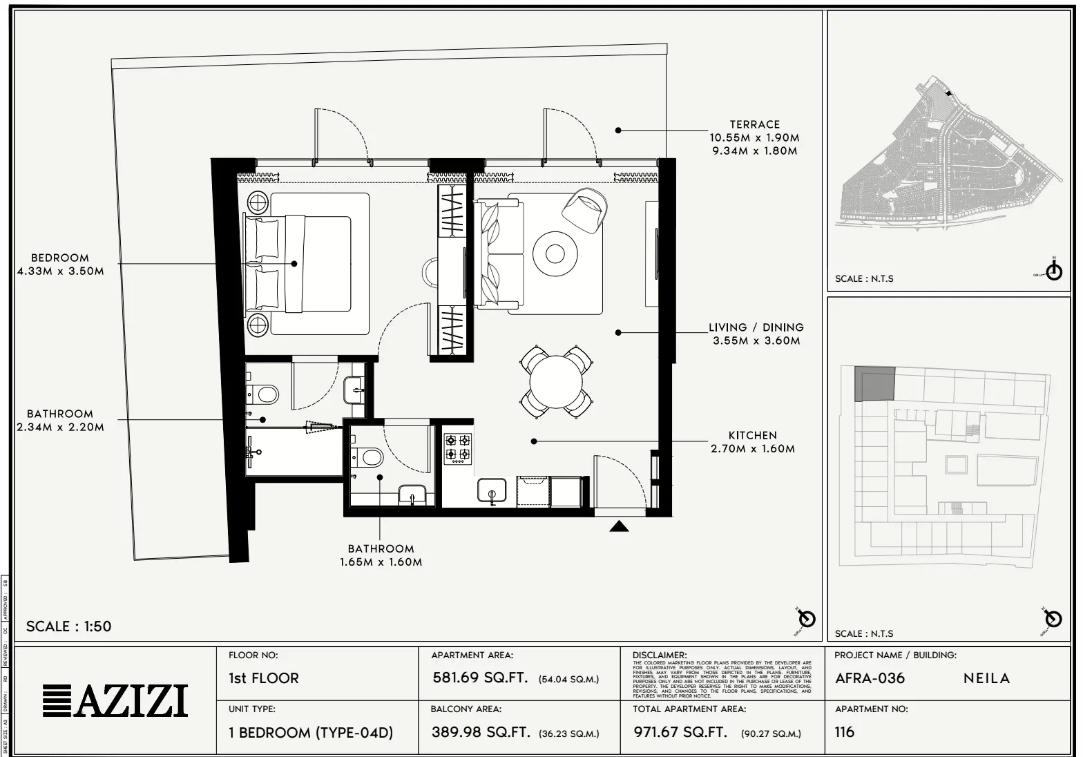
Type 3 971.00 View
Type 10 812.00 View
Type 5 743.00 View
Type 6 736.00 View
Type 7 727.00 View
Type 8 798.00 View
Type 11 690.00 View
Type 12 733.00 View
Type 13 819.00 View
Type 9 673.00 View
Type 16 694.00 View
Type 17 690.00 View
Type 15 697.00 View
Type 18 712.00 View
Type 14 671.00 View
Type 4 742.00 View
Type 1 1,198.00 View
Type 20 827.00 View
Type 21 711.00 View
Type 19 703.00 View
Type 25 710.00 View
Type 27 741.00 View
Type 23 720.00 View
Type 26 707.00 View
Type 24 710.00 View
Type 29 711.00 View

Standard

down payment
10%
10%
during construction
40%
40%
handover
50%
50%

ماشین حساب پرداخت ماهانه

5% 15% 25% 35% 50%
20% AED 0
میانگین فعلی امارات: ۳.۵٪ - ۶.۵٪
پرداخت ماهانه
AED 0
اصل + بهره
مبلغ وام
AED 0
کل بهره
AED 0
کل پرداخت
AED 0

📋 توجه:

این فقط یک تخمین است. نرخ‌ها و شرایط واقعی ممکن است بر اساس پروفایل اعتباری، سیاست‌های بانکی و شرایط فعلی بازار متفاوت باشد. هزینه‌های اضافی مانند بیمه، هزینه ثبت و کارمزد بانکی شامل نمی‌شود.

عزیزی نیلا مجموعه‌ای از آپارتمان‌های مدرن و شیک را در قلب طرح جامع الفرجان ارائه می‌دهد. این پروژه که توسط عزیزی دولوپمنتز توسعه یافته است، اتصال عالی و تجربه‌ای پر جنب و جوش از زندگی را ارائه می‌دهد. این پروژه برای کسانی طراحی شده است که برای راحتی، کیفیت و سبک زندگی متمرکز بر جامعه ارزش قائل هستند و دسترسی آسان به مقاصد اصلی خرده‌فروشی، تجاری و تفریحی را فراهم می‌کند. ویژگی‌های کلیدی موقعیت مکانی و جاذبه‌های اطراف: • ایستگاه مترو باغ‌های کشف، ۶ دقیقه فاصله • مرکز خرید ابن بطوطه، ۱۰ دقیقه فاصله • جافزا و اکسپو ۲۰۲۰ دبی، ۱۰ دقیقه فاصله • فرودگاه بین‌المللی آل مکتوم، ۲۵ دقیقه فاصله امکانات رفاهی: • استخر و زمین بازی کودکان • فضاهای نشستن در فضای باز و پیاده‌روهای محوطه‌سازی شده • امنیت ۲۴ ساعته • فضاهای خرده‌فروشی و کافه‌ها

موقعیت مکانی

Azizi Neila , Al Furjan

طرح پرداخت عزیزی نیلا چیست؟

طرح پرداخت عزیزی نیلا به گونه‌ای تنظیم شده است که انعطاف‌پذیری را برای خریداران فراهم کند. این طرح با ۱۰ درصد پیش پرداخت در زمان عرضه فروش آغاز می‌شود. سپس، ۴۰ درصد در طول مرحله ساخت قابل پرداخت است که به خریداران اجازه می‌دهد پرداخت‌های خود را در طول زمان پخش کنند. ۵۰ درصد نهایی در زمان تحویل قابل پرداخت است و به خریداران فرصت می‌دهد تا پرداخت خود را زمانی که ملک آماده تصرف است، تکمیل کنند. این طرح برای مدیریت بهتر سرمایه‌گذاری در عزیزی نیلا طراحی شده است و در عین حال تراکنش روان را با پیشرفت ساخت و ساز تضمین می‌کند.

قیمت شروع عزیزی نیلا چقدر است؟

قیمت شروع عزیزی نیلا ۹۲۵,۰۰۰ درهم است.

صاحب عزیزی نیلا کیست؟

عزیزی نیلا متعلق به شرکت عزیزی دولوپمنتز، یک توسعه‌دهنده املاک و مستغلات مشهور و مورد اعتماد در امارات متحده عربی است. عزیزی دولوپمنتز به ایجاد پروژه‌های مسکونی و تجاری با کیفیت بالا در سراسر دبی، با تمرکز بر فضاهای زندگی لوکس و امکانات مدرن شهرت دارد. تعهد آنها به تعالی تضمین می‌کند که هر پروژه، از جمله عزیزی نیلا، بالاترین استانداردها را در طراحی و ساخت رعایت کند.

تاریخ تحویل عزیزی نیلا چه زمانی است؟

تاریخ تحویل عزیزی نیلا برای سه ماهه سوم سال ۲۰۲۷ تعیین شده است. این پروژه هیجان‌انگیز توسط عزیزی دولوپمنتز در سه ماهه سوم سال ۲۰۲۷ تکمیل و آماده سکونت خواهد شد و تجربه زندگی مدرن و لوکس را در مکانی عالی به خریداران ارائه می‌دهد. از قبل برنامه‌ریزی کنید تا اقامتگاه خود را تضمین کنید و از مزایای این پروژه خیره‌کننده پس از تکمیل آن لذت ببرید.

آیا عزیزی نیلا سرمایه‌گذاری خوبی است؟

عزیزی نیلا در الفرجان یک سرمایه‌گذاری جذاب است که زندگی شهری مدرن را با راحتی و آسایش ترکیب می‌کند. این پروژه که در نزدیکی مراکز کلیدی مانند مدیا سیتی و اکسپو دبی قرار دارد، دسترسی بی‌درنگ به خطوط مترو و بزرگراه‌های اصلی را فراهم می‌کند و رفت و آمد را آسان می‌سازد. آپارتمان‌های استودیویی و یک خوابه این پروژه دارای طرح‌های معاصر و چیدمان‌های کاربردی هستند که برای ساکنان شهری ایده‌آل است. عزیزی نیلا فضایی پر جنب و جوش و امن را ایجاد می‌کند که برای زندگی و سرمایه‌گذاری بلندمدت ایده‌آل است.

قیمت عرضه

‎درهم ۹۲۵٬۰۰۰

*قیمت‌ها ممکن است متفاوت باشند

اطلاعات کلیدی

تحویل 2027-07-30
انواع ملک apartment
وضعیت در حال ساخت

به این پروژه علاقه‌مند هستید؟

برای جزئیات بیشتر، قیمت و موجودی با سازنده تماس بگیرید.