بینگاتی تولیپ

Binghatti Tulip, Jumeirah Village Circle

درباره این پروژه

بینگاتی تولیپ، یک پروژه مسکونی قابل توجه از سازندگان بینگاتی، در نظر دارد خط افق دایره دهکده جمیرا را دوباره تعریف کند. این توسعه چشمگیر، طراحی معماری آوانگارد و مفاهیم داخلی رویایی را ادغام می کند تا یک تجربه زندگی را شکل دهد که مظهر پیچیدگی و ظرافت است. نگاهی اجمالی به بینگاتی تولیپ بینگاتی تولیپ با مجموعه ای از گزینه های واحد شامل استودیوها و آپارتمان های 1، 2 و 3 خوابه، نیازهای متمایز ساکنان خود را برآورده می کند. واحدهای استخر منتخب در دسترس هستند و یک پیشنهاد سبک زندگی منحصر به فرد را ارائه می دهند. این اقامتگاه ها فقط خانه نیستند. آنها فضاهای زندگی هستند که با دقت طراحی شده اند و با روکش های با کیفیت بالا، ظرافت را ساطع می کنند. نکات کلیدی • واحدهای استخر در دسترس هستند • روکش های با کیفیت بالا • توجه بی دریغ به جزئیات واحدهایی با استخرهای خصوصی در دسترس است • نزدیکی به مدارس و مهد کودک ها • امکانات بخار و سونا • سالن های ورزشی سرپوشیده و روباز • زمین بسکتبال • سینمای روباز • منطقه بازی کودکان • منطقه باربیکیو • پارکینگ سبز • پارکینگ والی • خدمات دربان موقعیت مکانی عالی بینگاتی تولیپ بینگاتی تولیپ که در قلب دایره دهکده جمیرا (JVC) واقع شده است، از موقعیت استراتژیک خود بهره می برد. ساکنان می توانند به لطف نزدیکی به جاده شیخ زاید، از دسترسی یکپارچه به مقاصد اصلی دبی لذت ببرند. علاوه بر این، خانواده ها با مهد کودک ها و مدارسی مانند مهد کودک دنیای کودکان، مهد کودک عجایب کوچک و مدرسه بین المللی JSS در یک رانندگی کوتاه 5 دقیقه ای، راحتی را پیدا خواهند کرد. تناسب اندام و آرامش برای کسانی که برای تناسب اندام ارزش قائل هستند، این توسعه امکانات ورزشی سرپوشیده و روباز مجهز به تجهیزات پیشرفته را ارائه می دهد. پس از یک تمرین نیروبخش، ساکنان می توانند در امکانات بخار و سونا برای یک تجربه آرامش بهینه استراحت کنند. زندگی پایدار بینگاتی تولیپ با تلاش های پایداری همسو است و گزینه های پارکینگ سبز را ارائه می دهد. این ویژگی بسیار مورد استقبال ساکنان آگاه به محیط زیست قرار خواهد گرفت و یک جامعه سبزتر را تقویت می کند. واحدهای موجود و قیمت گذاری بینگاتی تولیپ طیف وسیعی از انواع واحد را برای پاسخگویی به نیازهای مختلف سبک زندگی ارائه می دهد. در زیر گزینه های موجود آمده است: • استودیو • آپارتمان 1 خوابه • آپارتمان 2 خوابه • آپارتمان 3 خوابه متراژ دقیق مربع و جزئیات قیمت گذاری هنوز تایید نشده است زیرا این پروژه در حال حاضر در دست ساخت است و تاریخ تحویل مورد انتظار در سه ماهه چهارم سال 2024 است. بینگاتی تولیپ استاندارد جدیدی را برای توسعه مسکونی در JVC تعیین می کند. با موقعیت استراتژیک، روکش های با کیفیت بالا و طیف گسترده ای از گزینه های واحد، سبک زندگی ای را ارائه می دهد که هم لوکس و هم راحت است. چه از علاقه مندان به تناسب اندام باشید و چه یک خانه نشین آرام، بینگاتی تولیپ چیزی برای همه دارد. با تحویل مورد انتظار در سه ماهه چهارم سال 2024، بینگاتی تولیپ یک توسعه است که ارزش منتظر ماندن را دارد.

وضعیت ساخت

مرحله
تکمیل شده
پیشرفت
100%

جزئیات پروژه

  • نوع: apartment
  • تاریخ عرضه: 2023-10-25
  • تاریخ تکمیل: 2024-12-01

امکانات

Gymnasium
Shared Spa
Cafe and Restaurants
Shared Pool

جدول زمانی پروژه

  • Booking Started: 25/10/2023
  • Construction Started: 26/10/2023
  • Expected Completion: 01/12/2024

ویدیوهای پروژه

انواع واحد موجود از سازنده

APARTMENT

Studio

شروع از ‎درهم ۵۶۸٬۰۰۰
Available Layouts
Layout Type Size (sqft) Floor Plan
Type A 303.00 View
Type B - View
Type C - View

APARTMENT

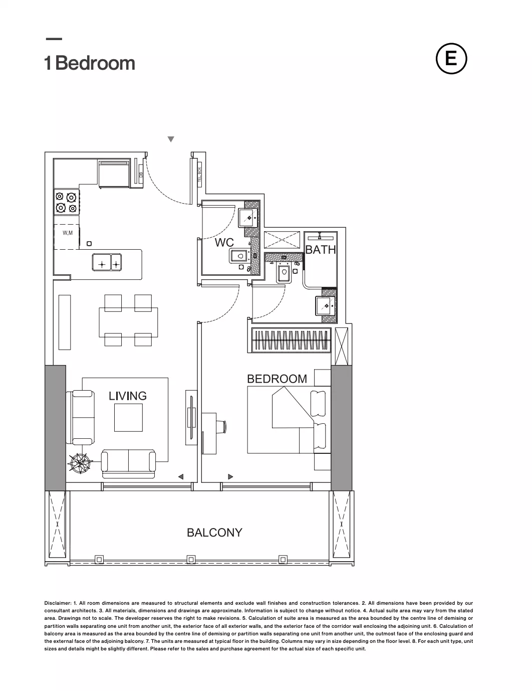
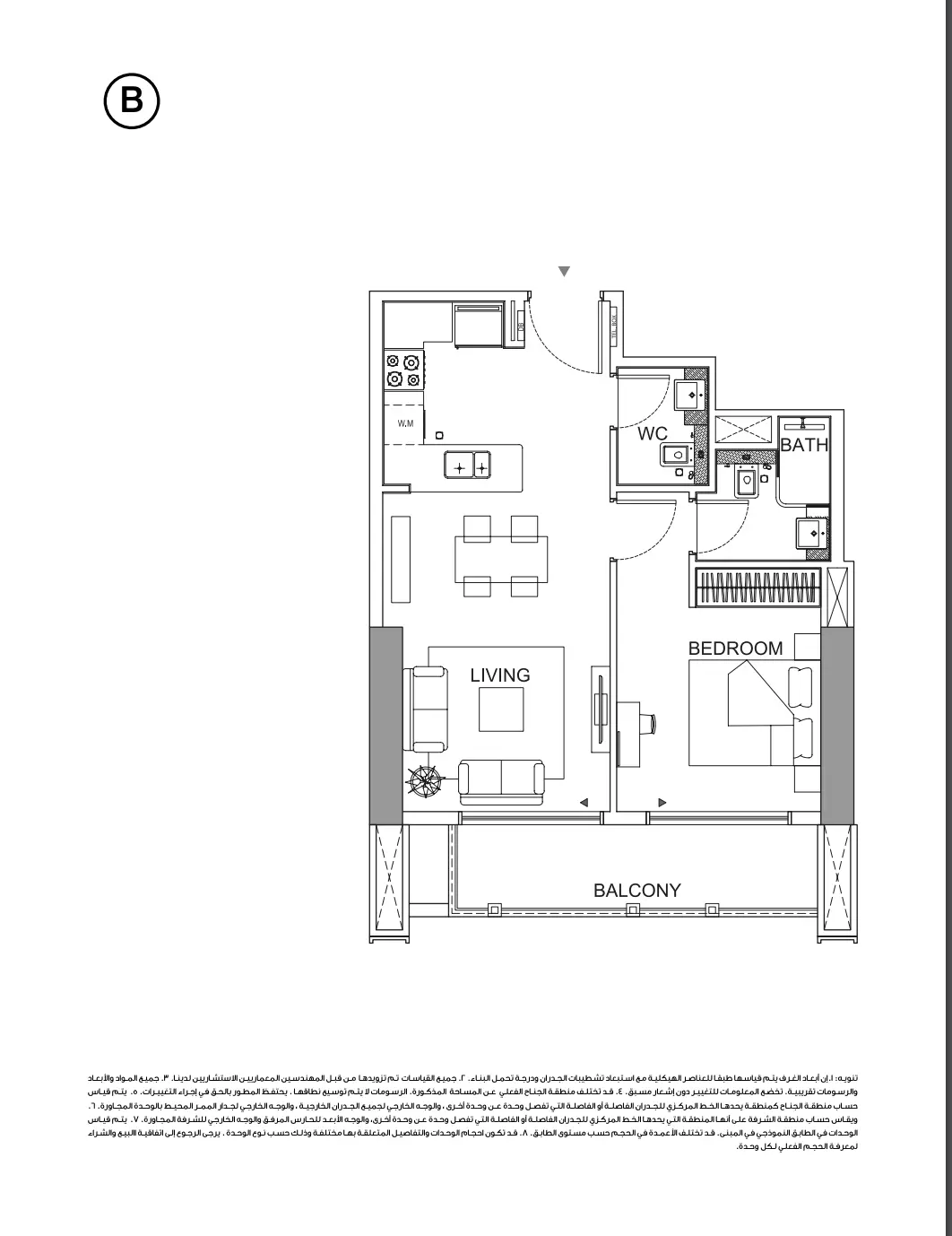
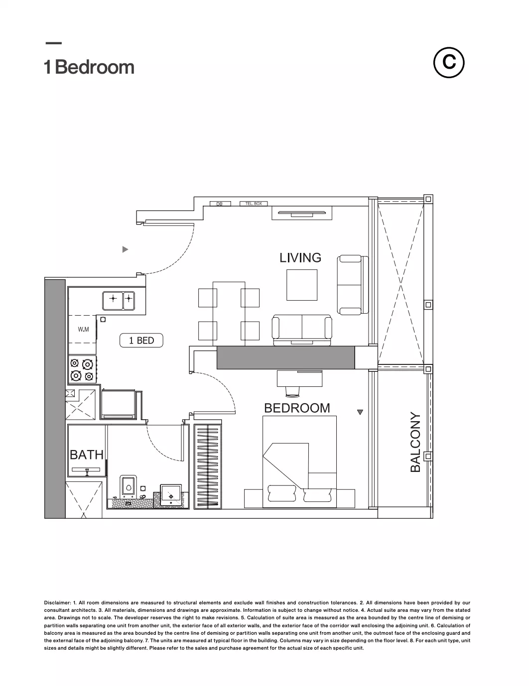
1 Bedroom

شروع از ‎درهم ۵۶۸٬۰۰۰
Available Layouts
Layout Type Size (sqft) Floor Plan
Type A 491.00 View
Type D - View
Type C - View
Type E - View
Type B - View

APARTMENT

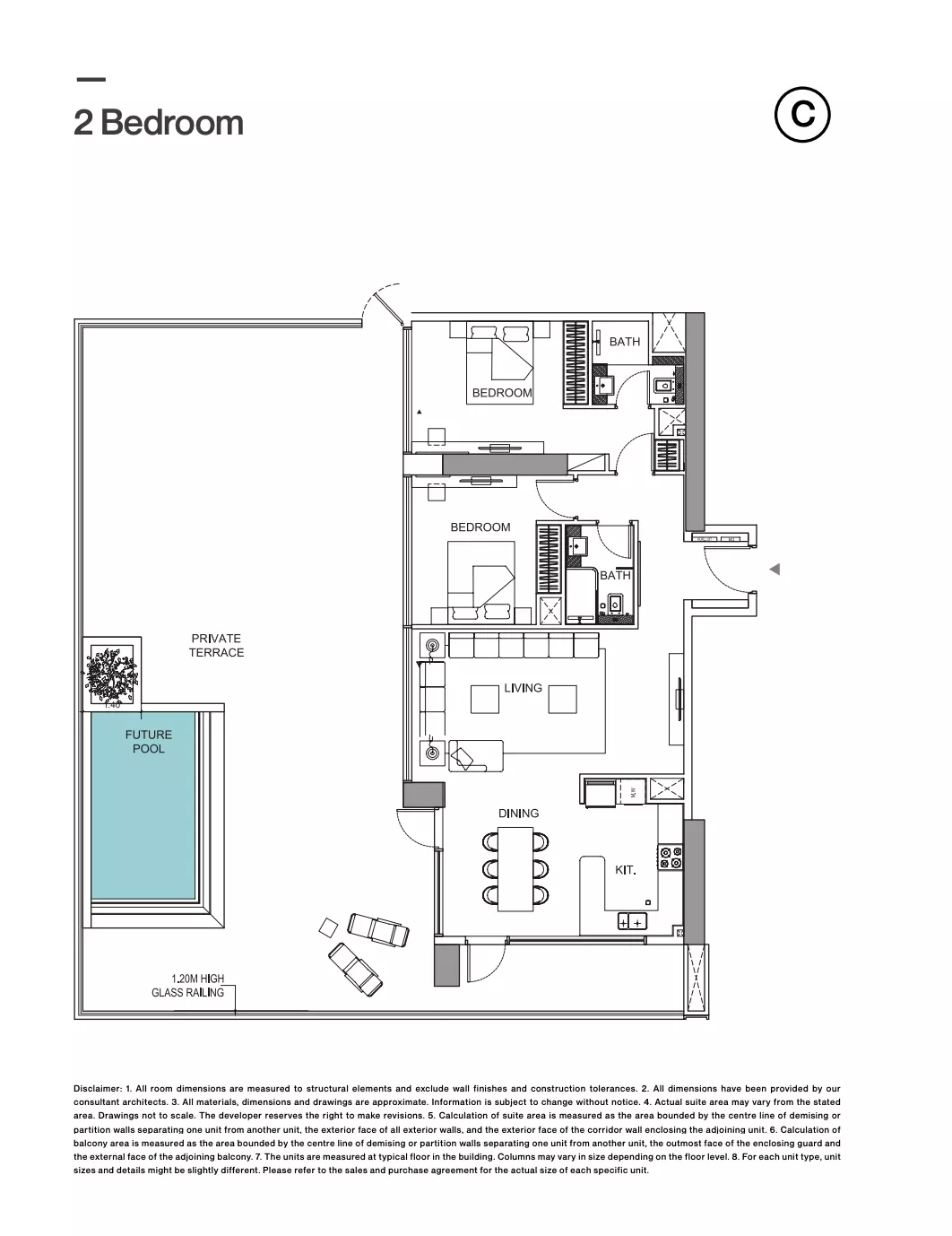
2 Bedrooms

شروع از ‎درهم ۵۶۸٬۰۰۰
Available Layouts
Layout Type Size (sqft) Floor Plan
Type A 1,140.00 View
Type B - View
Type C - View

APARTMENT

3 Bedrooms

Size: 1836 sq ft
شروع از ‎درهم ۲٬۵۶۳٬۸۸۴
Available Layouts
Layout Type Size (sqft) Floor Plan
Type A 1,836.00 View

Standard

down payment
20%
20%
during construction
50%
50%
handover
30%
30%

ماشین حساب پرداخت ماهانه

5% 15% 25% 35% 50%
20% AED 0
میانگین فعلی امارات: ۳.۵٪ - ۶.۵٪
پرداخت ماهانه
AED 0
اصل + بهره
مبلغ وام
AED 0
کل بهره
AED 0
کل پرداخت
AED 0

📋 توجه:

این فقط یک تخمین است. نرخ‌ها و شرایط واقعی ممکن است بر اساس پروفایل اعتباری، سیاست‌های بانکی و شرایط فعلی بازار متفاوت باشد. هزینه‌های اضافی مانند بیمه، هزینه ثبت و کارمزد بانکی شامل نمی‌شود.

مروری بر طرح جامع بینگاتی تولیپ بینگاتی تولیپ، توسعه یافته توسط سازندگان بینگاتی، یک پروژه مسکونی استثنایی است که در طرح جامع بینگاتی تولیپ در دایره دهکده جمیرا (JVC) دبی واقع شده است. این توسعه چشمگیر استودیوها، آپارتمان های 1، 2 و 3 خوابه را ارائه می دهد، با واحدهای منتخب دارای استخرهای خصوصی. معماری آوانگارد و روکش های با کیفیت بالا، زندگی لوکس را دوباره تعریف می کنند. موقعیت استراتژیک بینگاتی تولیپ در JVC دسترسی یکپارچه به مقاصد اصلی دبی را فراهم می کند و اتصال سریع به جاده شیخ زاید را فراهم می کند. خانواده ها از نزدیکی به مدارس و مهد کودک ها، مانند مهد کودک دنیای کودکان و مدرسه بین المللی JSS بهره مند می شوند. ویژگی های کلیدی مکان های نزدیک • 05 دقیقه - نورد انگلیا (ال برشا جنوبی) • 05 دقیقه - آکادمی جهانی جواهرات • 03 دقیقه - مرکز خرید خیابان الخیل • 07 دقیقه - مرکز خرید امارات • 07 دقیقه - مرکز خرید البرشا • 05 دقیقه - مرکز شهر البرشا • 05 دقیقه - بیمارستان مدیکلیک پارک ویو امکانات رفاهی • واحدهایی با استخرهای خصوصی در دسترس هستند • سالن ورزشی سرپوشیده و روباز • امکانات بخار و سونا • زمین بسکتبال • سینمای روباز • منطقه بازی کودکان • منطقه باربیکیو • پارکینگ سبز • پارکینگ والی • خدمات دربان

موقعیت مکانی

Binghatti Tulip , Jumeirah Village Circle

آیا بینگاتی تولیپ سرمایه گذاری خوبی است؟

بینگاتی تولیپ، واقع در دایره دهکده جمیرا (JVC) پر جنب و جوش، به دلیل طراحی استثنایی و موقعیت مکانی عالی خود، یک فرصت سرمایه گذاری امیدوارکننده است. این توسعه از دسترسی آسان به جاده های اصلی مانند جاده شیخ زاید بهره می برد و اتصال یکپارچه ای را به مقاصد اصلی دبی ارائه می دهد. نزدیکی آن به مدارس و مهد کودک ها به جذابیت آن، به ویژه برای خانواده هایی که به دنبال راحتی هستند، می افزاید. معماری چشمگیر و روکش های با کیفیت بالای این پروژه آن را متمایز می کند و یک تجربه زندگی عالی را تضمین می کند. بینگاتی تولیپ همچنین عناصر پایدار، مانند پارکینگ سبز را در خود جای داده است و به ساکنان آگاه به محیط زیست خدمات ارائه می دهد. بینگاتی تولیپ با طیف وسیعی از گزینه های مسکن و موقعیت استراتژیک خود در یکی از جوامع در حال توسعه سریع دبی، پتانسیل زیادی برای افزایش ارزش بلندمدت ارائه می دهد و آن را به یک انتخاب جذاب برای سرمایه گذاران تبدیل می کند.

برنامه پرداخت بینگاتی تولیپ چیست؟

برنامه پرداخت برای بینگاتی تولیپ به شرح زیر است: 20% پیش پرداخت در زمان راه اندازی فروش 50% در طول ساخت و ساز 30% در زمان تحویل

قیمت اولیه بینگاتی تولیپ چقدر است؟

قیمت اولیه بینگاتی تولیپ 680,000 درهم امارات است.

صاحب بینگاتی تولیپ کیست؟

بینگاتی تولیپ متعلق به بینگاتی دولوپرز اف زد ای است، یک شرکت توسعه املاک و مستغلات مشهور که به دلیل ایجاد املاک مسکونی و تجاری مدرن و نوآورانه در امارات متحده عربی شناخته شده است.

تاریخ تحویل بینگاتی تولیپ چه زمانی است؟

بینگاتی تولیپ برای تحویل در سه ماهه چهارم سال 2024 تعیین شده است. این نشان دهنده تکمیل و تحویل مورد انتظار پروژه به ساکنان آن است.

قیمت عرضه

‎درهم ۵۶۸٬۰۰۰

*قیمت‌ها ممکن است متفاوت باشند

اطلاعات کلیدی

تحویل 2024-12-01
انواع ملک apartment
وضعیت تکمیل شده

به این پروژه علاقه‌مند هستید؟

برای جزئیات بیشتر، قیمت و موجودی با سازنده تماس بگیرید.