برج گرند بلو

Grand Bleu Tower 1, EMAAR Beachfront

درباره این پروژه

برج گرند بلو، پروژه‌ای نمونه از سوی توسعه‌دهنده معتبر املاک و مستغلات، ایمار پراپرتیز، تجسمی از لوکس بودن و ظرافت است. این مجموعه مسکونی در قلب بندر دبی واقع شده و طیف وسیعی از آپارتمان‌های لوکس ۱ تا ۳ خوابه و پنت‌هاوس‌های ۴ خوابه را ارائه می‌دهد. برج گرند بلو با طرح‌ها و دکوراسیون داخلی الهام گرفته از طراح مشهور، الی صعب، واقعاً نمادی از ظرافت و شکوه است. موقعیت برج گرند بلو این پروژه مسکونی که در منطقه زیبای ساحلی ایمار (Emaar Beachfront) قرار گرفته است، منظره‌ای شگفت‌انگیز و بدون وقفه از پالم، دریا و آسمان را ارائه می‌دهد. با نزدیکی به پارک‌ها و تفرجگاه‌ها، ساکنان هر روز با منظره‌ای نفس‌گیر روبرو می‌شوند. این موقعیت نه تنها لذت زیبایی‌شناختی را نوید می‌دهد، بلکه راحتی و دسترسی‌پذیری را نیز فراهم می‌کند و برج گرند بلو را به مقصدی پرطرفدار تبدیل کرده است. سبک و ظرافت امضا شده الهام معماری برج گرند بلو از منطقه آرت دکو میامی در دهه ۱۹۳۰ سرچشمه می‌گیرد و فضایی از پالایش و کلاس را ایجاد می‌کند. اقامتگاه‌های طراحی شده، ظرافت ذاتی و سبک امضای الی صعب را به نمایش می‌گذارند و هر واحد را به یک شاهکار تبدیل می‌کنند. با دکوراسیون داخلی شیک که با محیط لوکس ترکیب شده است، آپارتمان‌ها و پنت‌هاوس‌ها حس شکوه و ظرافتی را القا می‌کنند که استاندارد کلی زندگی را ارتقا می‌بخشد. ویژگی‌های پیشرفته و خانه‌های راحت خانه‌های کنار آب در برج گرند بلو مجهز به ویژگی‌های پیشرفته‌ای هستند که فضاهای زندگی را نه تنها مجلل، بلکه کاربردی نیز می‌سازند. واحدهای مسکونی به گونه‌ای طراحی شده‌اند که تمام نیازهای شما را برآورده کنند و اطمینان حاصل شود که خانه شما پناهگاهی از راحتی و آرامش است. جاذبه‌های سرگرمی و تفریحی در برج گرند بلو، سرگرمی و تفریح هرگز دور نیست. از خانه خود خارج شوید و خود را در میان دنیایی از فرصت‌ها خواهید یافت – از مراکز خرید گرفته تا رستوران‌های لذیذ، از مراکز تناسب اندام گرفته تا پارک‌ها. مناظر و صداهای ارائه شده جذابیت خاص خود را دارند و هر روز را به جشنی از زندگی تبدیل می‌کنند. امکانات رفاهی • باشگاه ورزشی • زمین بازی • سرایدار • منطقه باربیکیو • پنجره‌های از کف تا سقف • جامعه حصارکشی شده انواع واحدها برج گرند بلو طیف متنوعی از گزینه‌های مسکن را برای پاسخگویی به نیازهای منحصر به فرد شما ارائه می‌دهد. این پروژه دارای واحدهای مختلفی است که از آپارتمان‌های دنج ۱ خوابه (حداقل ۷۸۷ فوت مربع) تا آپارتمان‌های جادار ۴ خوابه (۲۷۰۶ فوت مربع) متغیر است. این واحدها برای پاسخگویی به سبک‌های زندگی و ترجیحات مختلف طراحی شده‌اند و اطمینان حاصل می‌کنند که برای همه چیزی وجود دارد. • آپارتمان ۱ خوابه: مساحت از ۷۸۷ تا ۹۸۴ فوت مربع • آپارتمان ۲ خوابه: مساحت از ۱۲۲۸ تا ۱۵۸۴ فوت مربع • آپارتمان ۳ خوابه: مساحت از ۱۹۳۹ تا ۲۴۵۴ فوت مربع • آپارتمان ۴ خوابه: مساحت ۲۷۰۶ فوت مربع تاریخ تحویل • تاریخ تحویل: سه ماهه دوم ۲۰۲۳.  برج گرند بلو از ایمار پراپرتیز صرفاً یک پروژه مسکونی نیست؛ این برج گرند بلو، پروژه‌ای نمونه از سوی توسعه‌دهنده معتبر املاک و مستغلات، ایمار پراپرتیز، تجسمی از لوکس بودن و ظرافت است. این مجموعه مسکونی در قلب بندر دبی واقع شده و طیف وسیعی از آپارتمان‌های لوکس ۱ تا ۳ خوابه و پنت‌هاوس‌های ۴ خوابه را ارائه می‌دهد. برج گرند بلو با طرح‌ها و دکوراسیون داخلی الهام گرفته از طراح مشهور، الی صعب، واقعاً نمادی از ظرافت و شکوه است.

وضعیت ساخت

مرحله
تکمیل شده
پیشرفت
100%

جزئیات پروژه

  • نوع: apartment
  • تاریخ عرضه: 2019-09-10
  • تاریخ تکمیل: 2023-05-30

امکانات

Security
Children's Play Area
Restaurants
Shared Pool
Gymnasium

جدول زمانی پروژه

  • Booking Started: 10/09/2019
  • Construction Started: 11/09/2019
  • Expected Completion: 30/05/2023

ویدیوهای پروژه

انواع واحد موجود از سازنده

APARTMENT

Studio

Size: 1311 sq ft
شروع از ‎درهم ۱٬۸۴۳٬۸۸۸
Available Layouts
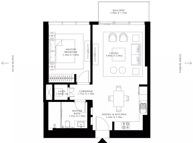
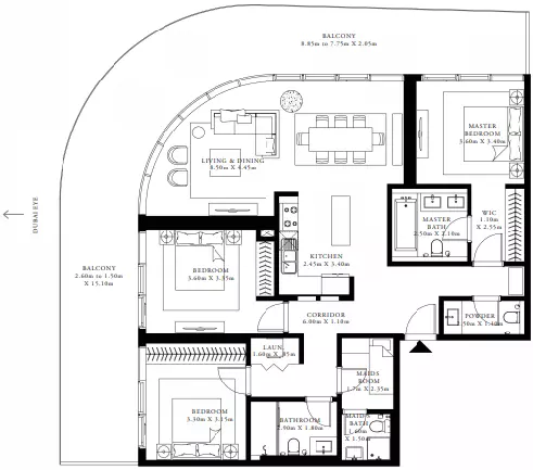
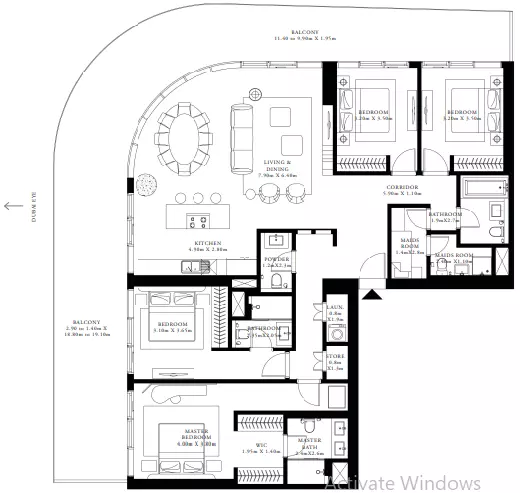
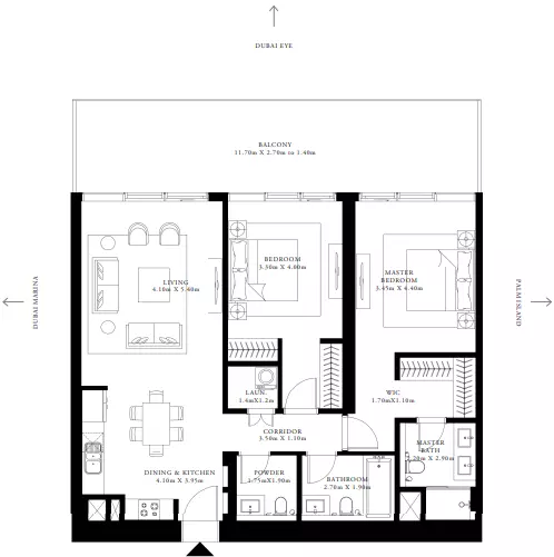
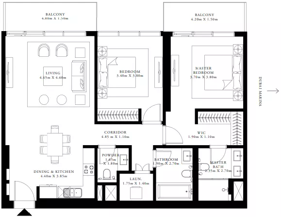
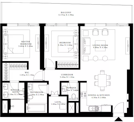
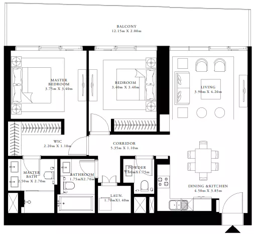
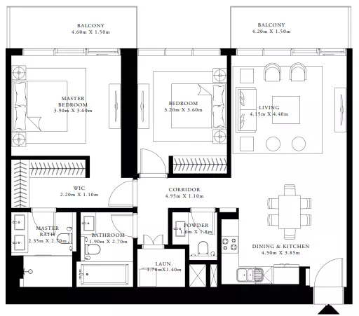
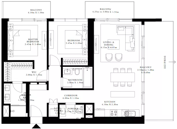
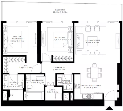
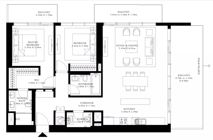
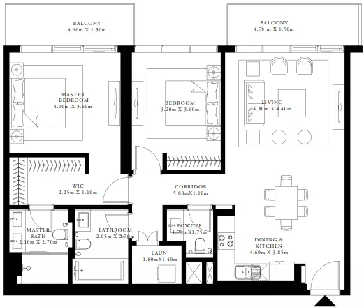
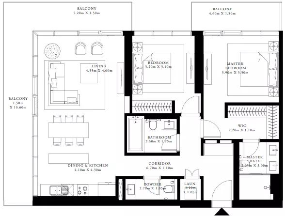
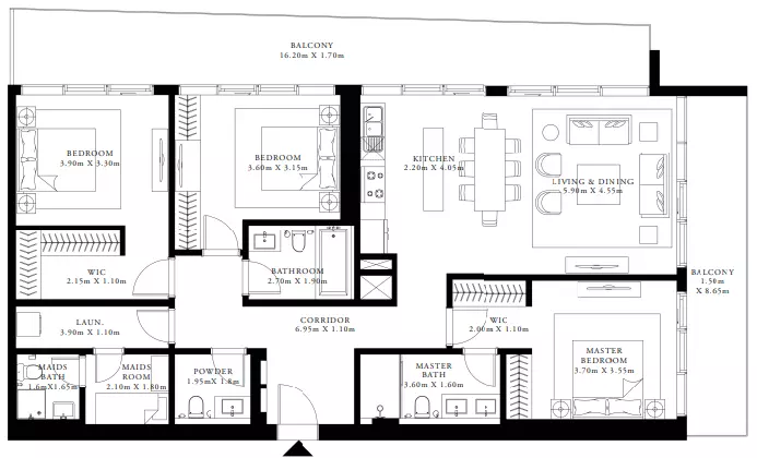
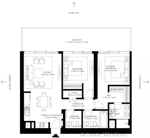
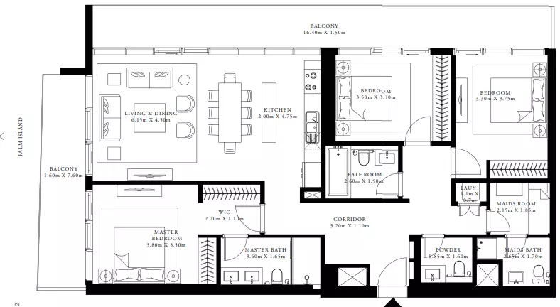
Layout Type Size (sqft) Floor Plan
Unit 01 | Levels 02 To 09 1,311.00 View

APARTMENT

1 Bedroom

Size: 788 - 984 sq ft
شروع از ‎درهم ۱٬۸۴۳٬۸۸۸
Available Layouts
Layout Type Size (sqft) Floor Plan
Unit 07 | Levels 02 To 09 788.00 View
Unit 03 | Levels 19 To 26 984.00 View
Unit 07 | Levels 28 To 35 792.00 View
Unit 03 | Levels 28 To 35 797.00 View

APARTMENT

2 Bedrooms

Size: 1228 - 1584 sq ft
شروع از ‎درهم ۱٬۸۴۳٬۸۸۸
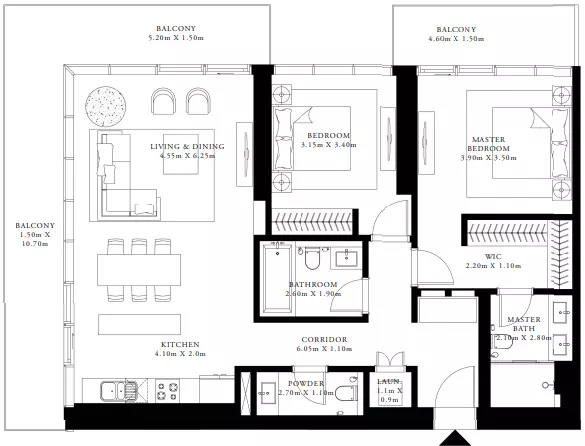
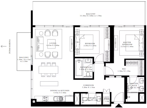
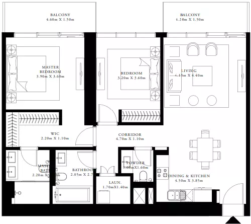
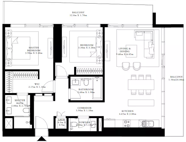
Available Layouts
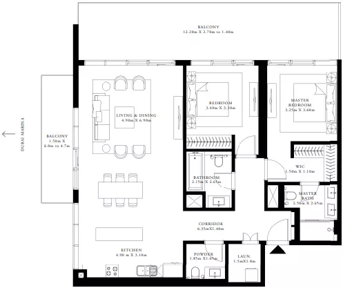
Layout Type Size (sqft) Floor Plan
Unit 02 | Levels 10 To 17 1,398.00 View
Unit 03 | Levels 10 To 17 1,228.00 View
Unit 02 | Levels 28 To 35 1,401.00 View
Unit 08 | Levels 28 To 35 1,574.00 View
Unit 03 | Levels 02 To 09 1,415.00 View
Unit 06 | Levels 10 To 17 1,568.00 View
Unit 08 | Levels 19 To 26 1,569.00 View
Unit 06 | Levels 37 To 45 1,353.00 View
Unit 02 | Levels 02 To 09 1,562.00 View
apartment 1,388.00 View
apartment 1,568.00 View
Unit 01 | Levels 19 To 26 1,584.00 View
Unit 02 | Levels 19 To 26 1,584.00 View
Unit 01 | Levels 28 To 35 1,333.00 View
Unit 09 | Levels 02 To 09 1,571.00 View
Unit 01 | Levels 10 To 17 1,311.00 View
Unit 05 | Levels 19 To 26 1,416.00 View
Unit 05 | Levels 28 To 35 1,427.00 View

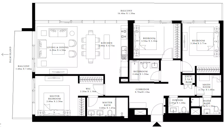
APARTMENT

3 Bedrooms

Size: 1939 - 2454 sq ft
شروع از ‎درهم ۱٬۸۴۳٬۸۸۸
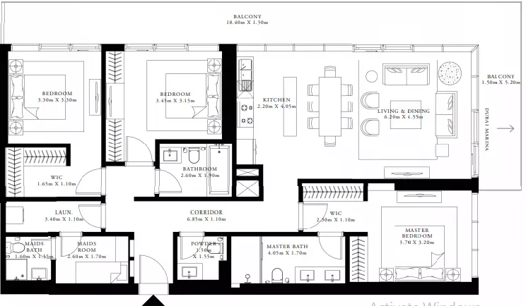
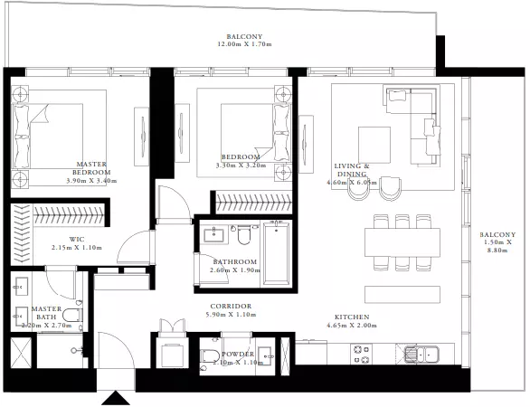
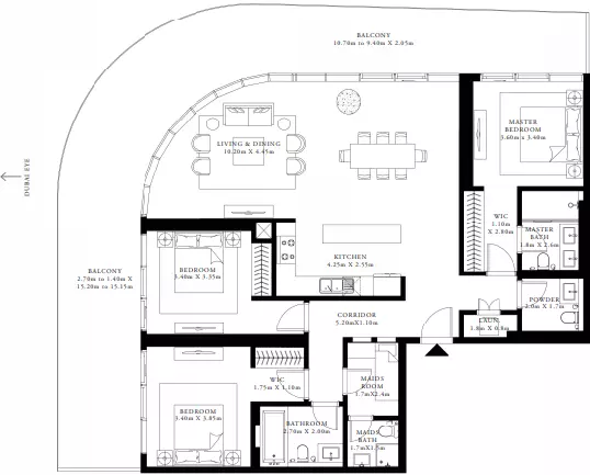
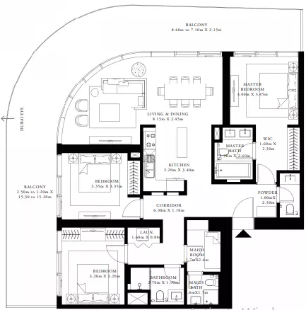
Available Layouts
Layout Type Size (sqft) Floor Plan
Unit 03 Levels 02 To 09 2,199.00 View
Unit 04 | Levels 19 To 26 2,454.00 View
Unit 06 | Levels 19 To 26 1,939.00 View
Unit 04 | Levels 10 To 17 1,963.00 View
Unit 04 | Levels 28 To 35 2,042.00 View
Unit 06 | Levels 28 To 35 1,946.00 View
Unit 04 | Levels 37 To 45 2,062.00 View
Unit 03 | Levels 37 To 45 2,071.00 View
Unit 05 | Levels 37 To 45 1,963.00 View

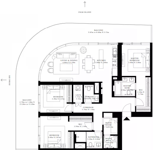
APARTMENT

4 Bedrooms

Size: 2706 sq ft
شروع از ‎درهم ۱٬۸۴۳٬۸۸۸
Available Layouts
Layout Type Size (sqft) Floor Plan
Unit 02 | Levels 37 To 45 2,706.00 View

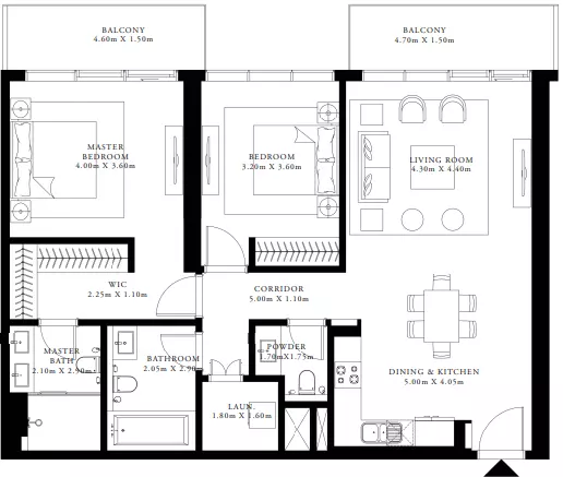
APARTMENT

1 Bedroom

Size: 766 - 911 sq ft
شروع از ‎درهم ۱٬۸۴۳٬۸۸۸
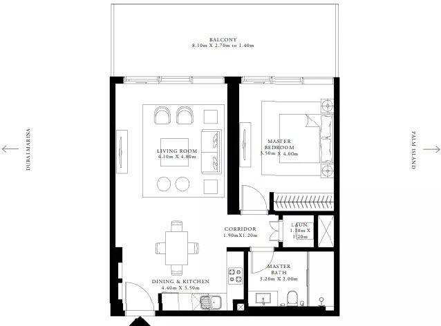
Available Layouts
Layout Type Size (sqft) Floor Plan
Unit 09 - Level 10 793.00 View
Unit 06 - Level 01 773.00 View
Unit 03 - Level 19 766.00 View
Unit 07 - Level 01 779.00 View
Unit 07 - Level 19 911.00 View
Unit 02 - Level 19 886.00 View
Unit 05 - Level 01 842.00 View
Unit 02 - Level 20-26 888.00 View
Unit 07 - Level 20-26 778.00 View
Unit 01 - Level 20-26 793.00 View

APARTMENT

2 Bedrooms

Size: 792 - 1781 sq ft
شروع از ‎درهم ۱٬۸۴۳٬۸۸۸
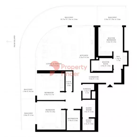
Available Layouts
Layout Type Size (sqft) Floor Plan
Unit 05 - Level 2 1,420.00 View
Unit 04 - Level 18 1,381.00 View
Unit 05 - Level 18 792.00 View
Unit 01 - Mezzanine 1,553.00 View
Unit 03 - Level-17 1,254.00 View
Unit 02 - Level 01 1,415.00 View
Unit 04 - Level 17 1,397.00 View
Unit 06 - Level 02 1,781.00 View
Unit 04 - Level 01 1,253.00 View
Unit 06 - Level 17 1,457.00 View
Unit 06 - Level 19 1,355.00 View
Unit 05 - Level 10 1,423.00 View
Unit 07 - Level 17 1,233.00 View
Unit 06 - Level 10 1,610.00 View
Unit 07 - Level 10 1,399.00 View
Unit 01 - Level 01 1,762.00 View
Unit 03 - Level 01 1,402.00 View
Unit 04 - Level 2 1,395.00 View
Unit 03 - Mezzanine 1,403.00 View
Unit 03 - Level 18 1,164.00 View
Unit 07 - Level 02 1,589.00 View
Unit 04 - Level 03-09 1,395.00 View
Unit 05 - Level 03-09 1,420.00 View
Unit 06 - Level 03-09 1,755.00 View
Unit 06 - Level 11-16 1,478.00 View
Unit 06 - Level 20-26 1,190.00 View
Unit 07 - Level 03-09 1,564.00 View
Unit 07 - Level 11-16 1,257.00 View

APARTMENT

3 Bedrooms

Size: 2192 - 2400 sq ft
شروع از ‎درهم ۱٬۸۴۳٬۸۸۸
Available Layouts
Layout Type Size (sqft) Floor Plan
Unit 05 - Level 19 2,400.00 View
Unit 05 - Level 20-26 2,192.00 View

APARTMENT

4 Bedrooms

Size: 2722 sq ft
شروع از ‎درهم ۱٬۸۴۳٬۸۸۸
Available Layouts
Layout Type Size (sqft) Floor Plan
Unit 04 - Level 20-26 2,722.00 View

APARTMENT

1 Bedroom

Size: 1067 sq ft
شروع از ‎درهم ۱٬۸۴۳٬۸۸۸
Available Layouts
Layout Type Size (sqft) Floor Plan
Unit 08 - Level 01 1,067.00 View

Standard

down payment
12%
12%
during construction
58%
58%
handover
10%
10%
after handover
20%
20%

ماشین حساب پرداخت ماهانه

5% 15% 25% 35% 50%
20% AED 0
میانگین فعلی امارات: ۳.۵٪ - ۶.۵٪
پرداخت ماهانه
AED 0
اصل + بهره
مبلغ وام
AED 0
کل بهره
AED 0
کل پرداخت
AED 0

📋 توجه:

این فقط یک تخمین است. نرخ‌ها و شرایط واقعی ممکن است بر اساس پروفایل اعتباری، سیاست‌های بانکی و شرایط فعلی بازار متفاوت باشد. هزینه‌های اضافی مانند بیمه، هزینه ثبت و کارمزد بانکی شامل نمی‌شود.

برج گرند بلو از ایمار پراپرتیز تجربه‌ای فوق‌العاده از زندگی در بندر دبی را ارائه می‌دهد. این پروژه لوکس که با همکاری طراح مشهور، الی صعب، طراحی شده است، شکوه معماری را با دکوراسیون داخلی ظریف ترکیب می‌کند. برج گرند بلو با ارائه اقامتگاه‌ها، از جمله پنت‌هاوس‌ها، منظره‌ای خیره‌کننده از پالم، دریا و آسمان را به نمایش می‌گذارد. این طرح از منطقه نمادین آرت دکو میامی الهام گرفته شده است و به هر واحد جذابیت ظریف و جاودانه‌ای می‌بخشد. این پروژه با طیف گسترده‌ای از امکانات رفاهی سطح بالا، از جمله باشگاه ورزشی مدرن، استخر و خدمات سرایداری، تکمیل شده است و اطمینان حاصل می‌کند که به هر نیازی رسیدگی می‌شود. برج گرند بلو که در یکی از مناطق پرطرفدار دبی واقع شده است، سبکی از زندگی بی‌نظیر از نظر لوکس بودن، راحتی و زیبایی را ارائه می‌دهد. ویژگی‌های کلیدی: موقعیت مکانی: • ۵ دقیقه تا مارینای دبی • ۲۵ دقیقه تا مرکز شهر دبی • ۲۵ دقیقه تا فرودگاه بین‌المللی دبی امکانات رفاهی: • امکانات ورزشی • منطقه باربیکیو • اتاق‌های چند منظوره • زمین بازی

موقعیت مکانی

Grand Bleu Tower 1 , EMAAR Beachfront

طرح پرداخت برج گرند بلو چیست؟

طرح پرداخت ۱۲٪: پیش پرداخت در زمان عرضه فروش ۵۸٪: در طول ساخت ۱۰٪: در زمان تحویل ۲۰٪: پس از تحویل

آیا برج گرند بلو سرمایه‌گذاری خوبی است؟

برج گرند بلو با موقعیت مکانی عالی در بندر دبی، منظره‌ای خیره‌کننده و اقامتگاه‌های لوکس طراحی شده توسط الی صعب را ارائه می‌دهد. نزدیکی آن به امکانات رفاهی در سطح جهانی و نقاط دیدنی نمادین، تقاضای اجاره قوی و رشد ارزش ملک را تضمین می‌کند و آن را به سرمایه‌گذاری جذابی تبدیل می‌کند.

قیمت اولیه برج گرند بلو چقدر است؟

قیمت اولیه برج گرند بلو ۲,۶۰۰,۰۰۰ درهم است.

صاحب برج گرند بلو کیست؟

صاحب برج گرند بلو، ایمار پراپرتیز است، یک توسعه‌دهنده پیشرو املاک و مستغلات که به دلیل پروژه‌های نمادین خود در دبی و فراتر از آن شهرت دارد.

صاحب برج گرند بلو کیست؟

صاحب برج گرند بلو، ایمار پراپرتیز است، یک توسعه‌دهنده پیشرو املاک و مستغلات که به دلیل پروژه‌های نمادین خود در دبی و فراتر از آن شهرت دارد.

تاریخ تحویل برج گرند بلو چه زمانی است؟

تاریخ تحویل برج گرند بلو ماه مه ۲۰۲۳ است. این پروژه مدرن، صنعتگری ممتاز را منعکس می‌کند و تجربه‌ای ارتقا یافته از زندگی را نوید می‌دهد.

قیمت عرضه

‎درهم ۱٬۸۴۳٬۸۸۸

*قیمت‌ها ممکن است متفاوت باشند

اطلاعات کلیدی

تحویل 2023-05-30
انواع ملک apartment
وضعیت تکمیل شده

سازنده

به این پروژه علاقه‌مند هستید؟

برای جزئیات بیشتر، قیمت و موجودی با سازنده تماس بگیرید.