جومانا

Jomana, Madinat Jumeirah Living

درباره این پروژه

ما شما را به آینده زندگی معاصر در جومانا واقع در پارک مدینه جمیرا لیوینگ، ارائه شده توسط مراس هولدینگ، می‌آوریم. این مجموعه جدید که در حال حاضر در دست ساخت است، انواع واحدهای یک، دو، سه و چهار خوابه را ارائه می‌دهد. موقعیت مکانی عالی جومانا جومانا در یکی از مطلوب‌ترین مناطق شهر، مدینه جمیرا لیوینگ واقع شده است. این منطقه به دلیل خوشه عربی خانه‌ها مشهور است که ترکیبی فریبنده از عناصر کلاسیک و مدرن را ارائه می‌دهد. ورودی آپارتمان‌های جومانا نویدبخش دوران جدیدی در ایده برنامه‌ریزی جامعه است. با جومانا، شما نه تنها در زیبایی معماری زندگی خواهید کرد، بلکه بهترین‌های دبی را نیز در دسترس خواهید داشت. اقامتگاه‌ها: ترکیبی از آسایش و سبک اقامتگاه‌های جومانا نمونه‌ای از طراحی معاصر هستند. هر ویژگی در اقامتگاه‌ها با دقت برنامه‌ریزی شده است در حالی که کاملاً به فرهنگ منطقه وفادار است. آپارتمان‌ها که از یک تا چهار اتاق خواب متغیر هستند، در اندازه‌های مختلف برای پاسخگویی به نیازهای مختلف سبک زندگی ارائه می‌شوند. در اینجا انواع واحدهای مختلف و اندازه‌های تخمینی آنها آورده شده است: • آپارتمان 1 خوابه: اندازه‌ها از 730 تا 1119 فوت مربع • آپارتمان 2 خوابه: اندازه‌ها از 1249 تا 1649 فوت مربع • آپارتمان 3 خوابه: اندازه‌ها از 2185 تا 2755 فوت مربع • آپارتمان 4 خوابه: اندازه‌ها از 3353 تا 3417 فوت مربع جامعه: مکانی برای همه جومانا چیزی بیش از یک مجتمع مسکونی است. این یک جامعه است که شیوه زندگی سالم را ترویج می‌کند. این توسعه دارای امکانات و خدمات درجه یک است. اینها شامل فضاهای سبز گسترده، مناطق مشترک، امکانات تناسب اندام و امنیت 24 ساعته است. امکانات رفاهی • • مراکز مراقبت روزانه • مناطق بازی • مراکز تناسب اندام • استخرهای شنا • پارک‌ها و فضاهای باز • پل عابر پیاده تهویه مطبوع مستقیم متصل به استراحتگاه مدینه جمیرا سبک زندگی: بهترین‌های دبی را تجربه کنید اگر در جومانا زندگی کنید، هرگز از جاذبه‌های برتر شهر دور نخواهید بود. همیشه کاری برای انجام دادن در پارک مجاور مدینه جمیرا لیوینگ وجود دارد. این ملک همچنین به خوبی به بزرگراه‌های اصلی متصل است و رفت و آمد را ساده و راحت می‌کند. تاریخ تحویل و قیمت اولیه • تاریخ تحویل: سه ماهه دوم 2026 • قیمت اولیه: 2346111 درهم امارات جومانا در پارک مدینه جمیرا لیوینگ ترکیبی ایده‌آل از تاریخ و آسایش مدرن است. انتظار می‌رود این ملک جدید توسط مراس هولدینگ، به لطف موقعیت عالی، ویژگی‌های متمایز و گزینه‌های مسکن، هنجارهای زندگی معاصر در دبی را متحول کند. به شیوه جدیدی از زندگی خوش آمدید. به جومانا خوش آمدید.

وضعیت ساخت

مرحله
در حال ساخت
پیشرفت
45.85%

جزئیات پروژه

  • نوع: apartment
  • تاریخ عرضه: 2023-04-30
  • تاریخ تکمیل: 2026-04-30

امکانات

Barbecue Area
Mosque
Restaurants
Gymnasium
Security

جدول زمانی پروژه

  • Booking Started: 30/04/2023
  • Construction Started: 01/05/2023
  • Expected Completion: 30/04/2026

ویدیوهای پروژه

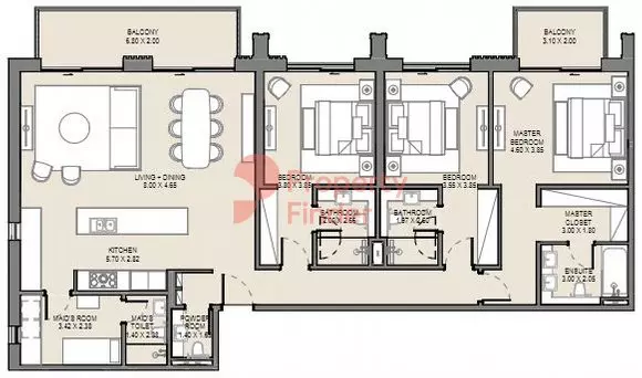
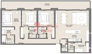
انواع واحد موجود از سازنده

APARTMENT

1 Bedroom

Size: 796 - 1097 sq ft
شروع از ‎درهم ۱٬۰۸۷٬۲۰۷
Available Layouts
Layout Type Size (sqft) Floor Plan
B1-Type B Level 3-4 800.00 View
B1-Type A Level 5 900.00 View
B1-Type A Level 3-4 796.00 View
B1-Type B Level 1 800.00 View
B1-Type B Level 2 878.00 View
B1-Type A Level 1 796.00 View
B1-Type A Level 2 874.00 View
B1-Type A Level Ground 1,097.00 View

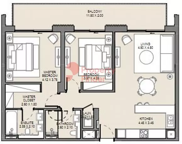
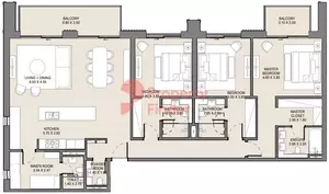
APARTMENT

2 Bedrooms

Size: 1240 - 1600 sq ft
شروع از ‎درهم ۳٬۵۲۸٬۶۰۰
Available Layouts
Layout Type Size (sqft) Floor Plan
B1-Type B Level 2 1,287.00 View
B1-Type B Level 1 1,275.00 View
B1-Type A Level Ground 1,600.00 View
B1-Type B Level Ground 1,580.00 View
B1-Type A Level 1 1,249.00 View
B1-Type A Level 5 1,387.00 View
B1-Type A Level 3-4 1,240.00 View
B1-Type A Level 2 1,353.00 View
B1-Type B Level 3-4 1,274.00 View
B1-Type B Level 5 1,316.00 View

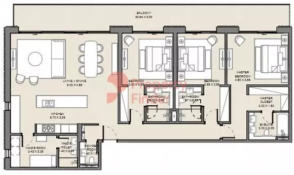
APARTMENT

3 Bedrooms

Size: 2180 - 2752 sq ft
شروع از ‎درهم ۶٬۱۵۰٬۶۹۲
Available Layouts
Layout Type Size (sqft) Floor Plan
B1-Type A Level 1 2,187.00 View
B1-Type B Level Ground 2,752.00 View
B1-Type A Level 3-4 2,180.00 View
B1-Type B Level 2 2,321.00 View
B1-Type B Level 1 2,185.00 View
B1-Type A Level 2 2,324.00 View
B1-Type C Level Ground 2,598.00 View
B1-Type A Level 5 2,409.00 View
B1-Type B Level 3-4 2,187.00 View

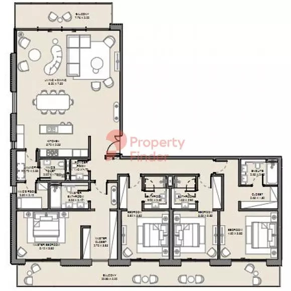
APARTMENT

4 Bedrooms

Size: 3353 sq ft
شروع از ‎درهم ۱۱٬۰۵۸٬۰۰۰
Available Layouts
Layout Type Size (sqft) Floor Plan
B1-Type A Level 5 3,353.00 View

APARTMENT

1 Bedroom

Size: 796 - 1119 sq ft
شروع از ‎درهم ۱٬۰۸۷٬۲۰۷
Available Layouts
Layout Type Size (sqft) Floor Plan
B2-Type A level ground 1,119.00 View
B2-Type B level ground 1,097.00 View
B2-Type A level 1 796.00 View
B2-Type A level 2 884.00 View
B2-Type A level 3-4 796.00 View
B2-Type B level 1 801.00 View
B2-Type B level 2 878.00 View
B2-Type B level 3-4 801.00 View
B2-Type A level 5 900.00 View

APARTMENT

2 Bedrooms

Size: 1249 - 1649 sq ft
شروع از ‎درهم ۳٬۵۲۸٬۶۰۰
Available Layouts
Layout Type Size (sqft) Floor Plan
B2-Type A level 2 1,353.00 View
B2-Type A level 3-4 1,249.00 View
B2-Type B level 5 1,316.00 View
B2-Type A level 5 1,387.00 View
B2-Type A level 1 1,249.00 View
B2-Type B level 2 1,287.00 View
B2-Type B level 3-4 1,274.00 View
B2-Type A level ground 1,600.00 View
B2-Type B level 1 1,275.00 View
B2-Type B level ground 1,649.00 View

APARTMENT

3 Bedrooms

Size: 2185 - 2755 sq ft
شروع از ‎درهم ۶٬۱۵۰٬۶۹۲
Available Layouts
Layout Type Size (sqft) Floor Plan
B2-Type A level 1 2,187.00 View
B2-Type A level 2 2,324.00 View
B2-Type A Level 3-4 2,189.00 View
B2-Type A Level 5 2,409.00 View
B2-Type B level 2 2,321.00 View
B2-Type B Level 3-4 2,187.00 View
B2-Type C level ground 2,599.00 View
B2-Type B level ground 2,755.00 View
B2-Type B level 1 2,185.00 View

APARTMENT

4 Bedrooms

Size: 3353 sq ft
شروع از ‎درهم ۱۱٬۰۵۸٬۰۰۰
Available Layouts
Layout Type Size (sqft) Floor Plan
B2-Type A Level 5 3,353.00 View

APARTMENT

1 Bedroom

Size: 796 - 1055 sq ft
شروع از ‎درهم ۱٬۰۸۷٬۲۰۷
Available Layouts
Layout Type Size (sqft) Floor Plan
B3-Type B Level ground 1,055.00 View
B3-Type A Level 1 796.00 View
B3-Type A Level 2 873.00 View
B3-Type B Level 1 (61) 801.00 View
B3-Type A Level 5 919.00 View
B3-Type B Level 2 881.00 View
B3-Type A Level 3-4 796.00 View
B3-Type B Level 3-4 801.00 View

APARTMENT

2 Bedrooms

Size: 1249 - 1599 sq ft
شروع از ‎درهم ۳٬۵۲۸٬۶۰۰
Available Layouts
Layout Type Size (sqft) Floor Plan
B3-Type A Level ground 1,599.00 View
B3-Type B Level 1 1,278.00 View
B3-Type B Level 2 1,269.00 View
B3-Type A Level 2 1,350.00 View
B3-Type B Level 3-4 1,278.00 View
B3-Type B Level 5 1,343.00 View
B3-Type C Level ground 1,545.00 View
B3-Type A Level 3-4 1,249.00 View
B3-Type A Level 5 1,403.00 View
B3-Type A Level 1 1,249.00 View

APARTMENT

3 Bedrooms

Size: 2184 - 2758 sq ft
شروع از ‎درهم ۶٬۱۵۰٬۶۹۲
Available Layouts
Layout Type Size (sqft) Floor Plan
B3-Type B Level 1 2,184.00 View
B3-Type A Level 3-4 2,187.00 View
B3-Type B Level 3-4 2,184.00 View
B3-Type B Level ground 2,758.00 View
B3-Type A Level 1 2,187.00 View
B3-Type B Level 2 2,343.00 View
B3- Type A Level 2 2,346.00 View
B3-Type A Level 5 2,448.00 View

APARTMENT

4 Bedrooms

Size: 3417 sq ft
شروع از ‎درهم ۱۱٬۰۵۸٬۰۰۰
Available Layouts
Layout Type Size (sqft) Floor Plan
B3-Type A Level 5 3,417.00 View

APARTMENT

1 Bedroom

Size: 796 - 1650 sq ft
شروع از ‎درهم ۲٬۳۴۶٬۱۱۱
Available Layouts
Layout Type Size (sqft) Floor Plan
B3-Type A Level ground 1,098.00 View
B4-Type A Level 1 796.00 View
B4-Type A Level ground 1,118.00 View
B4-Type B Level 1 801.00 View
B4-Type B Level ground 1,096.00 View
B4-Type B Level 2 874.00 View
B4-Type A Level 2 884.00 View
B4-Type B Level ground 1,650.00 View
B4-Type A Level 3-4 796.00 View
B4-Type B Level 3-4 801.00 View
B4-Type A Level 5 919.00 View
B5-Type B Level ground 1,033.00 View
B5-Type A Level ground 1,090.00 View
B5-Type A Level 1 796.00 View
B5-Type B Level 1 801.00 View
B5-Type B Level 2 881.00 View
B5-Type A Level 3-4 796.00 View
B5-Type B Level 3-4 801.00 View
B5-Type A Level 5 919.00 View
B5-Type A Level 2 873.00 View
B6-Type B Level ground 1,095.00 View
B6-Type B Level 1 801.00 View
B6-Type A Level 1 796.00 View
B6-Type A Level 2 873.00 View
B6-Type B Level 2 881.00 View
B6-Type B Level 3-4 801.00 View
B6-Type A Level 5 919.00 View
B6-Type A Level ground 1,080.00 View
B6-Type A Level 3-4 801.00 View
B7-Type B Level ground 1,069.00 View
B7-Type A Level 3-4 798.00 View
B7-Type A Level 5 885.00 View
B7-Type A Level 2 874.00 View
B7-Type B Level 3-4 801.00 View
B7-Type A Level 1 798.00 View
B7-Type A Level ground 1,066.00 View
B7-Type B Level 1 801.00 View
B7-Type B Level 2 800.00 View
B8-Type A Level ground 1,083.00 View
B8-Type A Level 1 796.00 View
B8-Type B Level 3-4 801.00 View
B8-Type B Level ground 1,094.00 View
B8-Type B Level 2 878.00 View
B8-Type B Level 1 801.00 View
B8-Type A Level 2 884.00 View
B8-Type A Level 5 885.00 View
B8-Type A Level 3-4 799.00 View
B5-Type A Level ground 1,090.00 View

APARTMENT

2 Bedrooms

Size: 1249 - 1613 sq ft
شروع از ‎درهم ۳٬۶۸۱٬۲۷۲
Available Layouts
Layout Type Size (sqft) Floor Plan
B4-Type A Level 2 1,350.00 View
B4-Type A Level 5 1,403.00 View
B4-Type B Level 5 1,343.00 View
B4-Type A Level 3-4 1,249.00 View
B4-Type B Level 3-4 1,278.00 View
B4-Type B Level 2 1,269.00 View
B4-Type A Level 1 1,249.00 View
B4-Type B Level 1 1,278.00 View
B4-Type A Level ground 1,600.00 View
B5-Type A Level 2 1,350.00 View
B5-Type A Level 5 1,403.00 View
B5-Type B Level 5 1,343.00 View
B5-Type A Level 3-4 1,249.00 View
B5-Type B Level 3-4 1,278.00 View
B5-Type A Level 1 1,249.00 View
B5-Type B Level 2 1,269.00 View
B5-Type B Level 1 1,278.00 View
B5-Type A Level ground 1,597.00 View
B5-Type B Level ground 1,613.00 View
B6-Type B Level 5 1,343.00 View
B6-Type A Level 5 1,403.00 View
B6-Type A Level 2 1,350.00 View
B6-Type B Level 2 1,269.00 View
B6-Type B Level 1 1,278.00 View
B6-Type A Level ground 1,599.00 View
B6-Type B Level ground 1,599.00 View
B6-Type A Level 1 1,249.00 View
B6-Type A Level 3-4 1,249.00 View
B6-Type B Level 3-4 1,278.00 View
B7-Type A Level 2 1,353.00 View
B7-Type B Level 1 1,275.00 View
B7-Type A Level 5 1,387.00 View
B7-Type B Level ground 1,535.00 View
B7-Type B Level 5 1,316.00 View
B7-Type A Level 3-4 1,249.00 View
B7-Type B Level 3-4 1,274.00 View
B8-Type B Level 1 1,275.00 View
B7-Type B Level 2 1,287.00 View
B7-Type A Level 1 1,249.00 View
B8-Type A Level 3-4 1,249.00 View
B8-Type B Level 5 1,316.00 View
B8-Type B Level ground 1,599.00 View
B8-Type A | Level 5 1,386.00 View
B8-Type A Level 2 1,353.00 View
B8-Type B Level 3-4 1,274.00 View
B8-Type B Level 2 1,287.00 View
B8-Type A Level 1 1,249.00 View
B8-Type A Level ground 1,600.00 View
B7-Type A Level ground 1,607.00 View

APARTMENT

3 Bedrooms

Size: 2178 - 2766 sq ft
شروع از ‎درهم ۶٬۴۱۹٬۳۸۴
Available Layouts
Layout Type Size (sqft) Floor Plan
B4-Type A Level 3-4 2,187.00 View
B4-Type A Level 2 2,346.00 View
B4-Type B Level 1 2,185.00 View
B4-Type B Level ground 2,600.00 View
B4-Type C Level ground 2,600.00 View
B4-Type B Level ground 2,754.00 View
B4-Type A Level 1 2,187.00 View
B4-Type A Level 5 2,248.00 View
B5-Type B Level 2 2,344.00 View
B4-Type B Level 2 2,344.00 View
B4-Type B Level 3-4 2,185.00 View
B5-Type A Level Ground 2,591.00 View
B5-Type B Level Ground 2,753.00 View
B5-Type B Level 1 2,185.00 View
B5-Type A Level 3-4 2,178.00 View
B5-Type A Level 5 2,448.00 View
B5-Type A Level 1 2,187.00 View
B5-Type A Level 5 2,448.00 View
B5-Type A Level 2 2,346.00 View
B5-Type B Level 3-4 2,185.00 View
B6-Type C Level ground 2,600.00 View
B6-Type B Level ground 2,755.00 View
B6-Type A Level 2 2,346.00 View
B6-Type B Level 2 2,344.00 View
B6-Type A Level 3-4 2,187.00 View
B6-Type B Level 3-4 2,185.00 View
B6-Type A Level 5 2,448.00 View
B6-Type A Level 1 2,187.00 View
B7-Type B Level 2 2,321.00 View
B7-Type B Level 1 2,185.00 View
B7-Type A Level 1 2,187.00 View
B7-Type B Level 3-4 2,187.00 View
B7-Type A Level 3-4 2,189.00 View
B7-Type B Level Ground 2,766.00 View
B8-Type B Level 2 2,320.00 View
B8-Type A Level 1 2,187.00 View
B8-Type B Level 1 2,184.00 View
B8-Type A Level 2 2,323.00 View
B8-Type A Level 3-4 2,189.00 View
B8-Type B Level 3-4 2,186.00 View
B8-Type C Level G 2,600.00 View
B7-Type A Level 2 2,321.00 View
B7-Type C Level ground 2,611.00 View
B8-Type B Level ground 2,755.00 View
B6-Type B Level 1 2,185.00 View

APARTMENT

4 Bedrooms

Size: 2409 - 3417 sq ft
شروع از ‎درهم ۷٬۱۰۰٬۲۲۷
Available Layouts
Layout Type Size (sqft) Floor Plan
B4-Type A Level 5 3,417.00 View
B5-Type A Level 5 3,417.00 View
B6-Type A Level 5 3,417.00 View
B7-Type A Level 5 2,409.00 View
B8-Type A Level 5 3,352.00 View

Standard

down payment
20%
20%
during construction
50%
50%
handover
30%
30%

ماشین حساب پرداخت ماهانه

5% 15% 25% 35% 50%
20% AED 0
میانگین فعلی امارات: ۳.۵٪ - ۶.۵٪
پرداخت ماهانه
AED 0
اصل + بهره
مبلغ وام
AED 0
کل بهره
AED 0
کل پرداخت
AED 0

📋 توجه:

این فقط یک تخمین است. نرخ‌ها و شرایط واقعی ممکن است بر اساس پروفایل اعتباری، سیاست‌های بانکی و شرایط فعلی بازار متفاوت باشد. هزینه‌های اضافی مانند بیمه، هزینه ثبت و کارمزد بانکی شامل نمی‌شود.

جومانا، طرح جامع ام سقیم جومانا توسط مراس هولدینگ، یک افزودنی خیره کننده جدید به مدینه جمیرا لیوینگ، یک جامعه مورد توجه در قلب دبی است. جومانا که در یک محله معتبر واقع شده است، مناظر استثنایی، فضاهای سبز و نزدیکی به جاذبه های برتر را به ساکنان ارائه می دهد و یک سبک زندگی غنی را تضمین می کند. این توسعه بر حس اجتماع تأکید دارد، با امکانات درجه یک مانند مراکز تناسب اندام، استخرهای شنا و مراکز مراقبت روزانه. ساکنان همچنین از طریق یک پل عابر پیاده دارای تهویه مطبوع به استراحتگاه مدینه جمیرا متصل هستند. جومانا یک تجربه زندگی استثنایی با دسترسی آسان به زندگی پر جنب و جوش دبی را فراهم می کند. ویژگی های کلیدی موقعیت مکانی • 15 دقیقه تا استراحتگاه مدینه جمیرا • 5 دقیقه تا امارات مال • 10 دقیقه تا مرکز شهر دبی امکانات رفاهی • استخرهای شنا • مراکز تناسب اندام • پارک ها و فضاهای سبز • مراکز مراقبت روزانه

موقعیت مکانی

Jomana , Madinat Jumeirah Living

تاریخ تحویل جومانا چه زمانی است؟

تاریخ تحویل در آوریل 2026 است.

برنامه پرداخت جومانا چیست؟

برنامه پرداخت جومانا به شرح زیر است: 5% پیش پرداخت در زمان شروع فروش 35% در طول ساخت و ساز 60% در زمان تحویل این برنامه پرداخت به گونه ای طراحی شده است که با نقاط عطف کلیدی پروژه همسو باشد و در عین حال پیشرفت به موقع را تضمین کند.

آیا جومانا سرمایه گذاری خوبی است؟

جومانا یک سرمایه گذاری قوی است که زندگی لوکس را در ام سقیم در جامعه معتبر مدینه جمیرا ارائه می دهد. به دلیل امکانات مدرن و موقعیت مکانی عالی در نزدیکی جاذبه های کلیدی، برای بازدهی بالا موقعیت خوبی دارد.

قیمت اولیه جومانا چقدر است؟

قیمت اولیه جومانا 2,400,000 درهم امارات است.

مالک جومانا کیست؟

جومانا توسط مراس هولدینگ، یک توسعه دهنده املاک و مستغلات مشهور در دبی، که به دلیل پروژه های مسکونی استثنایی خود شناخته شده است، توسعه یافته است.

قیمت عرضه

‎درهم ۲٬۳۴۶٬۱۱۱

*قیمت‌ها ممکن است متفاوت باشند

اطلاعات کلیدی

تحویل 2026-04-30
انواع ملک apartment
وضعیت در حال ساخت

سازنده

به این پروژه علاقه‌مند هستید؟

برای جزئیات بیشتر، قیمت و موجودی با سازنده تماس بگیرید.