ال وی آی واترساید

LIV Waterside, Dubai Marina

درباره این پروژه

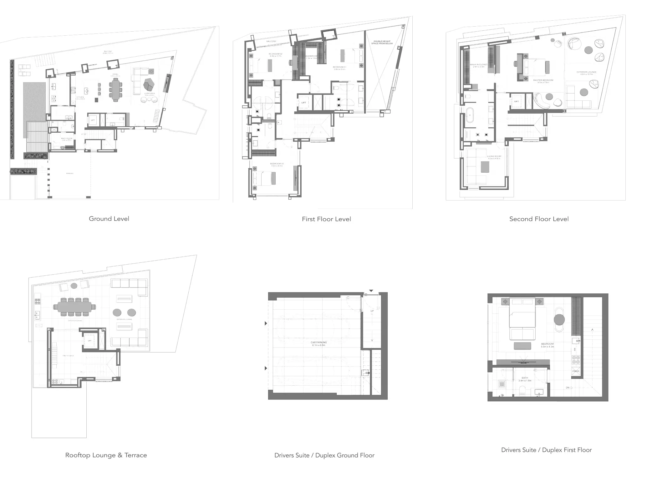
ال وی آی واترساید دبی مارینا توسط شرکت توسعه‌دهندگان ال وی آی، مظهر زندگی در کنار آب را با آپارتمان‌های ۱، ۲ و ۳ خوابه، پنت‌هاوس‌های دوبلکس، ویلاهای ساحلی منحصربه‌فرد، عمارت محدود و خانه‌های شهری ساحلی ارائه می‌دهد. این نما که در یکی از قطعه‌های ساحلی منحصربه‌فرد واقع شده است، دارای خانه‌هایی با طراحی معاصر با مناظر خیره‌کننده و نور طبیعی فراوان است. این اقامتگاه فوق‌العاده مدرنیته را با محیط طبیعی ترکیب می‌کند و زندگی هدفمندی فراتر از تصور ارائه می‌دهد. این پروژه که در قلب دبی مارینا واقع شده است، از موقعیت ممتازی برخوردار است که لوکس بودن شهری را تعریف می‌کند. این پروژه انحصاری که توسط آب‌های درخشان مارینا احاطه شده است، مناظر بی‌نظیری از خط افق نمادین دبی را به ساکنان ارائه می‌دهد. این موقعیت استراتژیک دسترسی آسان به صحنه‌های اجتماعی پر جنب و جوش شهر، مقاصد خرید و غذاخوری‌های در سطح جهانی را تضمین می‌کند. این نما از طبقات ۰۲ تا ۲۴، طیف وسیعی از آپارتمان‌ها را ارائه می‌دهد و مناظر خیره‌کننده‌ای از دبی مارینا را در اختیار ساکنان قرار می‌دهد. برای کسانی که به دنبال اوج تجمل هستند، پنت‌هاوس‌های دوبلکس در طبقات ۲۵ و ۲۶ دارای یک باغ آسمانی خصوصی با مناظر پانوراما از مارینا و دریا هستند. در حالی که سه نوع خانه شهری را معرفی می‌کند که هر کدام دارای طبقات همکف و فوقانی، ورودی‌های خصوصی و روکش‌های لوکس هستند. این خانه‌های شهری با ارائه مناظر کامل از مارینا، ترکیبی منحصر به فرد از آسایش و پیچیدگی را ارائه می‌دهند. ویلاهای ساحلی منحصربه‌فرد در طبقه همکف، تجمل را دوباره تعریف می‌کنند. هر ویلا با مناظر پانورامای کامل از مارینا، سالن‌های روی پشت بام، سالن‌های ورزشی و تراس‌ها، یک پناهگاه خصوصی است. ورودی‌های دروازه‌دار و پارکینگ با باغ‌های خصوصی این تصویر را کامل می‌کنند و ویلاهای منتخب دارای استخر خصوصی و سقف‌های دو ارتفاع هستند. عمارت به عنوان تنها نمونه از نوع خود در دبی مارینا، در میان همه برجسته است. این اقامتگاه با ساختار همکف به اضافه دو و تراس روی پشت بام، دارای استخر و باغ‌های خصوصی، اتاق زیر شیروانی جداگانه برای راننده و گاراژ نمایشی مطبوع با شش فضای پارک است. این پروژه دارای یک لابی بزرگ با ارتفاع دو برابر است که به خودی خود یک بیانیه است، با خدمات امنیتی ۲۴ ساعته و دربان. ساکنان که در سه طبقه گسترده شده‌اند، از امکاناتی مانند ایستگاه‌های شارژ وسایل نقلیه الکتریکی، وای فای رایگان، باغ‌های روباز، کافه، بیلیارد، گلف مجازی و موارد دیگر لذت می‌برند. این نما از خلوتگاه بخار و سونا گرفته تا غار نمکی، استخر غوطه وری سرد، استخرهای روباز با کابانا و سالن غذاخوری در فضای باز، یک سبک زندگی تفریحی بی‌نظیر را ارائه می‌دهد. نکات کلیدی: • طیف گسترده‌ای از آپارتمان‌های ۱، ۲ و ۳ خوابه، پنت‌هاوس‌های دوبلکس، ویلاهای ساحلی منحصربه‌فرد، عمارت تک محدود و خانه‌های شهری ساحلی منحصربه‌فرد. • واقع در قلب دبی مارینا، موقعیت مرکزی و معتبر دسترسی بی‌نظیری را به شهر برای ساکنان فراهم می‌کند. • عمارت به عنوان یک شگفتی بی‌نظیر، دارای یک ورودی دروازه‌دار خصوصی، استخر، باغ‌ها و ۱۰۰۰۰ فوت مربع تجمل خالص است. • از مناظر خیره‌کننده مارینا و دریا از پنت‌هاوس‌های دوبلکس، دارای باغ‌های آسمانی خصوصی در دو طبقه بالا لذت ببرید. • خود را در تجمل غرق کنید با ۵ نوع ویلا که مناظر پانورامای کامل از مارینا، آسانسورهای خصوصی، سالن‌های روی پشت بام، سالن‌های ورزشی و تراس‌ها را ارائه می‌دهند. • یک استراحتگاه خصوصی با یک قطعه ساحلی وسیع، که فضایی منحصر به فرد و آرام را در قلب دبی مارینا فراهم می‌کند. • با استخر روباز، کابانا کنار استخر، استخر اختصاصی کودکان و سالن غذاخوری جذاب در فضای باز، در اوقات فراغت در فضای باز غرق شوید. • ساکنان از زندگی مدرن با امکاناتی مانند ایستگاه‌های شارژ وسایل نقلیه الکتریکی، آسانسورهای اختصاصی برای سطوح امکانات و وای فای رایگان در فضاهای رفاهی مسکونی لذت می‌برند.

وضعیت ساخت

مرحله
تکمیل شده

جزئیات پروژه

  • نوع: apartment, duplex, penthouse, townhouse, villa
  • تاریخ تکمیل: 2025-09-01

امکانات

Gymnasium
Yoga room
Infinity Pool
Children's Play Area
Shared Spa
Retail Facilities
Security
Shared Pool
Restaurants
Tennis Courts

جدول زمانی پروژه

  • Construction Started: 21/04/2024
  • Expected Completion: 01/09/2025

ویدیوهای پروژه

انواع واحد موجود از سازنده

APARTMENT

1 Bedroom

Size: 755 - 1029 sq ft
شروع از ‎درهم ۲٬۳۰۰٬۰۰۰
Available Layouts
Layout Type Size (sqft) Floor Plan
Type 203 811.00 View
Type 205 1,020.00 View
Type 06 834.00 View
Type 03 815.00 View
Type 02 766.00 View
Type 03 755.00 View
Type 04 757.00 View
Type 05 918.00 View
Type 03 757.00 View
Type 04 759.00 View
Type 06 1,015.00 View
Type 07 825.00 View
Type 05 917.00 View
Type 06 1,029.00 View
Type 07 828.00 View
Type 06 834.00 View
Type 06 835.00 View
Type 02 805.00 View
Type 202 803.00 View
Type 02 808.00 View
Type 02 768.00 View
Type 206 829.00 View

APARTMENT

2 Bedrooms

Size: 1180 - 1243 sq ft
شروع از ‎درهم ۲٬۳۰۰٬۰۰۰
Available Layouts
Layout Type Size (sqft) Floor Plan
Type 201 1,236.00 View
Type 05 1,192.00 View
Type 01 1,229.00 View
Type 01 1,236.00 View
Type 01 1,241.00 View
Type 05 1,180.00 View
Type 01 1,243.00 View

APARTMENT

3 Bedrooms

Size: 1710 - 1734 sq ft
شروع از ‎درهم ۲٬۳۰۰٬۰۰۰
Available Layouts
Layout Type Size (sqft) Floor Plan
Type 204 1,710.00 View
Type 04 1,734.00 View

DUPLEX

2 Bedrooms

شروع از ‎درهم ۲٬۳۰۰٬۰۰۰
Available Layouts
Layout Type Size (sqft) Floor Plan
Type A - -

DUPLEX

3 Bedrooms

شروع از ‎درهم ۲٬۳۰۰٬۰۰۰
Available Layouts
Layout Type Size (sqft) Floor Plan
Type A - -

PENTHOUSE

3 Bedrooms

شروع از ‎درهم ۲٬۳۰۰٬۰۰۰
Available Layouts
Layout Type Size (sqft) Floor Plan
Type 01 Duplex - View
Type 02 Duplex - View

TOWNHOUSE

2 Bedrooms

Size: 3606 sq ft
شروع از ‎درهم ۱۱٬۶۹۹٬۵۴۸
Available Layouts
Layout Type Size (sqft) Floor Plan
Type A 3,606.00 View

VILLA

4 Bedrooms

Size: 6477 - 10169 sq ft
شروع از ‎درهم ۲۵٬۹۹۹٬۵۴۸
Available Layouts
Layout Type Size (sqft) Floor Plan
Type A 6,477.00 View
Type B 10,169.00 View
Type A 6,477.00 View
Type B 10,169.00 View

Standard

down payment
10%
10%
during construction
30%
30%
handover
60%
60%

ماشین حساب پرداخت ماهانه

5% 15% 25% 35% 50%
20% AED 0
میانگین فعلی امارات: ۳.۵٪ - ۶.۵٪
پرداخت ماهانه
AED 0
اصل + بهره
مبلغ وام
AED 0
کل بهره
AED 0
کل پرداخت
AED 0

📋 توجه:

این فقط یک تخمین است. نرخ‌ها و شرایط واقعی ممکن است بر اساس پروفایل اعتباری، سیاست‌های بانکی و شرایط فعلی بازار متفاوت باشد. هزینه‌های اضافی مانند بیمه، هزینه ثبت و کارمزد بانکی شامل نمی‌شود.

بررسی اجمالی طرح جامع ال وی آی واترساید دبی مارینا ال وی آی واترساید دبی مارینا توسط شرکت توسعه‌دهندگان ال وی آی یک پروژه ساحلی لوکس است که آپارتمان‌های ۱، ۲ و ۳ خوابه، پنت‌هاوس‌های دوبلکس، ویلاهای منحصربه‌فرد و خانه‌های شهری را ارائه می‌دهد. این طرح جامع انحصاری ال وی آی واترساید دبی مارینا که در قلب دبی مارینا واقع شده است، طراحی مدرن را با مناظر خیره‌کننده مارینا ترکیب می‌کند و سبک زندگی‌ای از ظرافت و آرامش را ارائه می‌دهد. ال وی آی واترساید از موقعیت معتبری در دبی مارینا برخوردار است که توسط صحنه‌های اجتماعی پر جنب و جوش شهر احاطه شده است و به مراکز خرید و غذاخوری‌های مجلل نزدیک است. جاذبه‌های کلیدی نزدیک عبارتند از: ویژگی‌های کلیدی • ۰۵ دقیقه – پالم جمیرا • ۰۷ دقیقه – مرکز خرید امارات • ۱۰ دقیقه – مرکز خرید دبی هیلز • ۱۸ دقیقه – مرکز مالی بین‌المللی دبی (DIFC) امکانات رفاهی • ویلاهای ساحلی منحصربه‌فرد • پنت‌هاوس‌های دوبلکس • استخر بی‌نهایت • استخر مخصوص کودکان • بخار و سونا • استودیو یوگا و سالن ورزشی سرپوشیده • باربیکیو و منطقه غذاخوری، باغ‌های مسکونی • سینمای روباز و زمین گلف

موقعیت مکانی

LIV Waterside , Dubai Marina

برنامه پرداخت ال وی آی واترساید چیست؟

برنامه پرداخت ال وی آی واترساید به شرح زیر ساختار یافته است: • ۱۰٪ پیش پرداخت در زمان شروع فروش • ۳۰٪ در طول ساخت و ساز • ۶۰٪ پس از تحویل

قیمت اولیه ال وی آی واترساید چقدر است؟

قیمت اولیه ال وی آی واترساید ۲.۳ میلیون درهم است.

آیا ال وی آی واترساید سرمایه‌گذاری خوبی است؟

ال وی آی واترساید در دبی مارینا یک فرصت سرمایه‌گذاری استثنایی است که ترکیبی از زندگی لوکس و موقعیت استراتژیک را ارائه می‌دهد. این پروژه دارای طیف گسترده‌ای از املاک، از جمله آپارتمان‌های ۱، ۲ و ۳ خوابه، پنت‌هاوس‌های دوبلکس، ویلاهای ساحلی منحصربه‌فرد، خانه‌های شهری و یک عمارت است که هر کدام دارای مناظر خیره‌کننده‌ای از مارینا و خط افق دبی هستند. موقعیت عالی آن در دبی مارینا دسترسی آسان به صحنه‌های اجتماعی پر جنب و جوش شهر، مقاصد خرید و غذاخوری‌های در سطح جهانی را تضمین می‌کند. این پروژه با مناظر بی‌نظیر، طراحی معاصر و فضاهای نشیمن وسیع خود متمایز است. عمارت یک پیشنهاد منحصر به فرد است که باغ‌های خصوصی، استخر و گاراژ نمایشی را ارائه می‌دهد که جذابیت پروژه را بیشتر می‌کند. علاوه بر این، ویلاهای ساحلی، پنت‌هاوس‌های دوبلکس و خانه‌های شهری برای کسانی طراحی شده‌اند که به دنبال اوج زندگی لوکس هستند.

مالک ال وی آی واترساید کیست؟

ال وی آی واترساید متعلق به شرکت خدمات املاک ال وی آی است، یک توسعه‌دهنده املاک و مستغلات برجسته که به دلیل ایجاد پروژه‌های مسکونی سطح بالا در موقعیت‌های عالی، ارائه فضاهای زندگی لوکس با طرح‌های استثنایی شناخته شده است.

تاریخ تحویل ال وی آی واترساید چه زمانی است؟

تحویل ال وی آی واترساید برای سپتامبر ۲۰۲۵ برنامه ریزی شده است. این پروژه نوید یک سبک زندگی لوکس در کنار آب در دبی مارینا را می‌دهد و طیف وسیعی از اقامتگاه‌های ممتاز را ارائه می‌دهد.

قیمت عرضه

‎درهم ۲٬۳۰۰٬۰۰۰

*قیمت‌ها ممکن است متفاوت باشند

اطلاعات کلیدی

تحویل 2025-09-01
انواع ملک apartment, duplex, penthouse, townhouse, villa
وضعیت تکمیل شده

به این پروژه علاقه‌مند هستید؟

برای جزئیات بیشتر، قیمت و موجودی با سازنده تماس بگیرید.