استامن یونی

Stamn Yuni, Al Satwa

درباره این پروژه

این پروژه که برای متخصصان جوان، زوج‌ها و سرمایه‌گذاران طراحی شده است، تلفیقی از تجملات معاصر با فناوری هوشمند پیشرفته است. استامن یونی با ارائه 88 واحد—33 استودیو و 55 آپارتمان یک خوابه—با سیستم‌های خانه هوشمند، طراحی زیبا و چیدمان کاربردی، تعریف جدیدی از زندگی شهری ارائه می‌دهد. با موقعیت مکانی استراتژیک و تاریخ تکمیل هدفمند در سه ماهه اول سال 2027، این پروژه به عنوان یک سرمایه‌گذاری آینده‌نگر و مقصد سبک زندگی برجسته می‌شود. موقعیت مکانی عالی موقعیت مکانی استامن یونی در جمیرا گاردن سیتی، ساکنان را در قلب فعالیت‌های دبی با اتصال عالی قرار می‌دهد: • فقط چند دقیقه تا مرکز شهر دبی، بیزینس بی و مرکز مالی بین‌المللی دبی (DIFC) • 15 دقیقه رانندگی تا فرودگاه بین‌المللی دبی • 10 دقیقه دسترسی به ساحل لا مر و باکس پارک • دسترسی مستقیم به جاده شیخ زاید و مسیرهای حمل و نقل عمومی • نزدیکی به سیتی واک، دبی مال و مکان‌های دیدنی فرهنگی مهم مانند موزه‌های دبی و اتحاد امکانات رفاهی • مرکز تناسب اندام کاملاً مجهز • استخر شنا با دمای کنترل شده • باغ‌های محوطه‌سازی شده و مسیرهای پیاده‌روی • منطقه بازی کودکان • سالن استراحت ساکنین • فضاهای کار اشتراکی • خدمات دربان 24 ساعته • پارکینگ امن نوع واحد آپارتمان‌های استودیو • شروع قیمت از 825,000 درهم • شامل فناوری خانه هوشمند • چیدمان‌های جمع و جور و کارآمد • ایده‌آل برای متخصصان یا سرمایه‌گذاری اجاره کوتاه مدت آپارتمان‌های 1 خوابه • قیمت در صورت درخواست • فضاهای داخلی بزرگ با اتاق خواب و نشیمن اختصاصی • پنجره‌های سرتاسری و بالکن با منظره • پرداخت‌های ممتاز، آشپزخانه‌های سفارشی و فضای ذخیره‌سازی کافی هر دو نوع واحد امکان دسترسی به تمام امکانات رفاهی جامعه را فراهم می‌کنند و با مواد باکیفیت مانند چوب، سنگ مرمر و فلز طراحی شده‌اند که بر راحتی و مدرنیته تأکید دارند. تاریخ تحویل • تاریخ تکمیل مورد انتظار برای استامن یونی 18 مارس 2027 است. قیمت شروع • قیمت شروع برای آپارتمان‌های استودیو 825,000 درهم است. استامن یونی چیزی فراتر از یک مکان برای زندگی است—این یک سرمایه‌گذاری هوشمندانه در سبک زندگی در یکی از امیدوارکننده‌ترین مناطق دبی است. با تلفیق یکپارچه موقعیت مکانی، معماری و ویژگی‌های هوشمند، این پروژه فرصتی ایده‌آل برای خریداران خانه و سرمایه‌گذارانی است که به دنبال ارزش بلندمدت و زندگی شهری لوکس هستند. استامن یونی که در یک منطقه با سرعت در حال توسعه قرار دارد و توسط سازنده‌ای شناخته شده برای تحویل به موقع و کیفیت پشتیبانی می‌شود، قرار است به یک نقطه عطف در چشم‌انداز مسکونی دبی تبدیل شود.

وضعیت ساخت

مرحله
در حال ساخت
پیشرفت
0%

جزئیات پروژه

  • نوع: apartment
  • تاریخ عرضه: 2025-07-01
  • تاریخ تکمیل: 2027-03-18

امکانات

Restaurants
Indoor Swimming Pool
Children's Play Area
Gymnasium
Landscaped Gardens
CCTV Security

جدول زمانی پروژه

  • Booking started: 01/07/2025
  • Construction Started: 02/07/2025
  • Expected Completion : 18/03/2027

انواع واحد موجود از سازنده

APARTMENT

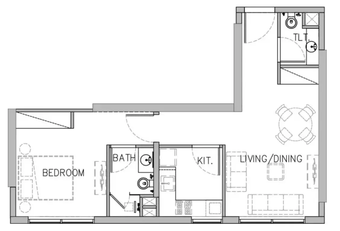
Studio

Size: 312 - 317 sq ft
شروع از ‎درهم ۸۲۵٬۰۰۰
Available Layouts
Layout Type Size (sqft) Floor Plan
Type B 317.00 View
Type A 312.00 View

APARTMENT

1 Bedroom

Size: 430 - 960 sq ft
شروع از ‎درهم ۱٬۳۱۰٬۰۰۰
Available Layouts
Layout Type Size (sqft) Floor Plan
Type D 840.00 View
Type K 839.00 View
Type C 641.00 View
Type B 615.00 View
Type E 954.00 View
Type F 790.00 View
Type J 814.00 View
Type G 738.00 View
Type I 960.00 View
Type H 692.00 View
Type A 430.00 View
Type B 616.00 View

Standard

down payment
10%
10%
during construction
40%
40%
after handover
50%
50%

ماشین حساب پرداخت ماهانه

5% 15% 25% 35% 50%
20% AED 0
میانگین فعلی امارات: ۳.۵٪ - ۶.۵٪
پرداخت ماهانه
AED 0
اصل + بهره
مبلغ وام
AED 0
کل بهره
AED 0
کل پرداخت
AED 0

📋 توجه:

این فقط یک تخمین است. نرخ‌ها و شرایط واقعی ممکن است بر اساس پروفایل اعتباری، سیاست‌های بانکی و شرایط فعلی بازار متفاوت باشد. هزینه‌های اضافی مانند بیمه، هزینه ثبت و کارمزد بانکی شامل نمی‌شود.

طرح جامع استامن یونی یک توسعه مسکونی آینده‌نگر توسط یک سازنده مورد اعتماد است که در طرح جامع پویای جمیرا گاردن سیتی قرار دارد. این طرح که برای متخصصان و سرمایه‌گذاران طراحی شده است، دارای 88 واحد مدرن—33 استودیو و 55 آپارتمان یک خوابه—است که فناوری خانه هوشمند، معماری شیک و پرداخت‌های با کیفیت را ادغام می‌کند. طرح جامع استامن یونی با موقعیت مکانی عالی و تکمیل مورد انتظار در سه ماهه اول سال 2027، زندگی شهری آماده برای آینده را با پتانسیل سرمایه‌گذاری قوی ارائه می‌دهد. ویژگی‌های کلیدی موقعیت مکانی و جاذبه‌های گردشگری نزدیک: • 10 دقیقه تا موزه آینده • 10 دقیقه تا مرکز تجارت جهانی دبی • 8 دقیقه تا مرکز مالی بین‌المللی دبی (DIFC) • 7 دقیقه تا سیتی واک • 10 دقیقه تا برج خلیفه • 10 دقیقه تا دبی مال • 10 دقیقه تا ساحل لا مر امکانات رفاهی: • استخر روباز • سالن ورزشی کاملاً مجهز • فضای استراحت برای ساکنان • منطقه بازی کودکان • فضاهای کار اشتراکی • زمین ورزشی • دوربین مداربسته و دربان 24 ساعته • استخر شنا مشترک • پارکینگ امن

موقعیت مکانی

Stamn Yuni , Al Satwa

برنامه پرداخت استامن یونی چیست؟

برنامه پرداخت پروژه استامن یونی به شرح زیر است: • 10%: پیش پرداخت در زمان شروع فروش • 40%: پرداخت در طول ساخت و ساز • 50%: پرداخت پس از تحویل ملک

آیا استامن یونی سرمایه‌گذاری خوبی است؟

آیا استامن یونی سرمایه‌گذاری خوبی است؟ بله، استامن یونی یک فرصت سرمایه‌گذاری قوی را ارائه می‌دهد. این پروژه که در جمیرا گاردن سیتی، یکی از مرکزی‌ترین و فعال‌ترین مناطق در حال توسعه دبی واقع شده است، دسترسی آسانی به مراکز تجاری اصلی مانند مرکز شهر دبی، مرکز مالی بین‌المللی دبی (DIFC) و بیزینس بی ارائه می‌دهد. این توسعه دارای 88 ملک مدرن، از جمله 33 استودیو و 55 آپارتمان یک خوابه است که همگی مجهز به سیستم‌های خانه هوشمند برای راحتی بیشتر هستند. با نزدیکی به پیوندهای حمل و نقل کلیدی، از جمله جاده شیخ زاید و فرودگاه بین‌المللی دبی، و همچنین مکان‌های تفریحی مانند ساحل لا مر و دبی مارینا، این موقعیت مکانی ارزش قابل توجهی را اضافه می‌کند. طراحی معماری استامن یونی مینیمالیسم مدرن را با عناصر عربی ترکیب می‌کند و زیبایی‌شناسی جذابی ایجاد می‌کند. فضاهای داخلی سطح بالا، با پرداخت‌های چوب طبیعی، سنگ مرمر و فلز، به مطلوبیت آن می‌افزاید. علاوه بر این، ساکنان از دسترسی آسان به مدارس دولتی، مراکز خرید، کافه‌ها و امکانات تفریحی بهره‌مند می‌شوند. استامن یونی با ترکیبی از راحتی، تجمل و پتانسیل رشد، یک پیشنهاد جذاب برای سرمایه‌گذاران ارائه می‌دهد.

استامن یونی کجا واقع شده است؟

استامن یونی در دبی، السطوه، جمیرا گاردن سیتی، یک منطقه مرکزی و با سرعت در حال توسعه شهر واقع شده است.

آیا استامن یونی مالکیت آزاد است یا اجاره‌ای؟

استامن یونی یک ملک مالکیت آزاد است که امکان مالکیت کامل را برای خریداران محلی و بین‌المللی فراهم می‌کند.

مالک استامن یونی کیست؟

مالک استامن یونی، شرکت توسعه املاک استامن است، یک شرکت برجسته متخصص در پروژه‌های مسکونی و تجاری با کیفیت بالا در بازار پویای املاک و مستغلات دبی.

گزینه‌های مسکن استامن یونی چیست؟

استامن یونی دو گزینه مسکن ارائه می‌دهد: استودیو و آپارتمان‌های 1 خوابه. • استودیوها: مساحت این واحدها از 312 تا 312 فوت مربع متغیر است و قیمت‌ها از 825,000 درهم شروع می‌شود. • آپارتمان‌های 1 خوابه: مساحت این واحدها از 430 تا 616 فوت مربع متغیر است و قیمت‌ها از 1.3 میلیون درهم شروع می‌شود. هر دو گزینه یک تجربه زندگی مدرن را ارائه می‌دهند که مجهز به سیستم‌های خانه هوشمند و پرداخت‌های ممتاز است و آنها را برای افراد و خانواده‌های کوچک که به دنبال فضای زندگی با کیفیت در یک مکان مرکزی هستند، ایده‌آل می‌کند.

قیمت شروع استامن یونی چقدر است؟

قیمت شروع استامن یونی 825,000 درهم است.

تاریخ تحویل استامن یونی چه زمانی است؟

تاریخ تحویل استامن یونی برای مارس 2027 تعیین شده است. این جدول زمانی تضمین می‌کند که این توسعه تا آن تاریخ تکمیل و برای ساکنان آماده خواهد بود.

قیمت عرضه

‎درهم ۸۲۵٬۰۰۰

*قیمت‌ها ممکن است متفاوت باشند

اطلاعات کلیدی

تحویل 2027-03-18
انواع ملک apartment
وضعیت در حال ساخت

به این پروژه علاقه‌مند هستید؟

برای جزئیات بیشتر، قیمت و موجودی با سازنده تماس بگیرید.