کرست بای سوبها

The Crest, Sobha Hartland

درباره این پروژه

سوبها ریلیتی، کرست را ساخته است، جاذبه‌ای تماشایی در کنار آب در قلب سوبها هارتلند. این موقعیت استراتژیک دسترسی آسان به نقاط دیدنی محبوب، جاده‌های اصلی، مراکز تجاری و مناطق خرید را برای صاحبان خانه فراهم می‌کند. در اینجا، شما می‌توانید با سبکی راحت و لوکس زندگی کنید، در حالی که تمام نیازهای شما تنها چند دقیقه فاصله دارد. موقعیت مکانی عالی کرست کرست با خانه‌های رو به تالاب کریستالی به سبک کارائیبی خود متمایز است. این آپارتمان‌های ممتاز یک، دو و سه خوابه برای ایجاد فضایی آرام و دلنشین طراحی شده‌اند. ویژگی‌های کلیدی عبارتند از: • باغ‌های آسمانی متصل داخلی: باغ‌های آسمانی زیبا و متصل به شما امکان می‌دهند تا سبکی آرام و دلنشین را تجربه کنید. • سبک زندگی کنار آب: با خانه‌هایی در کنار تالاب کریستالی، زندگی کنار آب درست به خانه شما می‌آید. • امکانات انحصاری: از رستوران‌های لذیذ گرفته تا فروشگاه‌های خرید، اعضا به بهترین بوتیک‌ها و امکانات دسترسی خواهند داشت. • اقامتگاه‌های رو به تالاب کریستالی به سبک کارائیبی: از مناظر خیره‌کننده و محیطی منحصر به فرد برای زندگی لذت ببرید. • برج‌های مسکونی با باغ‌های آسمانی متصل: فضایی آرام که باعث آرامش و رفاه می‌شود. • زندگی کنار آب در آستانه خانه شما: با منظره آرام تالاب زیبا از خواب بیدار شوید. • گزینه‌های طرح پرداخت ساده و منعطف: گزینه‌های انعطاف‌پذیر برای کمک به تحقق خانه رویایی شما. امکانات رفاهی زندگی در کرست به این معنی است که شما هرگز از بهترین سرگرمی‌ها و امکانات دور نیستید. • غذاخوری عالی: طیف وسیعی از لذت‌های غذایی را در رستوران‌های اطراف امتحان کنید. • فروشگاه‌های خرده فروشی: از خرید در بوتیک‌های انحصاری لذت ببرید. • امکانات تفریحی: دسترسی به پارک‌ها، سالن‌های ورزشی و سایر مناطق تفریحی. • تجربه تالاب کریستالی: در ورزش‌های آبی شرکت کنید یا فقط در کنار تالاب استراحت کنید. • موقعیت مکانی مناسب: نزدیک به جاده‌های اصلی و جاذبه‌های محبوب. • زندگی مدرن: امکانات و تسهیلات پیشرفته. • حس تعلق به جامعه: جامعه‌ای صمیمی با فعالیت‌های اجتماعی فراوان. • چشم‌انداز سرمایه‌گذاری: سرمایه‌گذاری امیدوارکننده با شانس بالای افزایش ارزش. انواع واحد کرست دارای انواع گزینه‌های واحد برای پاسخگویی به ترجیحات و سبک‌های زندگی مختلف است: • ۱ خوابه • ۲ خوابه • ۳ خوابه تاریخ تحویل و قیمت اولیه • تاریخ تحویل: سه ماهه چهارم ۲۰۲۵. کرست در سوبها هارتلند چیزی بیش از یک فضای زندگی است؛ بلکه یک سبک زندگی است. با موقعیت مکانی عالی، ویژگی‌های منحصر به فرد و انواع گزینه‌های مسکن، تجربه‌ای لوکس و راحت از زندگی را ارائه می‌دهد. چه یک فرد حرفه‌ای مجرد باشید، چه زوج یا خانواده، کرست برای همه چیز دارد. این فرصت بی‌نظیر برای داشتن قطعه‌ای از بهشت را از دست ندهید.

وضعیت ساخت

مرحله
در حال ساخت
پیشرفت
100%

جزئیات پروژه

  • نوع: apartment
  • تاریخ عرضه: 2021-11-01
  • تاریخ تکمیل: 2025-12-31

امکانات

Shared Pool
Landscaped Gardens
Children's Play Area
Health Club
Yoga room
Gymnasium
Barbecue Area

جدول زمانی پروژه

  • Booking started: 01/11/2021
  • Construction Started: 02/11/2021
  • Expected Completion: 31/12/2025

ویدیوهای پروژه

انواع واحد موجود از سازنده

APARTMENT

1 Bedroom

Size: 683 - 889 sq ft
شروع از ‎درهم ۸۰۰٬۰۰۰
Available Layouts
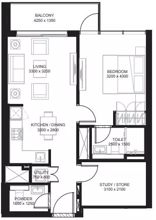
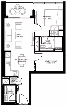
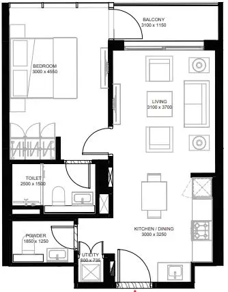
Layout Type Size (sqft) Floor Plan
Type A1 690.00 View
Type C 683.00 View
Type C1 889.00 View

APARTMENT

2 Bedrooms

Size: 1270 - 1394 sq ft
شروع از ‎درهم ۸۰۰٬۰۰۰
Available Layouts
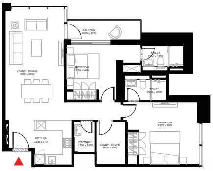
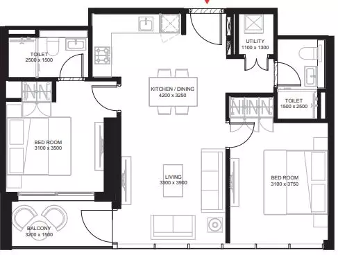
Layout Type Size (sqft) Floor Plan
Type F 1,394.00 View
Type E 1,288.00 View
Type G 1,386.00 View
Type C 1,270.00 View
Type D 1,272.00 View

APARTMENT

3 Bedrooms

Size: 1565 sq ft
شروع از ‎درهم ۸۰۰٬۰۰۰
Available Layouts
Layout Type Size (sqft) Floor Plan
Type B 1,565.00 View

APARTMENT

1 Bedroom

Size: 519 - 692 sq ft
شروع از ‎درهم ۸۰۰٬۰۰۰
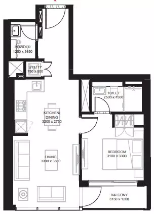
Available Layouts
Layout Type Size (sqft) Floor Plan
Type A 684.00 View
Type B 592.00 View
Type B 692.00 View
Type B (with balcony) Tower B - 1 519.00 View
Type A 589.00 View

APARTMENT

2 Bedrooms

Size: 821 - 1053 sq ft
شروع از ‎درهم ۸۰۰٬۰۰۰
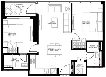
Available Layouts
Layout Type Size (sqft) Floor Plan
Type A 821.00 View
Type A 1,053.00 View

APARTMENT

1 Bedroom

Size: 518 - 687 sq ft
شروع از ‎درهم ۸۰۰٬۰۰۰
Available Layouts
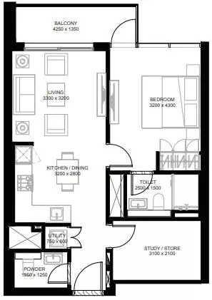
Layout Type Size (sqft) Floor Plan
Type B 518.00 View
Type A 685.00 View
Type B 687.00 View
Type A 572.00 View
Type B 608.00 View

APARTMENT

2 Bedrooms

Size: 806 - 1058 sq ft
شروع از ‎درهم ۸۰۰٬۰۰۰
Available Layouts
Layout Type Size (sqft) Floor Plan
Type A 1,058.00 View
Type A 806.00 View
Type B 896.00 View
Type C 919.00 View

APARTMENT

1 Bedroom

Size: 501 - 515 sq ft
شروع از ‎درهم ۸۰۰٬۰۰۰
Available Layouts
Layout Type Size (sqft) Floor Plan
Type A 501.00 View
Type A 515.00 View

APARTMENT

2 Bedrooms

Size: 1106 - 1240 sq ft
شروع از ‎درهم ۸۰۰٬۰۰۰
Available Layouts
Layout Type Size (sqft) Floor Plan
Type A 1,106.00 View
Type B 1,240.00 View

APARTMENT

3 Bedrooms

Size: 1482 - 1706 sq ft
شروع از ‎درهم ۸۰۰٬۰۰۰
Available Layouts
Layout Type Size (sqft) Floor Plan
Type A 1,482.00 View
Type D 1,706.00 View
Type C 1,584.00 View

APARTMENT

1 Bedroom

Size: 573 sq ft
شروع از ‎درهم ۸۰۰٬۰۰۰
Available Layouts
Layout Type Size (sqft) Floor Plan
Type A 573.00 View

Standard

down payment
20%
20%
during construction
40%
40%
handover
40%
40%

ماشین حساب پرداخت ماهانه

5% 15% 25% 35% 50%
20% AED 0
میانگین فعلی امارات: ۳.۵٪ - ۶.۵٪
پرداخت ماهانه
AED 0
اصل + بهره
مبلغ وام
AED 0
کل بهره
AED 0
کل پرداخت
AED 0

📋 توجه:

این فقط یک تخمین است. نرخ‌ها و شرایط واقعی ممکن است بر اساس پروفایل اعتباری، سیاست‌های بانکی و شرایط فعلی بازار متفاوت باشد. هزینه‌های اضافی مانند بیمه، هزینه ثبت و کارمزد بانکی شامل نمی‌شود.

کرست، توسعه یافته توسط گروه سوبها، تجربه‌ای استثنایی از زندگی در کنار آب در طرح اصلی سوبها هارتلند است. این پروژه لوکس شامل اقامتگاه‌هایی به سبک کارائیبی با چشم‌اندازهای خیره‌کننده از تالاب کریستالی است که سبک زندگی آرام و پیچیده‌ای را در قلب دبی ارائه می‌دهد. موقعیت مکانی عالی کرست دسترسی آسان به نقاط دیدنی کلیدی، مراکز تجاری و مقاصد تفریحی را تضمین می‌کند. ویژگی‌های کلیدی موقعیت مکانی و جاذبه‌های اطراف: • ۵ دقیقه تا برج خلیفه، دبی مال و زمین گلف میادان • ۲۰ دقیقه تا فرودگاه بین‌المللی دبی و پالم جمیرا • ۵ دقیقه تا پناهگاه حیات وحش راس الخور • نزدیک به جاده‌های اصلی، مراکز تجاری و مدارس سطح بالا امکانات رفاهی: • تالاب کریستالی برای ورزش‌های آبی و آرامش • غذاخوری عالی، فروشگاه‌های خرده فروشی و بوتیک‌های انحصاری • پارک‌ها، سالن‌های ورزشی و فضاهای تفریحی • امکانات مدرن و سبک زندگی مبتنی بر جامعه

موقعیت مکانی

The Crest , Sobha Hartland

طرح پرداخت کرست چیست؟

طرح پرداخت کرست به شرح زیر است: پیش پرداخت: ۲۰٪ در زمان عرضه فروش. در طول ساخت: ۴۰٪ در طول مرحله ساخت. هنگام تحویل: ۴۰٪ هنگام تحویل.

صاحب کرست کیست؟

کرست توسط سوبها ریلیتی توسعه یافته است، یک توسعه‌دهنده مشهور که به دلیل تعهد خود به تعالی در املاک لوکس و ارائه پروژه‌های با کیفیت بالا در مکان‌های پرطرفدار شناخته شده است.

آیا کرست سرمایه‌گذاری خوبی است؟

کرست به دلیل موقعیت مکانی عالی در سوبها هارتلند، زندگی در کنار آب با چشم‌اندازهای خیره‌کننده تالاب و امکانات لوکس، فرصت سرمایه‌گذاری قوی را ارائه می‌دهد. به دلیل نزدیکی استراتژیک به نقاط دیدنی کلیدی، پتانسیل عالی برای افزایش ارزش را نوید می‌دهد.

تاریخ تحویل کرست چه زمانی است؟

تاریخ تحویل مورد انتظار برای کرست دسامبر ۲۰۲۵ است که زمان کافی برای تکمیل و پرداخت‌های با کیفیت بالا را تضمین می‌کند.

قیمت اولیه کرست چقدر است؟

قیمت اولیه کرست ۸۰۰۰۰۰ درهم است.

قیمت عرضه

‎درهم ۸۰۰٬۰۰۰

*قیمت‌ها ممکن است متفاوت باشند

اطلاعات کلیدی

تحویل 2025-12-31
انواع ملک apartment
وضعیت در حال ساخت

سازنده

به این پروژه علاقه‌مند هستید؟

برای جزئیات بیشتر، قیمت و موجودی با سازنده تماس بگیرید.