Dubai Harbour Residences

Dubai Harbour Residences, Dubai Harbour

About this Project

Shamal Holding's Dubai Harbour Residences is a high-end real estate development that redefines coastal lifestyle. This magnificent project consists of a series of low-rise façades housing 1, 2, 3, and 4-bedroom flats. With up to 350 expertly planned units, each property is built to provide better liveability, luxury, and elegance. Dubai Harbour Residences's Prime Location One of the most notable aspects of Dubai Harbour Residences is its prime position in the heart of Dubai Harbour. This great location features: • Proximity to the Palm Jumeirah: Get fast access to one of Dubai's most iconic waterfront destinations. • Vibrant Marinas and Private Beach: Relax near to vibrant marinas and a beautiful private beach. • Direct access to the Sheikh. • Direct Access to Sheikh Zayed Road: A freshly built bridge provides direct access, cutting travel time and improving connectivity to vital neighborhoods and monuments. • Convenience and Connectivity: Easily access popular sights such as the Burj Al Arab and Ain Dubai. Delivery Date And Starting Price • Delivery Date: Q4-2027. • Starting Price: 3900000 AED. Unique Features Dubai Harbour Residences stands out for its distinctive features aimed to deliver a peaceful and elegant living experience: • High ceilings and natural lighting: Each apartment has high ceilings and huge windows that let in natural light and create a spacious, airy atmosphere. • Stunning Seafront Views: From your home, you can enjoy breathtaking views of the seafront and the cityscape. • Modern Finishes: Interiors are finished with high-quality materials and modern touches, which improve both beauty and practicality. Amenities Residents at Dubai Harbour Residences have access to a diverse range of amenities that promote a dynamic and engaged community: • Wellness Facilities: There are treatment rooms, a manicure and pedicure salon, and hairdressing services. • Swimming Pools: Adult and children's swimming pools for relaxation and entertainment. • Seating and lounge: areas are ideal for mingling and unwinding. • Outdoor Dining Areas: Perfect for having meals in a picturesque location. • Yacht and Pier Club: For nautical enthusiasts, with large berthing facilities. • Walkable trails connect: leisure, culture, and the seashore. Unit Types Dubai Harbour Residences provides a variety of spacious and elegant apartments.- • 1 bedroom Apartments Size: 1,055 sqft - Perfect for singles or couples looking for a comfortable yet sophisticated living environment. • 2 bedroom Apartments Size range: 2,120 to 2,175 sqft - Ideal for small families or those seeking additional space. • 3 Bedroom Apartments Size: 2,638 to 4,004 sqft - Ideal for larger families or those seeking a more opulent living space. • 4 Bedroom Apartments Size: 4,532 to 8,224 sqft - Experience ultimate luxury with spacious living areas and breathtaking vistas. The Dubai Harbour Residences by Shamal Holding are more than just a place to live. It's a lifestyle choice that provides unrivaled elegance, convenience, and connectivity. With its prominent location, distinctive features, and extensive amenities, it offers a tranquil and elegant living environment in the heart of Dubai Harbour. Whether you want a small one-bedroom apartment or a spacious four-bedroom home, Dubai Harbour Residences has something for everyone. Experience the best of beachside living at one of Dubai's most exclusive new complexes.

Construction Status

Phase
Under construction
Progress
1.43%

Project Details

  • Type: apartment, penthouse
  • Launch Date: 2023-09-01
  • Completion Date: 2027-12-01

Amenities

Elegant Lobby
Indoor Swimming Pool
Children's Play Area
Shared Spa
Beach Access
Gymnasium
Restaurants
Yoga room

Project Timeline

  • Booking started: 01/09/2023
  • Construction Started: 01/01/2024
  • Expected Completion : 01/12/2027

Project Videos

Available unit types from developer

APARTMENT

1 Bedroom

Size: 1055 sq ft
Starting from AED 7,100,000
Available Layouts
Layout Type Size (sqft) Floor Plan
Type 1 1,055.00 View

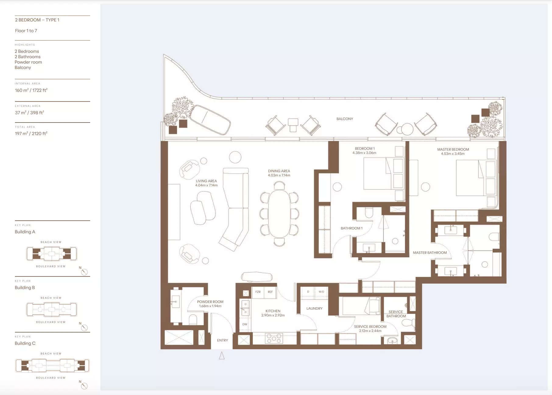
APARTMENT

2 Bedrooms

Size: 2120 - 2175 sq ft
Starting from AED 7,129,000
Available Layouts
Layout Type Size (sqft) Floor Plan
Type 1 2,120.00 View
Type 2 2,175.00 View

APARTMENT

3 Bedrooms

Size: 2638 - 4004 sq ft
Starting from AED 8,493,000
Available Layouts
Layout Type Size (sqft) Floor Plan
Type 1 2,787.00 View
Type 2 2,638.00 View
Type 3 4,004.00 View

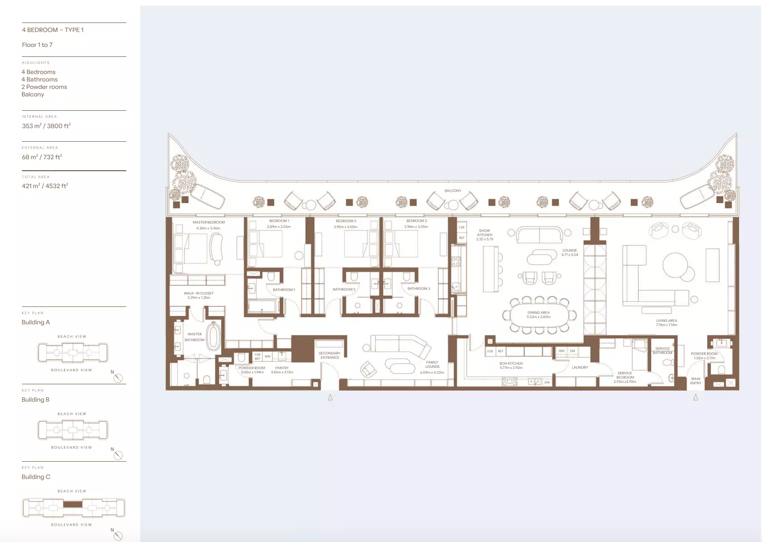
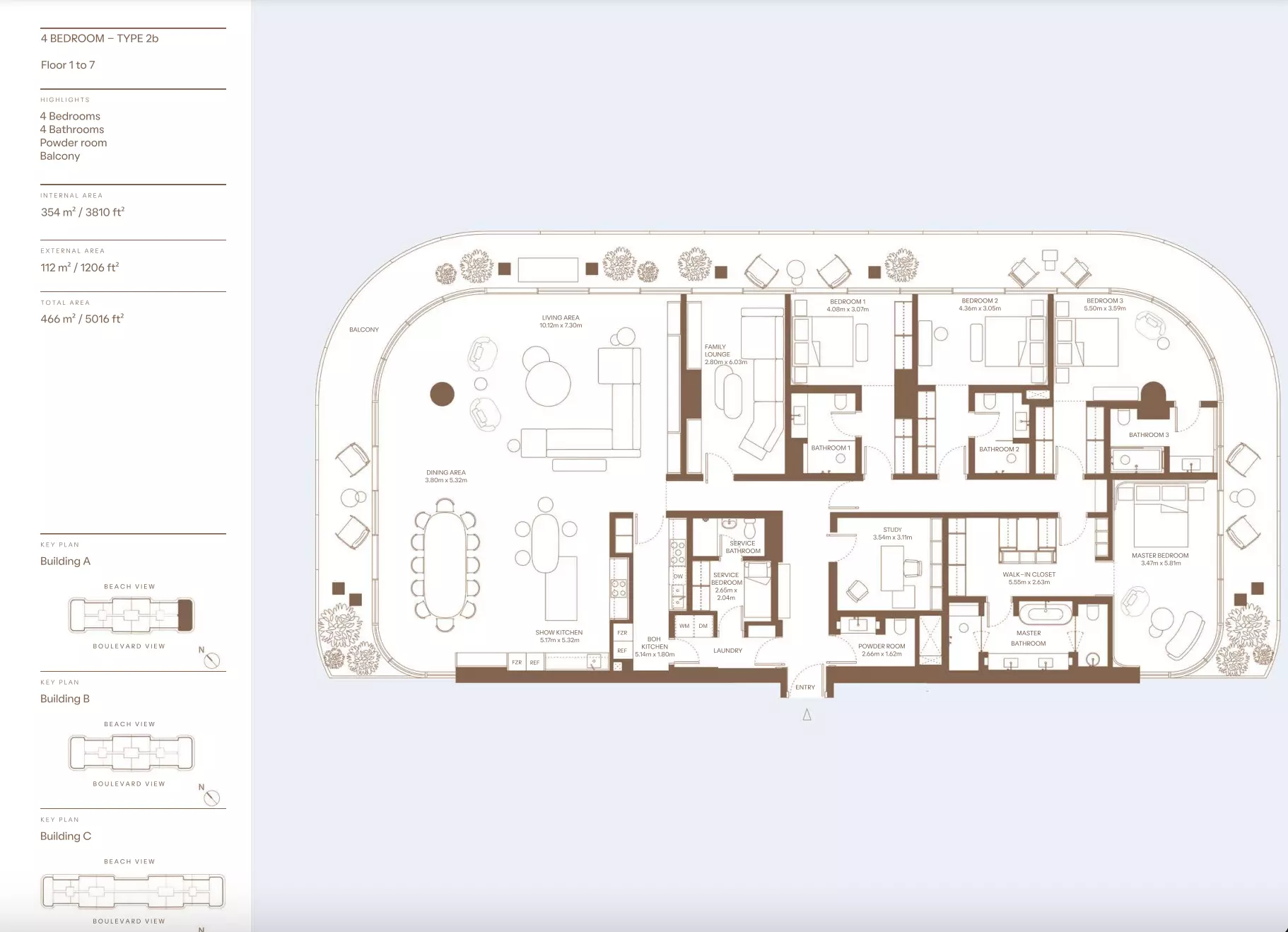
APARTMENT

4 Bedrooms

Size: 4532 - 5220 sq ft
Starting from AED 21,743,000
Available Layouts
Layout Type Size (sqft) Floor Plan
Type 2B 5,016.00 View
Type 3 5,220.00 View
Type 1 4,532.00 View
Type 2A 5,016.00 View

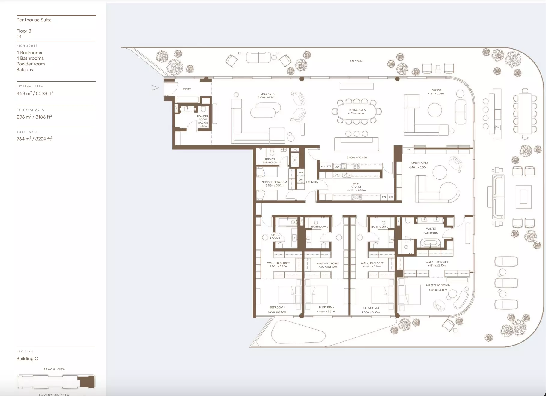
PENTHOUSE

4 Bedrooms

Size: 8073 - 8224 sq ft
Starting from AED 7,100,000
Available Layouts
Layout Type Size (sqft) Floor Plan
Type 1 8,224.00 View
Type 2 8,073.00 View

Option 1

down payment
5%
5%
during construction
55%
55%
handover
40%
40%

Option 2

down payment
5%
On Purchase Date 5%
during construction
55%
On SPA Date Within 1 month from the Purchase Date 15%
Within 12 months from the Purchase Date 10%
Within 18 months from the Purchase Date 10%
Within 24 months from the Purchase Date 10%
Within 30 months from the Purchase Date 10%
handover
40%
Within 42 months from the Purchase Date 40%

Monthly Payment Calculator

5% 15% 25% 35% 50%
20% AED 0
Current UAE average: 3.5% - 6.5%
Monthly Payment
AED 0
Principal + Interest
Loan Amount
AED 0
Total Interest
AED 0
Total Payment
AED 0

📋 Note:

This is an estimate only. Actual rates and terms may vary based on your credit profile, bank policies, and current market conditions. Additional costs like insurance, registration fees, and bank charges are not included.

Dubai Harbour Residences, Dubai Harbour MasterPlan Dubai Harbour Residences by Shamal Holding offers an exceptional waterfront living experience in the heart of Dubai Harbour.The development offers stunning seafront views and provides residents with direct access to vibrant marinas and a private beach. With its prime location, residents are just moments away from the Palm Jumeirah and Dubai’s key landmarks. Dubai Harbour Residences also features a variety of luxury amenities, including a yacht and pier club, wellness facilities, swimming pools, and outdoor dining areas. The development is perfect for those seeking a sophisticated lifestyle with a perfect balance of relaxation, luxury, and convenience in one of Dubai’s most sought-after locations. Key Features Location • 10 minutes to Palm Jumeirah • 5 minutes to Sheikh Zayed Road • 25 minutes to Dubai International Airport Amenities • Yacht and Pier Club • Swimming Pools • Wellness Facilities • Outdoor Dining Areas

Location

Dubai Harbour Residences , Dubai Harbour

When is Dubai Harbour Residences's Delivery date?

The delivery date for Dubai Harbour Residences is December 2027. This ensures ample time for the project’s completion, providing residents with a premium living experience in a prime location.

Where is Dubai Harbour Residences Located?

Dubai Harbour Residences is located in Dubai Harbour, Dubai, offering a prime waterfront living experience in the city.

what are the housing options of Dubai Harbour Residences?

Dubai Harbour Residences offers a range of luxury living options, including apartments and penthouses. 1-Bedroom apartments: 1055 sqft, starting from 3.9M AED 2-Bedroom apartments: 2120-2175 sqft, starting from 7.1M AED 3-Bedroom apartments: 2638-4004 sqft, starting from 8.5M AED 4-Bedroom apartments: 4532-5220 sqft, starting from 22M AED 4-Bedroom penthouses: 8073-8224 sqft, with exclusive pricing available. These residences are ideal for those seeking high-end, spacious waterfront living in one of Dubai’s most desirable locations.

What is the Payment Plan of Dubai Harbour Residences?

The payment plan for Dubai Harbour Residences is as follows: • 5% down payment at the sales launch • 55% during construction, in 5 installments • 40% upon handover

Is Dubai Harbour Residences a good investment?

Yes, Dubai Harbour Residences is a good investment. Located in the prime Dubai Harbour, it offers direct access to key landmarks like the Palm Jumeirah and Sheikh Zayed Road. The development features high-end, spacious apartments with stunning seafront views and modern finishes. With its strategic location, luxurious design, and proximity to popular destinations, it presents strong potential for capital appreciation. Dubai Harbour Residences stands out as a promising opportunity in Dubai’s real estate market.

Is this Dubai Harbour Residences Freehold or leasehold?

Dubai Harbour Residences is a Freehold property, allowing full ownership for both UAE nationals and international investors.

What is Dubai Harbour Residences's starting price?

The starting price of Dubai Harbour Residences is 3.9M AED.

Who is the owner of Dubai Harbour Residences?

The owner of Dubai Harbour Residences is H&H Development, a prominent real estate developer known for delivering high-quality residential projects that combine luxury, innovation, and modern design.

Launch Price

AED 7,100,000

*Prices may vary

Key Information

Handover 2027-12-01
Property Types apartment, penthouse
Status Under construction

Interested in this project?

Contact the developer for more details, pricing, and availability.